Blog Home > 12 Simple 2 Bedroom House Plans with Garages

The Houseplans Blog

12 Simple 2 Bedroom House Plans with Garages

Discover these budget-friendly home designs

Hero Image

March 18, 2022

Livabl Brand

Can't find what you're looking for?

Give us a call below or reach out and we’ll make sure to be in contact!

Send Us a Message

By Gabby Torrenti

This collection of plans features 2 bedroom house plans with garages. Perfect for small families or couples looking to downsize, these designs feature simple, budget-friendly layouts. And there's a range of styles.

See more 2 bedroom house plans with garages here.

Simple 2 Bedroom Farmhouse

Exterior - Front Elevation for Farmhouse House Plan #126-175 - 2 bed, 2 bath Simple 2 Bedroom Farmhouse 126-175 - Front Exterior 12 Simple 2 Bedroom House Plans with Garages Simple 2 Bedroom Farmhouse 126-175 - Main Floor Plan

Beyond its quaint front porch, this home opens with a welcoming living room, leading toward the eat-in kitchen with a spacious pantry. To the right, the primary suite gives homeowners their own space, including a walk-in closet, roll-in shower, and vanity with two sinks. Across the home, a versatile space can act as either a guest room or office, depending on your specific needs. This room is bordered by a full bathroom. The mudroom at the rear of the home keeps everything tidy.

Contemporary 2 Bedroom Home Design

Exterior - Front Elevation for Modern House Plan #23-2719 - 2 bed, 2 bath Contemporary 2 Bedroom Home Design 23-2719 - Front Exterior 12 Simple 2 Bedroom House Plans with Garages Contemporary 2 Bedroom Home Design 23-2719 - Main Floor Plan 12 Simple 2 Bedroom House Plans with Garages Contemporary 2 Bedroom Home Design 23-2719 - Upper Floor Plan

This small home packs all of the modern elements you could want into just 1,188 square feet, making this plan both convenient and affordable. Through the front door, a foyer space welcomes guests, with the living and dining areas not far away. A bedroom and bathroom on this level create space for working from home or hosting guests. Upstairs, enjoy private space in the primary suite, which comes equipped with its own bathroom. A main-level terrace and second-floor balcony provide relaxing outdoor living space, too.

Farmhouse Plan with 2 Bedroom Suites

Exterior - Front Elevation for Farmhouse House Plan #20-2355 - 2 bed, 2 bath Farmhouse Plan with 2 Bedroom Suites 20-2355 - Front Exterior 12 Simple 2 Bedroom House Plans with Garages Farmhouse Plan with 2 Bedroom Suites 20-2355 - Main Floor Plan 12 Simple 2 Bedroom House Plans with Garages Farmhouse Plan with 2 Bedroom Suites 20-2355 - Alternate Floor Plan

This 1,387-square-foot space features two sizable suites, making everyone feel right at home. Through the front door, a smaller suite sits to the left, including its own walk-in closet and a full bathroom. Straight ahead, the great room, dining space, and kitchen flow together and create an open and airy main living space. The covered patio sits to the rear, inviting you to step outside and take a breath of fresh air. Back inside, the larger suite sits to the right of the main living space, featuring its own walk-in closet and double sinks in the bathroom. Choose your favorite main bathroom layout: with or without a tub.

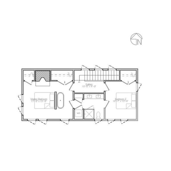
Ultra-Modern Home with a Detached Garage

Exterior - Front Elevation for Modern House Plan #914-5 - 2 bed, 1.5 bath Ultra-Modern Home with a Detached Garage 914-5 - Front Exterior 12 Simple 2 Bedroom House Plans with Garages Ultra-Modern Home with a Detached Garage 914-5 - Main Floor Plan 12 Simple 2 Bedroom House Plans with Garages Ultra-Modern Home with a Detached Garage 914-5 - Upper Floor Plan

This simple structure features 1,340 square feet of living space, as well as a detached garage for easy storage. Inside, a wide-open living space includes the kitchen and great room, as well as a powder bathroom for guests. Upstairs, the primary suite and guest bedroom are located at either end of a gallery hallway, with a full bathroom with double sinks located in the middle and accessed from both bedrooms.

Classic Two-Bedroom Farmhouse

Photo for Farmhouse House Plan #1070-170 - 2 bed, 2 bath Classic Two-Bedroom Farmhouse 1070-170 - Front Exterior 12 Simple 2 Bedroom House Plans with Garages Classic Two-Bedroom Farmhouse 1070-170 - Main Floor Plan

1,248 square feet of living space are spread across one convenient level in this farmhouse plan, which features a covered front entry porch. Inside, the second bedroom is located directly to the right, with the main living space directly ahead. This space features a kitchen with a center island, a dining space, and a great room for relaxing with family and friends. The primary bedroom gives you a walk-in closet and a bathroom with double sinks. At the rear of this home, both a covered and uncovered patio allow for outdoor entertaining, too.

Contemporary Home with a Chic Garage

Exterior - Front Elevation for Contemporary House Plan #25-4880 - 2 bed, 1 bath Contemporary Home with a Chic Garage 25-4880 - Front Exterior 12 Simple 2 Bedroom House Plans with Garages Contemporary Home with a Chic Garage 25-4880 - Main Floor Plan

From the exterior, this contemporary home wows with stone details, tall windows, and a garage that adds visual interest, as well simple storage. Inside, the main living area features a kitchen, dining area, and sitting room, located just steps from the home’s two bedrooms. Each bedroom features closet space and easy proximity to a shared full bathroom.

Sleek Two-Bedroom Home

Exterior - Front Elevation for Contemporary House Plan #932-526 - 2 bed, 2.5 bath Sleek Two-Bedroom Home 932-526 - Front Exterior 12 Simple 2 Bedroom House Plans with Garages Sleek Two-Bedroom Home 932-526 - Main Floor Plan 12 Simple 2 Bedroom House Plans with Garages Sleek Two-Bedroom Home 932-526 - Upper Floor Plan 12 Simple 2 Bedroom House Plans with Garages Sleek Two-Bedroom Home 932-526 - Loft Floor Plan

On the main level, this home features a double garage with storage space, as well as a bedroom and full bathroom. Up a flight of stairs, the primary living space features a vaulted family room that borders the kitchen with a center island. The main bedroom is located to the right, including a modern bathroom with double sinks and a walk-in closet. An additional half bathroom is perfect for guests, while a balcony provides a serene space to enjoy pleasant weather. Check out the bonus space: an art loft on the upper level!

Cozy Two-Bedroom Cottage

Exterior - Front Elevation for Cottage House Plan #48-1029 - 2 bed, 2 bath Cozy Two-Bedroom Cottage 48-1029 - Front Exterior 12 Simple 2 Bedroom House Plans with Garages Cozy Two-Bedroom Cottage 48-1029 - Main Floor Plan

This idyllic cottage features two bedrooms, two bathrooms, a garage, and just under 1,300 square feet of living space. After stepping under the arched front entryway, this home opens with a front hall, leading towards the great room. The dining room and kitchen are off to the left, with a vaulted porch providing outdoor living space. Both of the home’s bedrooms are located along the right side of the house, each including its own closet and bathroom.

Modern Plan with Outdoor Living Space

Exterior - Front Elevation for Modern House Plan #932-559 - 2 bed, 2 bath Modern Plan with Outdoor Living Space 932-559 - Front Exterior 12 Simple 2 Bedroom House Plans with Garages Modern Plan with Outdoor Living Space 932-559 - Main Floor Plan 12 Simple 2 Bedroom House Plans with Garages Modern Plan with Outdoor Living Space 932-559 - Upper Floor Plan

This striking home features a double garage with storage space on the lower level, which is bordered by a bedroom with a closet and a full bathroom. Upstairs, the kitchen and family room feel open, with the big primary suite located to the left. This suite includes a huge walk-in closet and a bathroom with double sinks, as well as a private water closet and washer and dryer. A vaulted covered balcony completes this level and makes outdoor living a breeze.

Two-Bedroom Country Home

Exterior - Front Elevation for Country House Plan #430-239 - 2 bed, 2 bath Two-Bedroom Country Home 430-239 - Front Exterior 12 Simple 2 Bedroom House Plans with Garages Two-Bedroom Country Home 430-239 - Main Floor Plan

This economical design is fronted by a welcoming porch that leads into the home’s open living room, dining space, and kitchen. To the right, two bedrooms are located adjacent to each other and each includes its own closet and full bathroom. This home is made complete with a side porch, walk-in pantry, and laundry room off the garage that makes keeping your home tidy a breeze.

Beautiful Modern Farmhouse with 2 Bedrooms

Exterior - Front Elevation for Farmhouse House Plan #430-256 - 2 bed, 2 bath Beautiful Modern Farmhouse with 2 Bedrooms 430-256 - Front Exterior 12 Simple 2 Bedroom House Plans with Garages Beautiful Modern Farmhouse with 2 Bedrooms 430-256 - Main Floor Plan 12 Simple 2 Bedroom House Plans with Garages Beautiful Modern Farmhouse with 2 Bedrooms 430-256 - Bonus Room Plan

Here's a standout modern farmhouse with serious curb appeal. Storage abounds inside, starting in the two-car garage and continuing with walk-in closets (one for each bedrooms) and even a walk-in pantry. Need more room? Finish the bonus space upstairs.

Simple Ranch Home Plan with Photos

Exterior - Front Elevation for Ranch House Plan #70-1482 - 2 bed, 2 bath Simple Ranch Home Plan with Photos 70-1482 - Front Exterior 12 Simple 2 Bedroom House Plans with Garages Simple Ranch Home Plan with Photos 70-1482 - Main Floor Plan

Simple and fresh, this ranch house plan fits a narrow lot but gives you a contemporary open layout. Check out the modern, big shower in the main suite. We also love the outdoor living in back.

View the full collection of 2 bedroom house plans with garages here.

Get Our Newsletter

Be the first to see new plans, special offers, and more.

By signing up for our newsletter, you agree to our Terms & Conditions and Privacy Policy, for an account

Blog Subscribe Icon