By Devin Uriarte
Floor plans that are around 1,600 sq. ft. can offer a spacious feel that is still manageable to maintain. Many of these barndominium-style floor plans offer great amenities like garages, open-concept kitchens, and small offices. We also can’t forget about the charming curb appeal that these plans boast. Note: while the term barndominium is often used to refer to a metal building, many of today's barndominium-style plans have conventional wood framing, but a rustic look.
See our collection of 1,600 sq. ft. floor plans.
Striking Curb Appeal
Striking Curb Appeal - Front Exterior
Striking Curb Appeal - Main Floor
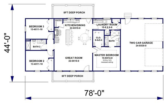
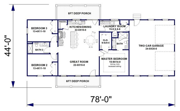
Gabled roofs are common with many barndominium-style homes and this house plan delivers striking curb appeal. The three-car garage is at the rear of the plan, so it does not steer attention away from the front. Inside this 1,656 sq. ft. barndominium is an open layout that highlights the spectacularly tall ceiling. The bedrooms are thoughtfully placed on opposite sides of the plan so owners can have their privacy. In the spacious owner’s suite, there are two vanities in the bathroom along with a walk-in closet.
Stylish Barndominium
Stylish Barndominium - Front Exterior
Stylish Barndominium - Main Floor
Stylish Barndominium - Upper Floor Plan
Enjoy the seamless flow of this 1,617 sq. ft. barndominium from the wraparound porch into the open concept great room. The relaxed layout of the kitchen makes for easy conversation between the dining area and living room. A cozy fireplace in the living room adds to the relaxed atmosphere of the floor plan. On the main floor there’s the first bedroom, which is the largest, and upstairs are three additional rooms.
Easygoing Floor Plan
Easygoing Floor Plan - Front Exterior
Easygoing Floor Plan - Main Floor
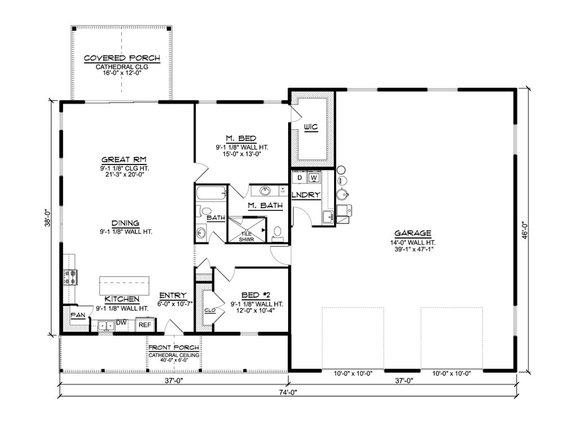
This 1,614 sq. ft. barndominium has an easygoing layout with an impressive garage. The two-car garage is great for do-it-yourselfers since it’s spacious enough for a workshop. Conversations are sure to flow from the kitchen to the great room and on those warmer nights, owners can host outdoors on the covered porch. Both the primary and guest bedrooms have spacious closets for additional storage.
Cozy Barndominum
Cozy Barndominum - Front Exterior
Functionality is the focus of this cozy barndominium. An open and spacious great room welcomes you into the space and flows seamlessly into the L-shaped kitchen. The floor plan keeps hosting in mind with the lovely center island. Owners will be able to enjoy privacy on the opposite side of the two guest bedrooms. Thoughtful details in the owner’s suite include a recessed ceiling and an impressive walk-in closet.
Barndominium with Garage Below
Barndominium with Garage Below - Front Exterior
Barndominium with Garage Below - Garage Floor Plan
Barndominium with Garage Below - Main Floor Plan
A sizeable three-car garage sits below the one-bedroom living zone, giving owners additional storage space. Upstairs there’s a comfortable floor plan with an impressive kitchen area. In the kitchen, there’s an island for easy meal prep, a walk-in pantry, and a doorway that leads out to one of the terraces. A convenient pocket office sits off the kitchen for anyone who may work from home. Owners will be impressed by the private terrace that’s attached to the primary suite, along with the sizeable bathroom and walk-in closet.
