By Courtney Pittman
Love the popular barndo look? Charming and cool, these 2 story barndominium with wraparound porch floor plans balance modern layouts with rustic style. They caught our eye with big open layouts and porches that promote outdoor living. Create country style with these eight thoughtful designs.
See our collection of barndominium plans with wraparound porch floor plans here.
Barndo Plan with Two-Sided Fireplace
Barndo Plan with Two-Sided Fireplace - Front Exterior
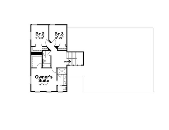
Barndo Plan with Two-Sided Fireplace - Main Level
Barndo Plan with Two-Sided Fireplace - Upper Level
Here’s a barn-style house plan with lots to love – beginning with the covered wraparound porch. Inside, the U-shaped kitchen flows nicely into the great room and features an eating bar. The convenient primary suite sits on the first level and shows off a generous walk-in closet and access to the covered porch.
Two bedrooms and a full bath complete the second level. Our favorite part: the two-sided fireplace between the great room and the wraparound porch.
Timeless Design with Barn Features
Timeless Design with Barn Features - Front Exterior
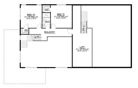
Timeless Design with Barn Features - Main Level
Timeless Design with Barn Features - Upper Level
A metal gable roof, a wraparound porch, stylish barn doors, and rustic lighting deliver timeless curb appeal to this barndominium floor plan. The open floor plan includes a generous hearth room, dining nook, and a big island kitchen. Tucked away at the back of the plan, the primary suite enjoys privacy and a spa-like bathroom. A spacious loft adds flexibility on the second level.
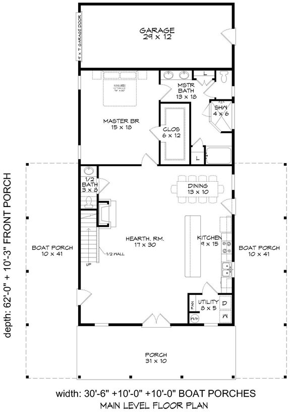
Two-Story Plan with Locker Room
Two-Story Plan with Locker Room - Front Exterior
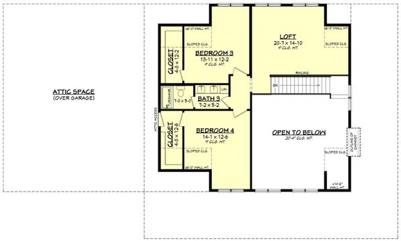
Two-Story Plan with Locker Room - Main Level
Two-Story Plan with Locker Room - Upper Level
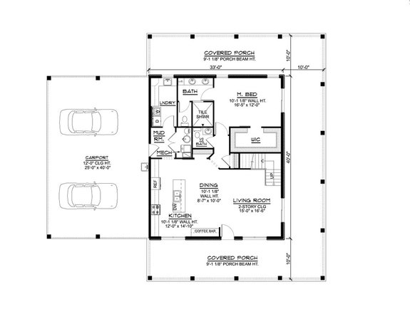
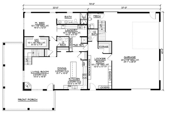
Just under 2,000 square feet, this classic barndominium house plan gives you a gorgeous exterior with lots of windows and a big wraparound porch. The well-equipped kitchen offers a central island and opens to the dining area and the living room. The laundry room makes it easy to throw in a load with direct access to the primary suite.
Everything has a place in the generous locker room, which features lockers (of course), a bench and hooks, and a storage closet. The spacious garage waits nearby. You’ll find two additional bedrooms (each with a walk-in closet), a hall bathroom, and a loft on the second level.
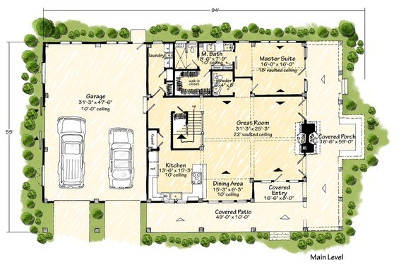
Rustic Plan with Flexible Spaces
Rustic Plan with Flexible Spaces - Front Exterior
Rustic Plan with Flexible Spaces - Main Level
Rustic Plan with Flexible Spaces - Upper Level
This rustic design places the vaulted great room at the front of the plan. Two sets of French doors open to the large wraparound porch. We love the roomy pantry in the kitchen. A super-spacious closet shines in the main-level primary suite.
A study/office and a loft wait upstairs. Don’t miss the barn-style oversized garage, which also features a versatile loft.
Barndo Plan with Home Office
Barndo Plan with Home Office - Front Exterior
Barndo Plan with Home Office - Main Level
Barndo Plan with Home Office - Upper Level
Here’s a warm and inviting barndominium retreat. The extra-large wraparound porch welcomes outdoor living. Inside, the open-concept floor plan wastes no space and creates seamless flow between the main living areas. Check out the cool coffee bar in the kitchen.
A mudroom is ready to keep things tidy. Located on the main level, the primary suite enjoys private access to the wraparound porch. Two bedrooms and a bathroom wait on the second floor, along with an office and a loft.
Wraparound Porch and Four-Car Garage
Wraparound Porch and Four-Car Garage - Front Exterior
Wraparound Porch and Four-Car Garage - Main Level
Wraparound Porch and Four-Car Garage - Upper Level
A wraparound porch? Yes please. A four-car garage? Sold. Clearly, this barndominium house plan is all about comfortable living and smart amenities. At the heart of the home, the kitchen opens to the fireplace-warmed great room and the casual dining area. Note the big island and the generous pantry with built-in cabinets.
The primary suite gives you not one, but two closets. Lockers in the mudroom are a welcome detail. Upstairs, a loft can be used in a variety of ways.
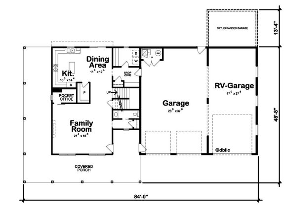
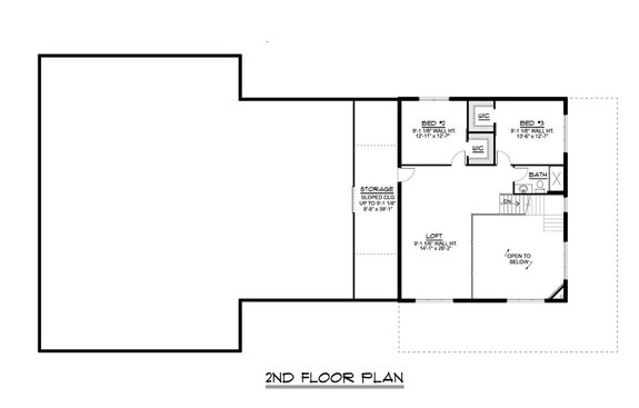
Room for an RV
Room for an RV - Front Exterior
Looking for a timeless barn-inspired plan? Look no further. This sweet design offers shaded comfort with a wraparound porch. We love the metal gable roof and the board-and-batten siding. The three-car garage includes space for an RV and gives you the option to expand. An easygoing layout waits inside. Don’t miss the pocket office or the dropzone near the laundry room.
Three-Bedroom Plan with Safe Room
Three-Bedroom Plan with Safe Room - Front Exterior
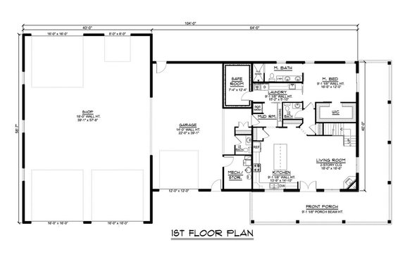
Three-Bedroom Plan with Safe Room - Main Level
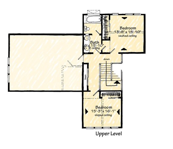
Three-Bedroom Plan with Safe Room - Upper Level
Jam-packed with style, this three-bedroom barndominium floor plan gives you country curb appeal and well-thought-out details. For example, the four-car garage can also become a workshop if needed. A mudroom keeps clutter at a minimum with handy lockers and a dog wash station. Check out the safe room nearby. All three bedrooms offer walk-in closets, including the deluxe primary suite.

