Barndominium Style House Plan - 3 Beds 2.5 Baths 2042 Sq/Ft Plan #20-2551 - Houseplans.com
Search
REGISTER LOGIN SAVED No Saved Plans CART  Cart Empty
Don't lose your saved plans! Create an account to access your saves whenever you want. See our Terms & Conditions and Privacy Policy.
OR
FINAL HOURS: 15% OFF ENDS TONIGHT
Plan 20-2551
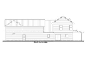
Photographs may show modified designs.
Home  >  Style  >  Barndominium

Barndominium House Plan 20-2551

Key Specs


Plan Sq Ft

2042
sq ft

Plan Bedrooms

3
Beds

Plan Bathrooms

2.5
Baths

Plan Floors

2
Floors

Plan Garages

3
Garages

Questions? Get Personalized Help
Select Plan Set Options
What's included?
$293.25
$140.25
$140.25
$250.75
Subtotal
NOW $1109.25
You save $195.75
(15% savings)
Sale ends soon!
Best Price Guaranteed

Or order by phone: 1-800-913-2350
Questions? Get Personalized Help
 

 
Hours:
Ready for Your Call 7 Days a Week
Every Day 7 am - 8:30 pm Eastern

See Terms & Conditions and Privacy Policy.

Thanks for your question.

We will be in touch shortly.

Wow!
Cost to Build Reports
$1.99 with Code
CTB2026 (Limit 1)
Our Cost to Build Report gives you a personalized estimate for building your home, based on your location, plan, and materials.

Residential Construction Guide

Learn Building Basics

This downloadable, 26-page guide is full of diagrams and details about plumbing, electrical, and more.

Key Specs


Plan Sq Ft

2042
sq ft

Plan Bedrooms

3
Beds

Plan Bathrooms

2.5
Baths

Plan Floors

2
Floors

Plan Garages

3
Garages

Plan Description


This Barndominium offers modern farmhouse charm with 3 bedrooms, an open-concept living space, and a spacious owner’s suite. With a 3-car garage plus an RV bay, this plan is perfect for families who want style, comfort, and room for all their hobbies.

This plan can be customized!

Tell us about your desired changes so we can prepare an estimate for the design service. Click the button to submit your request for pricing, or call 1-800-913-2350.

Floor Plans


Floor Plan - Main Floor

Reverse
houseplans LOGO

BUILDER Advantage Program

PRO BUILDERS

Join the club and save 5% on your first order.
PLUS download exclusive discounts and more.

LEARN MORE

Floor Plan - Upper Floor

Reverse

Floor Plan - Other Floor

Reverse

Full Specs & Features


Basic Features

Bedrooms : 3
Baths : 2.5
Stories: 2
Garages: 3

Dimension

Depth : 48' 8"
Width : 83' 8"

Area

Total : 2042 sq/ft
Garage : 1616 sq/ft
Main Floor : 1147 sq/ft
Porch : 806 sq/ft
Upper Floor : 895 sq/ft
* Total Square Footage typically only includes conditioned space and does not include garages, porches, bonus rooms, or decks.

Ceiling

Main Ceiling : 9'
Upper Ceiling Ft : 8'

Roof

Primary Pitch : 8/12
Roof Framing : Stick - Dimensional Lumber
Roof Load : 30 Live, 10 Dead
Secondary Pitch : 4/12

Exterior Wall Framing

Exterior Wall Finish : Board & Batten / Siding
Framing : 2x4

Bedroom Features

Upstairs Bedrooms
Upstairs Master Bedrooms
Walk In Closet

Kitchen Features

Kitchen Island
Walk In Pantry Cabinet Pantry

Additional Room Features

Den Office Study Computer
Family Room Keeping Room
Loft
Main Floor Laundry
Mud Room

Garage Features

Front Entry Garage
RV Garage

Outdoor Spaces

Covered Front Porch
Covered Rear Porch
Wrap Around Porch

What's included in this plan set


See a sample plan set
Plans are typically drawn to ¼” scale and include:
  • Cover Sheet: Front elevation and informative reference sections including: general notes and design criteria
  • Foundation Plan(s): Drafted at 1/4" scale. Poured or block basement or slab foundations are standard. Basement foundations show the HVAC equipment, structural information, steel beam and pole locations and the direction and spacing of the floor system above. Alternate foundations are available for a fee.
  • Floor Plan(s): 1/4" scale. Fully dimensioned from stud to stud for ease of framing. The detailed drawings include such things as structural header locations, framing layout and kitchen layout.
  • Exterior Elevations: Drafted at 1/4" scale for the front and 1/8" scale for the rear and sides. All elevations are noted and an aerial view of the roof is provided, showing all hips, valleys and ridges.
  • Overhead Roof Plan(s): A view of the home from above showing roof pitch, peaks, valleys, and other details.
  • Cross Section(s): A slice of the home from roof to foundation, showing relationships between floors, roof, and foundation.
  • Electrical Plan(s): Illustrated on a separate page for clarity, the electrical plan shows suggested electrical layout for the main and second level floor plans. Typical wall and stair sections are provided to further explain construction of these areas.
  • Kitchen Cabinet Elevation(s): Useful for the cabinet and bidding process, this page shows all kitchen and bathroom cabinets as well as any other cabinet elevations. Not included with all plans, please call for details.
  • Construction Notes / Detail(s): Shows basic parts and assemblies recommended for the home so the builder can see how things come together.
NOTE: This plan is not available to be built in the state of Nevada. Please call with questions.
* See important information before purchasing

Pricing


Plan Options

PDF Set

Best Value!
$1109.25
PDF plan sets are best for fast electronic delivery and inexpensive local printing.

PDF Unlimited Build

$1534.25
PDF plan sets are best for fast electronic delivery and inexpensive local printing.

CAD and PDF Set

$1768.00
For use by design professionals to make substantial changes to your house plan and inexpensive local printing plus PDF plan sets are best for fast electronic delivery and inexpensive local printing.

CAD and PDF Set Unlimited Build

$2193.00
For use by design professionals to make substantial changes to your house plan and inexpensive local printing plus PDF plan sets are best for fast electronic delivery and inexpensive local printing.

Foundation Options

Slab

$0.00
Ideal for level lot, single layer concrete poured directly on grade.

Basement

$293.25
Ideal for level lot, lower level of home partially or fully underground.

Crawlspace

$293.25
Ideal for semi-sloped or level lot, home can be built off of grade, typically 18” - 48”.

Daylight Basement

$293.25
Ideal for sloping lot, lower level of home partially underground.

Walk Out Basement

$331.50
Ideal for a sloping lot, lower level with outdoor access.

*Options with a fee may take time to prepare. Please call to confirm.

Framing Options

Wood 2x4

$0.00
Wood 2x4 Exterior Walls

Wood 2x6

$293.25
Wood 2x6 Exterior Walls

*Options with a fee may take time to prepare. Please call to confirm.

Additional Options

Right-Reading Reverse

$293.25
Choose this option to reverse your plans and to have the text and dimensions readable.

Audio Video Design

$140.25
Receive an overlay sheet with suggested placement of audio and video components.

Lighting Design

$140.25
Receive an overlay sheet with suggested placement of lighting fixtures.

Material List

$250.75
A spreadsheet of building supplies needed to construct the infrastructure of your new house. Please note materials lists will not reflect add-ons such as alternate foundation and framing options.

*Options with a fee may take time to prepare. Please call to confirm.

Unless you buy an “unlimited” plan set or a multi-use license you may only build one home from a set of plans. Please call to verify if you intend to build more than once. Plan licenses are non-transferable and cannot be resold.

Other Plans By This Designer

See all plans by
this designer

Need help? Let our friendly experts help you find the perfect plan!

Contact us now for a free consultation.