Blog Home > 3 Bedroom 2 Bath 1,200 Sq. Ft. House Plans

The Houseplans Blog

3 Bedroom 2 Bath 1,200 Sq. Ft. House Plans

Small, simple, but still spacious enough for guests

Hero Image

May 13, 2024

Livabl Brand

Can't find what you're looking for?

Give us a call below or reach out and we’ll make sure to be in contact!

Send Us a Message

By Courtney Pittman

Looking for a starter home? We’ve got you covered with these 3 bedroom 2 bath 1,200 sq. ft. house plans. With easygoing layouts and modern amenities, these petite designs feel anything but cramped. In fact, you’ll be surprised at the spaciousness of these eight uncomplicated plans (each around 1,200 sq. ft.). Read on for more.

Explore more 3 bedroom 2 bath house plans

Cottage Plan with Open Layout Cottage Plan with Open Layout Cottage Plan with Open Layout - Front Exterior

Cottage Plan with Open Layout Cottage Plan with Open Layout - Main Level

Here’s a cute cottage design that shows off stylish curb appeal with board-and-batten siding and a metal roof. Plenty of counter space in the kitchen makes it easy to prepare meals. Two of the three bedrooms feature walk-in closets (including the primary suite), while two hall closets provide even more room for organization.

One-Story Design with Two-Car Garage One-Story Design with Two-Car Garage One-Story Design with Two-Car Garage - Front Exterior

One-Story Design with Two-Car Garage One-Story Design with Two-Car Garage - Main Level

This 1,163-square-foot design is all about easy living. The layout inside flows from the living room to the dining area and then into the island kitchen. Nice weather? Enjoy outdoor living on the front porch or the porch out back. The two-car garage offers parking or storage.

Modest House Plan with Storage Modest House Plan with Storage Modest House Plan with Storage - Front Exterior

Modest House Plan with Storage Modest House Plan with Storage - Main Level

Modest House Plan with Storage Modest House Plan with Storage - Lower Level

Modest, yet charming, this 1,204-square-foot plan boasts an efficient layout. The open floor plan between the kitchen and the family room creates a modern feel. A small island in the kitchen is a thoughtful touch.

Towards the back of the plan, the primary suite enjoys a big closet. Two secondary bedrooms share a hall bath on the left side of the plan, not far from the laundry room.

Ranch Style Design with Front Porch Ranch Style Design with Front Porch Ranch Style Design with Front Porch - Front Exterior

Ranch Style Design with Front Porch Ranch Style Design with Front Porch - Main Level

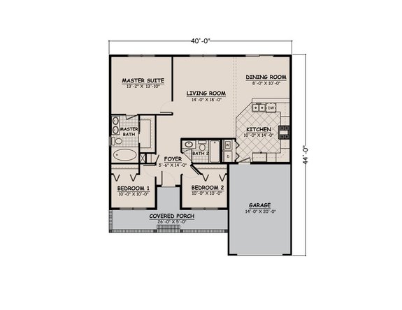
A wide front porch welcomes you to this three-bedroom ranch house plan. We love the uncomplicated flow between the living room, the kitchen, and the dining room. A bedroom sits on either side of the foyer. Dual sinks and a spacious walk-in closet shine in the primary suite. Don’t miss the one-car garage just off the kitchen.

Stylish Farmhouse Plan with Big Pantry Stylish Farmhouse Plan with Big Pantry Stylish Farmhouse Plan with Big Pantry - Front Exterior

Stylish Farmhouse Plan with Big Pantry Stylish Farmhouse Plan with Big Pantry - Main Level

This compact design wastes no space while showing off farmhouse style. Check out the gable roof, the board-and-batten siding, and the charming front porch. The open kitchen gives you a spacious pantry. An eating bar seats up to four people for relaxed meals.

The primary suite sits in the right wing of the plan and showcases an extra-large closet and a roll-in shower. Keep items organized in the mudroom on the way in from the two-car garage. One of the two secondary bedrooms could also become a home office.

Country Plan with Covered Patio Country Plan with Covered Patio Country Plan with Covered Patio - Front Exterior

Country Plan with Covered Patio Country Plan with Covered Patio - Main Level

Here’s a small house plan with country details like board-and-batten siding and metal roof accents. With just 1,176 square feet of living space, this design feels fresh and modern thanks to the open layout. An island in the kitchen is great for casual meals.

Relax on the covered back patio. Keep shoes and coats tidy in the handy drop zone. Three bedrooms (including the primary suite) rest on the right side of the plan.

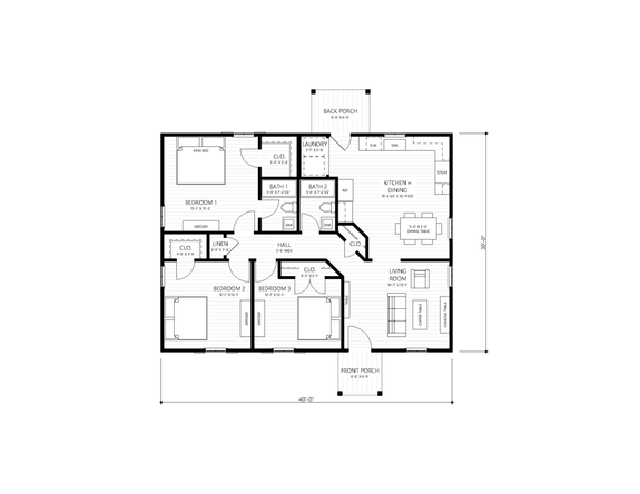
Small House Design with Outdoor Living Small House Design with Outdoor Living Small House Design with Outdoor Living - Front Exterior Small House Design with Outdoor Living Small House Design with Outdoor Living - Main Level

Hello curb appeal! A wraparound porch adds curb appeal while also giving you a place to kick back and relax. Other outdoor areas include a screened porch and a large deck. The open floor plan makes it easy to move between the great room, the dining area, and the kitchen, while a cathedral ceiling adds drama. Generous windows provide plenty of natural light.

Discover more 3 bedroom 2 bath house plans.

Get Our Newsletter

Be the first to see new plans, special offers, and more.

By signing up for our newsletter, you agree to our Terms & Conditions and Privacy Policy, for an account

Blog Subscribe Icon