Blog Home > 5 Bedroom 2 Story Barndominium Floor Plans

The Houseplans Blog

5 Bedroom 2 Story Barndominium Floor Plans

Explore these two-story barndominium floor plans.

Hero Image

September 29, 2023

Livabl Brand

Can't find what you're looking for?

Give us a call below or reach out and we’ll make sure to be in contact!

Send Us a Message

By Devin Uriarte

One of the clear benefits of having a house plan with two stories and five bedrooms is the flexibility. These house plans offer open floor plans and of course, the charming barndominium curb appeal that is wildly popular right now. Browse these two-story barndominium floor plans, each with five flexible bedrooms.

See our full collection of barndominium plans here.

Barndominium Floor Plan with 5 Bedrooms and 2 Stories Barndominium Floor Plan with 5 Bedrooms and 2 Stories Barndominium Floor Plan with 5 Bedrooms and 2 Stories - Front Exterior

Barndominium Floor Plan with 5 Bedrooms and 2 Stories Barndominium Floor Plan with 5 Bedrooms and 2 Stories - Main Floor Plan

Barndominium Floor Plan with 5 Bedrooms and 2 Stories Barndominium Floor Plan with 5 Bedrooms and 2 Stories - Upper Floor Plan

Gables, board-and-batten siding, and stone veneer details give this five-bedroom barndominium classic curb appeal. The front porch and entryway add a touch of elegance to this floor plan. A modern open layout is revealed through the foyer along with a stunning view of the backyard from the large windows. These windows are quite spectacular as they stretch the full 2 stories of the barndominium plan. The primary suite resides on the first story and features two walk-in closets, a full bathroom with a tub, and access to the rear patio. Also on the first floor is a guest bedroom that could also be utilized as a home office.

Upstairs on the second story there are three guest bedrooms, each with its own spacious walk-in closet. The guest bedrooms can also enjoy views from the walkway that overlooks the great room below.

5 Bedroom 2 Story Barndominium Floor Plan with In-Law Suite 5 Bedroom 2 Story Barndominium Floor Plan with In-Law Suite 5 Bedroom 2 Story Barndominium Floor Plan with In-Law Suite - Front Exterior

5 Bedroom 2 Story Barndominium Floor Plan with In-Law Suite 5 Bedroom 2 Story Barndominium Floor Plan with In-Law Suite - Main Floor Plan

5 Bedroom 2 Story Barndominium Floor Plan with In-Law Suite 5 Bedroom 2 Story Barndominium Floor Plan with In-Law Suite - Upper Floor Plan

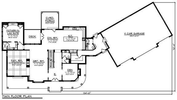
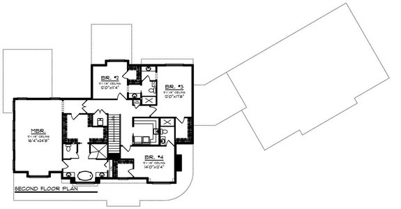
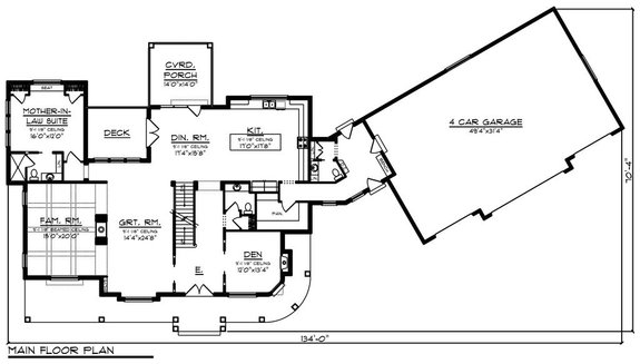
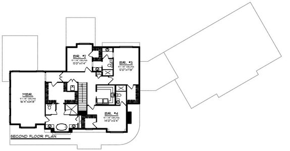
This two-story barndominium floor plan comes equipped with an in-law suite on the first floor, which brings the home versatility. The in-law suite sits off the formal family room where a two-way fireplace divides the two sitting areas. Having a private in-law suite on the first floor is ideal for any live-in relatives. Upstairs there are three guest bedrooms, each with its own walk-in closet and easy access to the laundry room. The luxurious primary suite is also on the second floor and features a jaw-dropping walk-in closet.

Classic 5 Bedroom 2 Story Barndominium Floor Plan Classic 5 Bedroom 2 Story Barndominium Floor Plan Classic 5 Bedroom 2 Story Barndominium Floor Plan - Front Exterior

Classic 5 Bedroom 2 Story Barndominium Floor Plan Classic 5 Bedroom 2 Story Barndominium Floor Plan - Main Floor Plan

Classic 5 Bedroom 2 Story Barndominium Floor Plan Classic 5 Bedroom 2 Story Barndominium Floor Plan - Upper Floor Plan

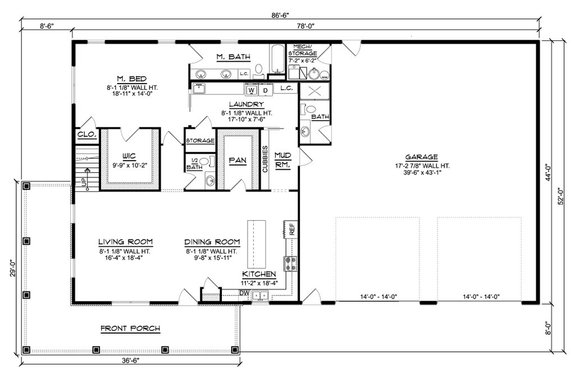
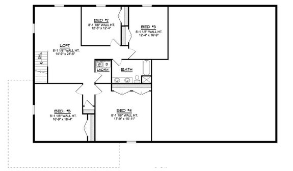
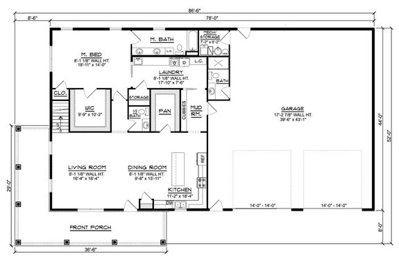
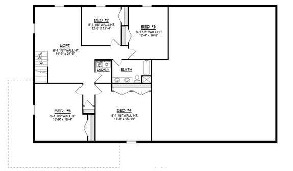
What catches our eye immediately about this two-story barndominium plan is the large two-car garage. The two-car garage has space for a workshop and the elevated ceilings allow for larger vehicles and equipment to be stored here. Through the garage on the first floor, there’s a convenient mud room that connects to the walk-in laundry room. Connected to the laundry room is the primary suite, which features a walk-in closet and private bathroom. All the guest bedrooms are on the second floor along with the second laundry room and cozy loft.

Unique 5 Bedroom 2 Story Barndominium Unique 5 Bedroom 2 Story Barndominium Unique 5 Bedroom 2 Story Barndominium - Front Exterior

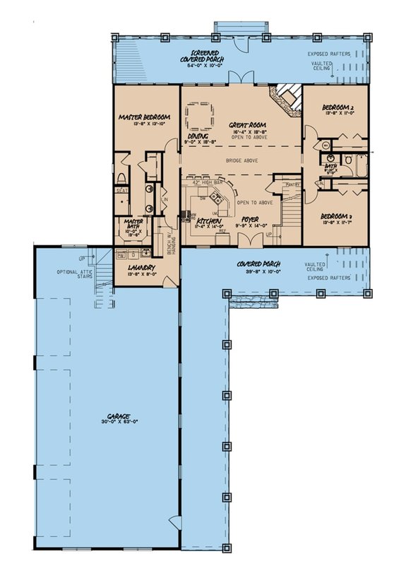
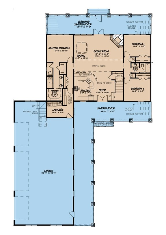
Unique 5 Bedroom 2 Story Barndominium Unique 5 Bedroom 2 Story Barndominium - Main Floor Plan

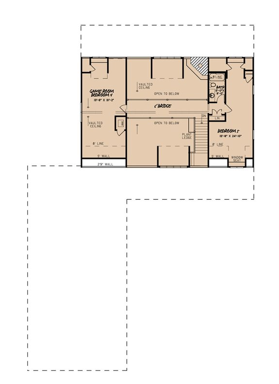
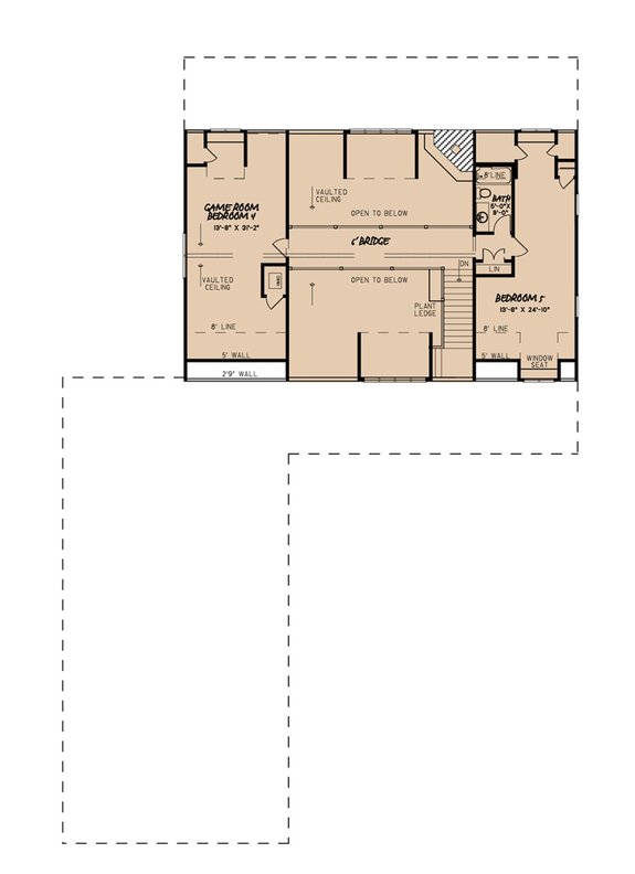
Unique 5 Bedroom 2 Story Barndominium Unique 5 Bedroom 2 Story Barndominium - Upper Floor Plan

The covered porch of this L-shaped barndominium floor plan adds so much country curb appeal. The porch stretches the entire length of the four-car garage. The primary suite is on the first floor and sits on the opposite side of the two guest bedrooms. Separating the bedrooms is the open living room that has great indoor-outdoor flow to the rear porch. There’s a unique layout upstairs on the second floor where the two final guest bedrooms are connected by a bridge. The bedrooms themselves are incredibly spacious and feature some additional storage space.

See our full collection of barndominium plans here.

5 Bedroom 2 Story Barndominium Floor Plans Inspiration

Get Our Newsletter

Be the first to see new plans, special offers, and more.

By signing up for our newsletter, you agree to our Terms & Conditions and Privacy Policy, for an account

Blog Subscribe Icon