Blog Home > 7 Stunning Modern Farmhouse Plans from Visbeen Architects

The Houseplans Blog

7 Stunning Modern Farmhouse Plans from Visbeen Architects

Check out these modern farmhouse plans from Visbeen Architects.

Hero Image

September 13, 2024

Livabl Brand

Can't find what you're looking for?

Give us a call below or reach out and we’ll make sure to be in contact!

Send Us a Message

By Courtney Pittman

We’re never not swooning over these modern farmhouse plans from Visbeen Architects (who has been the recipient of many national awards). What do they have in common? Look for indoor/outdoor living, well-thought-out kitchens, and streamlined layouts to seal the deal. Oh, and (of course) unapologetically attractive exteriors.

Explore our collection of house plans from Visbeen Architects here.

Two-Story Farmhouse Plan with Sunroom Two-Story Farmhouse Plan with Sunroom Two-Story Farmhouse Plan with Sunroom - Front Exterior

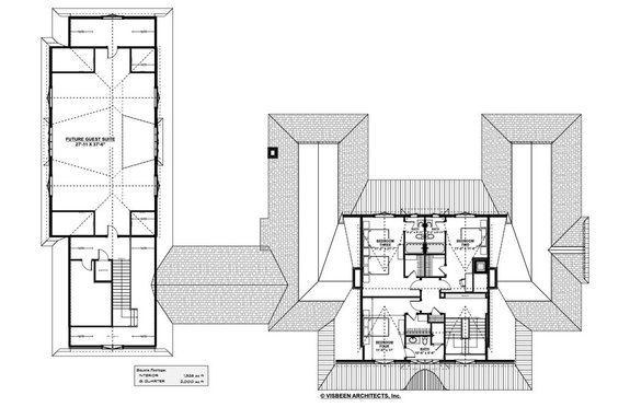
Two-Story Farmhouse Plan with Sunroom Two-Story Farmhouse Plan with Sunroom - Main Level

Two-Story Farmhouse Plan with Sunroom Two-Story Farmhouse Plan with Sunroom - Upper Level

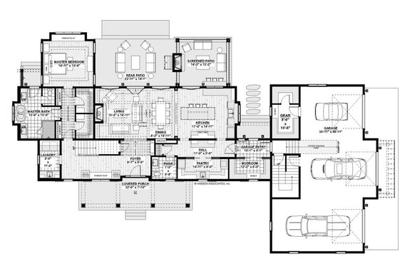
We love a two-story farmhouse plan. From the inviting front porch to the spacious open layout, this design is full of country style. A big pantry keeps groceries organized, while a kitchen island serves the living/dining room. The breakfast nook sits close by. Our favorite part? The bright sunroom, which features a fireplace and an eating bar.

Located on the main level for convenience, the primary suite shows off a sitting area, a spa-like bathroom, a large walk-in closet, and a dressing room. Three bedroom suites reside on the second floor. A future guest suite can be finished now or later.

Plenty of Outdoor Living Plenty of Outdoor Living Plenty of Outdoor Living - Front Exterior

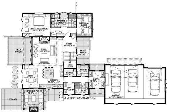
Plenty of Outdoor Living Plenty of Outdoor Living - Main and Upper Levels

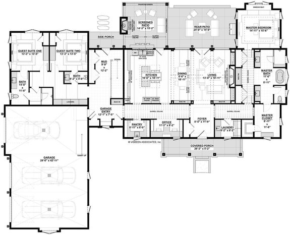
It’s all in the details! This modern farmhouse design gives you plenty of room for outdoor living with front and rear porches. An island in the kitchen makes it easy to meal prep. The dining area and the living room sit nearby.

Here’s a cool touch: the primary suite features direct access to the laundry room. Two bedrooms share a hall bath on the left side of the plan. A bedroom suite waits on the second level, along with a versatile office.

Browse our farmhouse plans collection here.

Farmhouse Plan with Game Room Farmhouse Plan with Game Room Farmhouse Plan with Game Room - Front Exterior

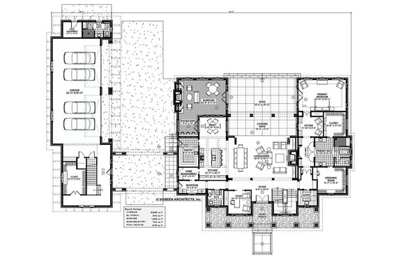
Farmhouse Plan with Game Room Farmhouse Plan with Game Room - Main Level

Farmhouse Plan with Game Room Farmhouse Plan with Game Room - Upper Level

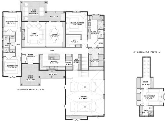
Jam-packed with amenities, this farmhouse floor plan impresses with a super-open layout. Check out the generous walk-in pantry in the kitchen. Enjoy some rest and relaxation on the rear patio or the screened porch (with a fireplace).

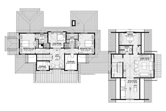
Just off the three-car garage, a well-equipped mudroom is ready to keep you organized. The main-level primary suite keeps clothes tidy with not one, but two closets. The second floor shines with a flex room, two bedrooms, a game room, an office, and a bunk room.

Three Bedroom Suites Three-Bedroom Suites Three-Bedroom Suites - Front Exterior

Three-Bedroom Suites Three-Bedroom Suites - Main Level

Two bedroom suites reside on the left side of the plan, while the lavish primary suite enjoys privacy on the right. At the heart of the home, the super-open layout includes a spacious island kitchen, a breezy dining area, and a fireplace-warmed living room.

Everything has a place in the smart mudroom (with two closets and lockers nearby). Nice weather? Kick back and relax on the rear patio, which includes a screened patio with a fireplace and an eating bar. Don’t miss the office or the three-car garage.

Loving any of the plans you're seeing? Register now to easily save and return to your favorites!

Stylish Farmhouse Plan with Loft Stylish Farmhouse Plan with Loft Stylish Farmhouse Plan with Loft - Front Exterior

Stylish Farmhouse Plan with Loft Stylish Farmhouse Plan with Loft - Main Level

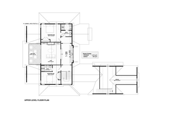
Stylish Farmhouse Plan with Loft Stylish Farmhouse Plan with Loft - Upper Level

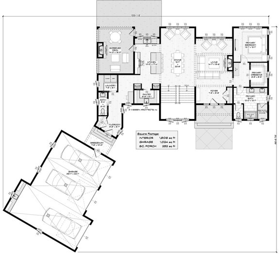
Take a photo tour of this stylish modern farmhouse plan. We love the charming front porch and the metal roof accents. Inside, the open kitchen takes center stage with an island and a walk-in pantry. In the living room, a wall of sliding glass doors opens to the rear covered porch and the patio.

Located on the first floor, the primary suite makes it easy to age in place and shows off a sitting area. Nearby, the flexible study gives you a quiet place to work. The second level gives you two bedroom suites, along with a loft (with a wet bar) and a balcony.

Modern Curb Appeal Modern Curb Appeal Modern Curb Appeal - Front Exterior

Modern Curb Appeal Modern Curb Appeal - Main Level

Modern Curb Appeal Modern Curb Appeal - Upper Level

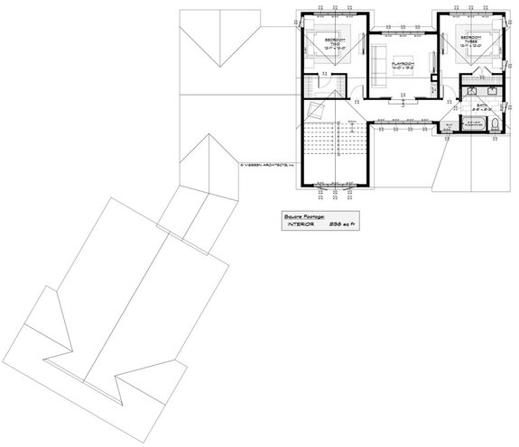
There's no shortage of curb appeal with this modern farmhouse design. Inside, the living room, the dining area, and the island kitchen share one big open space. Note the sink in the walk-in pantry. Enjoy outdoor living (while keeping the bugs at bay) on the fireplace-warmed screened porch.

A breezeway leads you to the three-car garage. The primary suite gives you spacious relaxation zones. Upstairs, a playroom sits between two secondary bedrooms.

Luxe Primary Suite Luxe Primary Suite Luxe Primary Suite - Front Exterior

Luxe Primary Suite Luxe Primary Suite - Main Level

Luxe Primary Suite Luxe Primary Suite - Upper Level

Here’s a modern farmhouse plan that is thoughtfully designed. The kitchen takes center stage with a big island that seats up to six. A fireplace warms the two-story living room, delivering cozy ambiance. Just off the dining area, a screened porch gives you a nice place to relax.

Four sets of lockers offer plenty of room for storage on the way in from the three-car garage. Check out the dressing room in the luxe primary suite on the first floor. An additional bedroom suite, two more bedrooms, a hall bath, and a loft complete the second level.

Discover more house plans from Visbeen Architects.

Get Our Newsletter

Be the first to see new plans, special offers, and more.

By signing up for our newsletter, you agree to our Terms & Conditions and Privacy Policy, for an account

Blog Subscribe Icon