Blog Home > 6 Striking A-Frame House Plans with 3 Bedrooms

The Houseplans Blog

6 Striking A-Frame House Plans with 3 Bedrooms

Rustic Retreat, Anyone?

Hero Image

October 16, 2023

Livabl Brand

Can't find what you're looking for?

Give us a call below or reach out and we’ll make sure to be in contact!

Send Us a Message

A-frame house plans are all about awesome curb appeal and outdoor living. They tend to feel most at home on rustic wilderness lots, preferably one that offers a view of something special (A-frame homes typically boast tons of windows, in addition to cool outdoor perks, like spacious decks). A true A-frame design features a roof that extends all the way to the ground, creating the look of an "A." Below you'll discover six three-bedroom A-frame plans, most of which feature a more subtle variation of the roof (but still evoke the look and feel of a classic A-frame cabin).

Explore the A-Frame House Plans Collection

1. Woodsy Vibes Rustic A-Frame Cabin Plan 118-167 - Front Exterior Rustic 3 Bedroom A-Frame Cabin Plan 118-167 - Front Exterior

Rustic 3 Bedroom A-Frame Cabin Plan 118-167 - Main Floor Plan Rustic 3 Bedroom A-Frame Cabin Plan 118-167 - Main Floor Plan

Rustic 3 Bedroom A-Frame Cabin Plan 118-167 - Upper Floor Plan Rustic 3 Bedroom A-Frame Cabin Plan 118-167 - Upper Floor Plan

This rustic A-frame layout radiates warm woodsy vibes. Imagine walking through the French doors of the great room and onto the spacious wrap-around deck. Maybe with a good book, a cozy sweater, and a glass of wine?

Upstairs, note the chic primary bedroom, which enjoys a vaulted ceiling and a private, fairy-tale balcony.

2. Three Beds and a Loft Small 3 Bedroom A-Frame Cabin Plan 126-188 - Front Exterior Small 3 Bedroom A-Frame Cabin Plan 126-188 - Front Exterior

Small 3 Bedroom A-Frame Cabin Plan 126-188 - Main Floor Plan Small 3 Bedroom A-Frame Cabin Plan 126-188 - Main Floor Plan

Small 3 Bedroom A-Frame Cabin Plan 126-188 - Upper Floor Plan Small 3 Bedroom A-Frame Cabin Plan 126-188 - Upper Floor Plan

Looking for a main-level primary suite? This plan’s got one. Note how the primary bedroom enjoys two closets (one of which is a walk-in) and easy access to the laundry room. Additional main-level call-outs include a cooktop kitchen island and a deck. Upstairs you’ll discover two additional bedrooms and a loft, which someone might use as an office or a kids' play area. Note how Bedroom 2 gets its own private deck! Remember when I said A-frame house plans are all about outdoor living? This is what I was talking about.

3. Hip, Hip...Chalet! 3 Bedroom Chalet House Plan 47-665 - Front Exterior 3 Bedroom Chalet House Plan 47-665 - Front Exterior

3 Bedroom Chalet House Plan 47-665 126-188 - Main Floor Plan 3 Bedroom Chalet House Plan 47-665 - Main Floor Plan

3 Bedroom Chalet House Plan 47-665 - Upper Floor Plan 3 Bedroom Chalet House Plan 47-665 - Upper Floor Plan

This 25' wide A-frame design adds a touch of wavy ornamentation to its signature A shape, making it a Chalet-style home. Note how outdoor living once again reigns supreme. The main-level enjoys a veranda while the upper level sports a spacious balcony. Also, curb appeal. Could it get any cuter? I think not.

4. Vaulted Here, Vaulted There, Vaulted (Nearly) Everywhere! 3 Bedroom A-Frame Cabin Plan 124-1095 - Front Exterior 3 Bedroom A-Frame Cabin Plan 124-1095 - Front Exterior

3 Bedroom A-Frame Cabin Plan 124-1095 - Main Floor Plan 3 Bedroom A-Frame Cabin Plan 124-1095 - Main Floor Plan

3 Bedroom A-Frame Cabin Plan 124-1095 - Upper Floor Plan 3 Bedroom A-Frame Cabin Plan 124-1095 - Upper Floor Plan

All three bedrooms and the kitchen of this cabin design feature vaulted ceilings. How cool is that? On the main level, note the primary suite’s large walk-in closet, two sinks, and separate tub and shower. Most importantly, note the great room. With its warm fireplace, cute bench seats, and grandiose windows, this room is the heart of the house. In the kitchen, note the island and walk-in pantry. And finally, the deck. How cool is that deck? Outdoor living for the win!

Related Article: 18 Deck Decorating Ideas for a Stylish Outdoor Room from Better Homes and Gardens

5. Need a Walkout Basement? 3 Bedroom A-Frame Cabin Plan with Walkout Basement 23-602 - Front Exterior 3 Bedroom A-Frame Cabin Plan with Walkout Basement 23-602 - Front Exterior

3 Bedroom A-Frame Cabin Plan with Walkout Basement 23-602 - Main Floor Plan 3 Bedroom A-Frame Cabin Plan with Walkout Basement 23-602 - Main Floor Plan

3 Bedroom A-Frame Cabin Plan with Walkout Basement 23-602 - Upper Floor Plan 3 Bedroom A-Frame Cabin Plan with Walkout Basement 23-602 - Upper Floor Plan

This small and rustic A-frame cabin plan offers an open-concept main level, three bedrooms, a loft area, and two baths. Note how the laundry is featured upstairs for easy access. What’s more, on the main level, enter through the right side of the property and you’ll find yourself standing in the mudroom, perfect for rainy or snowy days when coats, boots, and umbrellas must be discarded.

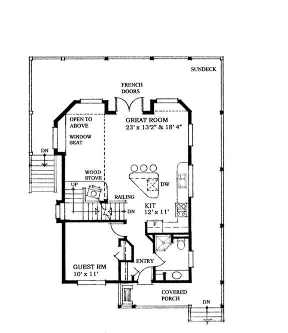
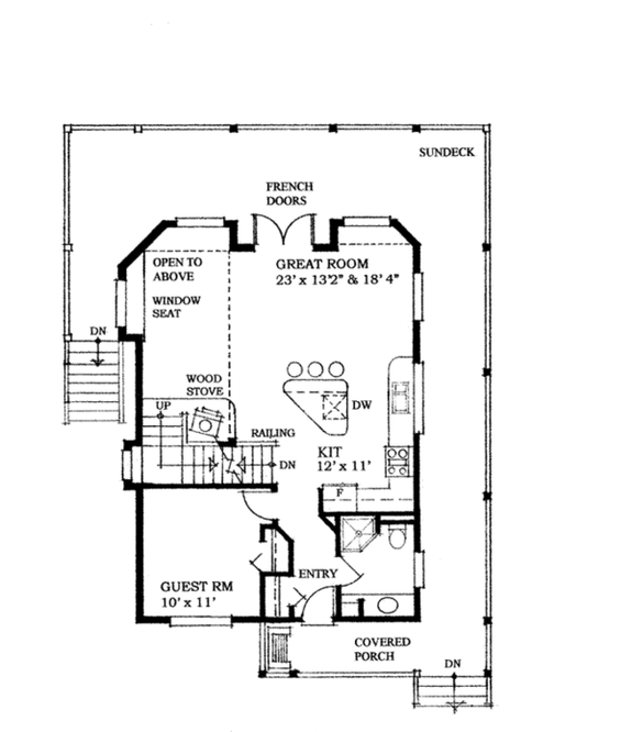
6. Totally Decked Out! Small 3 Bedroom A-Frame Plan 933-16 - Front Exterior Small 3 Bedroom A-Frame Plan 933-16 - Front Exterior

Small 3 Bedroom A-Frame Plan 933-16 - Main Floor Plan Small 3 Bedroom A-Frame Plan 933-16 - Main Floor Plan

Small 3 Bedroom A-Frame Plan 933-16 - Upper Floor Plan Small 3 Bedroom A-Frame Plan 933-16 - Upper Floor Plan

In true A-frame style, this striking cabin plan boasts a roof that extends all the way to the ground. Inside, notice how the kitchen lives upstairs, while the bedrooms and laundry room live on the main level. Hot perks of this layout include a large kitchen island and a spacious walk-in closet in the primary suite. Have we talked about the decks yet? Check out the decks! There's one deck exclusively for the primary suite, another deck for the two secondary bedrooms, a third deck off the foyer, and a balcony off the living room. Whoa.

Explore even more A-frame house plans here.

Get Our Newsletter

Be the first to see new plans, special offers, and more.

By signing up for our newsletter, you agree to our Terms & Conditions and Privacy Policy, for an account

Blog Subscribe Icon