By Gabby Torrenti
A frame homes are unique and visually appealing. Set apart by steep roofs and a signature “A” shape, this style of home is both fun to look at and highly practical. These plans feature large walls of windows that accentuate the home’s funky shape, lots of outdoor living space, and interior construction that mimics the home’s slanted exterior. Vaulted ceilings are created naturally by the roof shape, making these homes feel grand and inviting, while many feature elaborate blueprints that make use of every last square foot of living space.
Do you want to explore our full collection of A frame house plans? Check out these unique homes here.
Classic A Frame Cabin
Plan 126-188
From the outside, this home invites you inside with large windows and a gabled roof, which borders the spacious deck. On the main level, a combined great room and dining space create a light-filled area for entertaining or spending time with family. Just a few steps away, a large kitchen with a center island serves as the home’s hub, leading effortlessly into a convenient powder room and separate laundry room. At the back of the home, the primary suite includes two closets and a sizable ensuite bathroom. A back porch gives the owners a private space to relax as well. Head upstairs via a tucked-away staircase, which provides access to two additional bedrooms, a full bathroom, loft space, and lots of attic storage. The second guest bedroom comes equipped with its own elevated deck, giving guests their own space to enjoy the elements. Beneath the main level, a large basement features nearly 900 square feet of living space, as well as an additional bathroom. This basement is highly customizable and can be simply converted into the ultimate entertaining space.
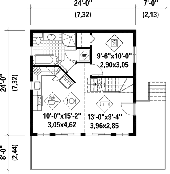
Light-Filled A Frame Home
Plan 126-181
At the front of this home, a covered porch allows you to enjoy outdoor living regardless of the weather, while floor-to-ceiling windows create unmatched visual appeal. Sliding glass doors lead inside, where a merged living and dining space with a central fireplace makes the home feel simultaneously cozy and spacious. Further into the home is a spacious kitchen, including a snack bar and attached pantry for added convenience. Down the central hallway is a guest bedroom, equipped with its own closet and full bathroom. Across the hall, a versatile utility room provides a perfect space for stashing coats and bags or housing the home’s washer and dryer. Up the staircase is the primary bedroom, which takes up more than half of the second floor, making it feel truly palatial. This space includes a private ensuite bathroom, both closet space and access to attic storage, and French doors that lead onto an elevated deck. The opposite side of the second floor features a balcony, which allows the owners a view of their entire home, just steps outside of the primary suite. Vaulted ceilings throughout open the space and contribute to the grandness of this space.
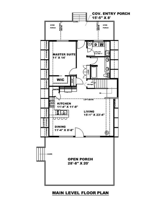
Modern A Frame Cabin
Plan 23-2718
After arriving on the property, head onto the home’s main terrace via a front staircase. From here, a double-door entrance invites you indoors and into the living room and dining room. Beyond, a large kitchen with a sizable central island creates the perfect entertaining space, leading effortlessly into a sitting area with a wood stove. This cozy space provides access to a covered porch, which surrounds the entire left side of the home and makes an idea outdoor space to relax. Further into the home, a convenient pantry lets you keep cooking supplies and ingredients within reach. At the back of the main level, the primary suite gives the homeowners a relaxing getaway, including its own full bathroom and porch access. Across the hallway, a second bedroom lets children or guests stay close by. Each bedroom comes equipped with ample storage space and a hall bathroom can be used by guests with ease. Upstairs, guests can enjoy two more bedrooms, as well as a full bathroom with a private shower room. The second floor is made complete by a game room, which is an ideal space for unwinding after a long day. If cozying up with a book is more your style, a separate reading nook with built-in bookshelves provides a quaint space to relax.
Looking for decorating inspiration to create the A frame of your dreams? Check out these cabin-inspired decorating tips from Rocket Homes.
Swiss Style A Frame Cottage
Plan 25-4272
With a sizable veranda to welcome guests indoors, this home is the epitome of European-inspired modern comfort. The main floor features a sizable living space, which opens into an eat-in kitchen. Beyond this space is a guest bedroom with its own full bathroom, giving visitors simple access to the home’s main living area. A staircase leads upstairs, where you can find the primary suite with a walk-in closet and full bathroom. This second floor gives the owners their own private space, plus a walk-in closet for optimal storage solutions. Additional bonus space upstairs allows you to customize this home to fit your family’s specific needs.
Contemporary A Frame
Plan 117-914
This home epitomizes classic A frame living. The roof extends all the way down to the foundation, making this home truly stand out. The unique design features are carried through the home, beginning on the large, welcoming veranda. Step through the main glass doors and into the spacious combined living and dining area, which is connected to the kitchen via a breakfast bar. Before venturing to the back of the home, look up to enjoy the home’s elevated features, like the lofted balcony which connects the main and second floors. The main level is completed by a sizable primary suite with its own walk-in closet and full bathroom with dual sinks. This suite is conveniently located with access to the laundry room and linen closet, as well. Upstairs, a second bedroom provides children or guests with their own space, with the added perks of a full bathroom and access to the covered porch. A customizable loft space completes the second floor, while lots of storage adds to the comfort and convenience of this contemporary home.










