Blog Home > Trend Alert: Barndominium Floor Plans

The Houseplans Blog

Trend Alert: Barndominium Floor Plans

Stay on-trend with these barndominium floor plans.

Hero Image

August 25, 2022

Livabl Brand

Can't find what you're looking for?

Give us a call below or reach out and we’ll make sure to be in contact!

Send Us a Message

By Courtney Pittman

Here are our freshest barndominium floor plans. Look for modern amenities like generous island kitchens, spacious garages/workshops, and multi-use spaces. Although the term “barndominium” typically refers to a metal building, our collection features mostly traditional wood framing. Stay on-trend with these popular designs.

Feeling inspired? Explore our barndominium floor plans collection here.

Small Barndominium Floor Plan Small Barndominium Floor Plan Small Barndominium Floor Plan - Front Exterior

Small Barndominium Floor Plan Small Barndominium Floor Plan - Main Floor Plan

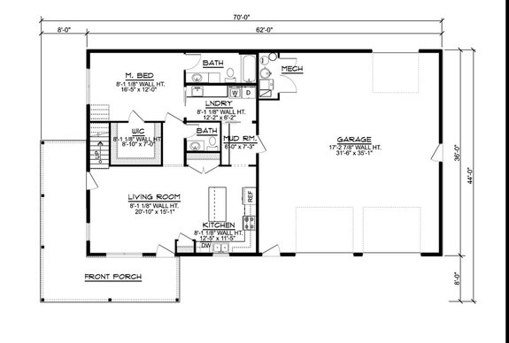
This charming 1,263-square-foot barndominium floor plan delivers plenty of welcome amenities in a compact footprint. Board-and-batten siding, a gable roof, and a wide front porch create country curb appeal. Inside, the open layout gives you a kitchen island (with a snack bar) that overlooks the living room and dining area.

The primary suite sports a walk-in closet and a custom shower. An additional bedroom (with a walk-in closet) and a full bath sit near the front of the plan. Barn doors in both the kitchen and the primary suite add style (check out these barn door ideas from Country Living). Kick back and relax on the rear porch.

Barndominium Floor Plan with Wraparound Porch Barndominium Floor Plan with Wraparound Porch Barndominium Floor Plan with Wraparound Porch - Front Exterior

Barndominium Floor Plan with Wraparound Porch Barndominium Floor Plan with Wraparound Porch - Main Floor Plan

Barndominium Floor Plan with Wraparound Porch Barndominium Floor Plan with Wraparound Porch - Upper Floor Plan

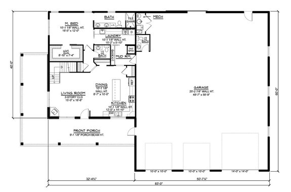
A barn-inspired house plan with a wraparound porch? Yes please! This design gives you a bright and open layout with an island kitchen. Groceries stay organized in the thoughtful pantry.

The first-floor primary suite makes it easy to age in place and features a sizable walk-in closet. Three secondary bedrooms and a versatile loft complete the second level. Enjoy storage galore in the huge garage.

Barndominium Floor Plan with Screened Porch Barndominium Floor Plan with Screened Porch Barndominium Floor Plan with Screened Porch - Front Exterior

Barndominium Floor Plan with Screened Porch Barndominium Floor Plan with Screened Porch - Main Floor Plan

Here’s a three-bedroom barndo plan that’s all about casual comfort. A wraparound porch delivers timeless curb appeal, while a screened porch offers multi-season outdoor living. The lodge room draws the eye up with a vaulted ceiling and opens to the island kitchen.

Other impressive details include two closets in the primary suite, an outdoor kitchen, and a flexible keeping room.

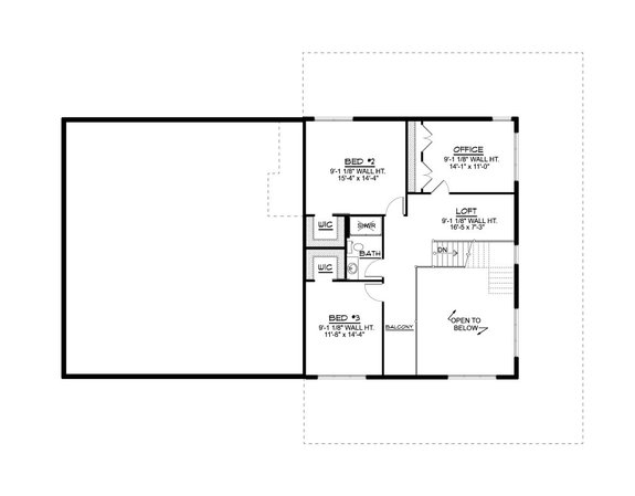
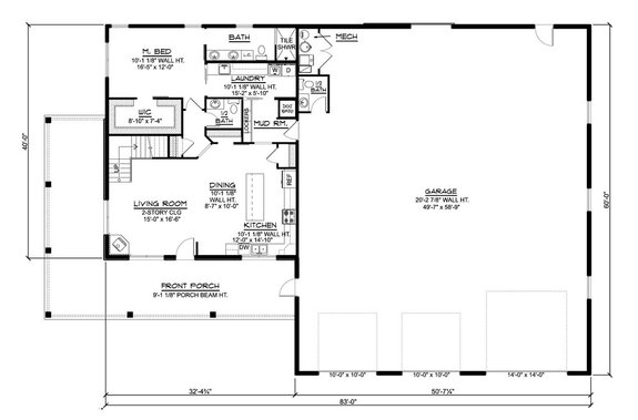
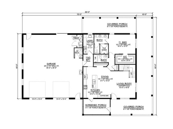
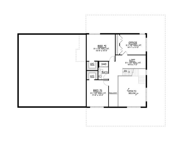
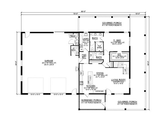
Barndominium Floor Plan with Coffee Bar Barndominium Floor Plan with Coffee Bar Barndominium Floor Plan with Coffee Bar - Front Exterior

Barndominium Floor Plan with Coffee Bar Barndominium Floor Plan with Coffee Bar - Main Floor Plan

Barndominium Floor Plan with Coffee Bar Barndominium Floor Plan with Coffee Bar - Upper Floor Plan

Inside and out, this barndominium design impresses with smart and stylish details. The contemporary floor plan creates a relaxed vibe. Check out the cool coffee bar in the kitchen. The two-car garage includes a big work space and a half bath.

A spacious walk-in closet, dual sinks, and a big shower highlight the first-floor primary suite. Upstairs, two secondary bedrooms sport walk-in closets. A versatile loft and a home office round out this level.

Garage Apartment Barndominium Floor Plan Garage Apartment Barndominium Floor Plan Garage Apartment Barndominium Floor Plan - Front Exterior

Garage Apartment Barndominium Floor Plan Garage Apartment Barndominium Floor Plan - Main Floor Plan

Garage Apartment Barndominium Floor Plan Garage Apartment Barndominium Floor Plan - Upper Floor Plan

Here’s a cool garage apartment plan with barndominium style. The main level holds two cars and gives you plenty of space for storage. Upstairs hosts a relaxed layout that includes a living room, an efficient kitchen, a bedroom, and a full bath.

Barndominium Floor Plan with Loft Barndominium Floor Plan with Loft Barndominium Floor Plan with Loft - Front Exterior

Barndominium Floor Plan with Loft Barndominium Floor Plan with Loft - Main Floor Plan

Barndominium Floor Plan with Loft Barndominium Floor Plan with Loft - Upper Floor Plan

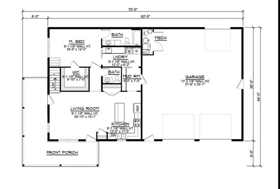
This two-story house plan packs a serious style punch – and we are here for it. Displaying a classic barn look, the exterior features a gable roof, metal siding, and a big three-car garage. The kitchen is accented with a center island and lots of counter space.

The primary suite sits on the main level, while two secondary bedrooms are located upstairs. A loft could become a home office or a game room.

One-Story Barndominium Floor Plan One-Story Barndominium Floor Plan One-Story Barndominium Floor Plan - Front Exterior

One-Story Barndominium Floor Plan One-Story Barndominium Floor Plan - Main Floor Plan

Who knew you could do so much with 1,800 square feet? The free-flowing layout between the main living spaces creates a modern vibe. The kitchen’s island is a nice touch. Just off the lodge room, sliding glass doors lead to a covered porch (with a fireplace) and open deck.

The vaulted primary suite rests in the left wing of the plan, while two more bedrooms and a hall bath sit in the right.

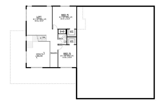
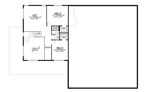
Barndominium Floor Plan with Curb Appeal Barndominium Floor Plan with Curb Appeal Barndominium Floor Plan with Curb Appeal - Front Exterior

Barndominium Floor Plan with Curb Appeal Barndominium Floor Plan with Curb Appeal - Main Floor Plan

Barndominium Floor Plan with Curb Appeal Barndominium Floor Plan with Curb Appeal - Upper Floor Plan

This barndominium floor plan embraces outdoor living with a big wraparound porch. Inside, the easygoing floor plan feels contemporary and practical. The well-equipped kitchen gives you a central island with an eating bar that overlooks the vaulted great room and dining area. Steps away, lockers keep things organized (much like these mudrooms with lockers from HGTV.)

Located on the main floor, the primary suite shows off two sink vanities, a large custom shower with a seat, and an impressive walk-in closet. Another bedroom suite sits nearby, while a hall bath separates two secondary bedrooms (each with a walk-in closet) on the second level. A loft gives you all kinds of possibilities.

Barndominium Floor Plan with Fitness Room Barndominium Floor Plan with Fitness Room Barndominium Floor Plan with Fitness Room - Front Exterior

Barndominium Floor Plan with Fitness Room Barndominium Floor Plan with Fitness Room - Main Floor Plan

Barndominium Floor Plan with Fitness Room Barndominium Floor Plan with Fitness Room - Upper Floor Plan

Relax and entertain inside this barndominium floor plan. The open layout promotes easy living and places the island kitchen at the center of it all. Don’t miss the two-car garage, the spacious fitness room, and the home office – all located on the first floor.

Classic Barndominium Floor Plan Classic Barndominium Floor Plan Classic Barndominium Floor Plan - Front Exterior

Classic Barndominium Floor Plan Classic Barndominium Floor Plan - Main Floor Plan

Evoking classic barn style, this plan shows off a modern layout. Check out the roomy island kitchen – which opens directly to the dining area and the great room. Don’t miss the cool pass-through fireplace.

Brimming with style, the primary suite shines with a freestanding tub, a large tile shower, and a super-spacious closet. Four more bedrooms and a living space for kids or guests sit on the opposite side of the plan. Here’s a fun detail: the big laundry/mudroom comes equipped with a dog wash station.

Explore more barndominium floor plans here.

Get Our Newsletter

Be the first to see new plans, special offers, and more.

By signing up for our newsletter, you agree to our Terms & Conditions and Privacy Policy, for an account

Blog Subscribe Icon