Blog Home > 4 Barndominium Floor Plans with Pictures for 2024

The Houseplans Blog

4 Barndominium Floor Plans with Pictures for 2024

See inside some of our hottest barndo designs!

Hero Image

February 12, 2024

Livabl Brand

Can't find what you're looking for?

Give us a call below or reach out and we’ll make sure to be in contact!

Send Us a Message

by Jenny Clark

Barndominium plans are especially popular right now. Why? For one, they tend to offer cool stuff, like wraparound porches, shops, RV garages, lofts, and open-concept layouts. They also tend to look good, mixing rustic flair with unique, contemporary curb appeal. Below you'll discover four hot barndominium floor plans with pictures!

Browse the barndominium collection here.

Take note: the plans below are traditional wood-framed house plans that evoke the look and feel of a barn design. If you're specifically looking for a metal-framed barndominium plan, we have those too! Call us for more info: 1-800-913-2350.

Rustic Gambrel Roof Luxury 5 Bedroom Barndominium Floor Plan 70-1488 - Front Exterior Luxury 5 Bedroom Barndominium Floor Plan 70-1488 - Front Exterior

Luxury 5 Bedroom Barndominium Plan 70-1488 - Main Floor Luxury 5 Bedroom Barndominium Plan 70-1488 - Main Floor

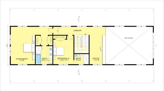
Luxury 5 Bedroom Barndominium Plan 70-1488 - Upper Floor Luxury 5 Bedroom Barndominium Plan 70-1488 - Upper Floor

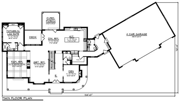
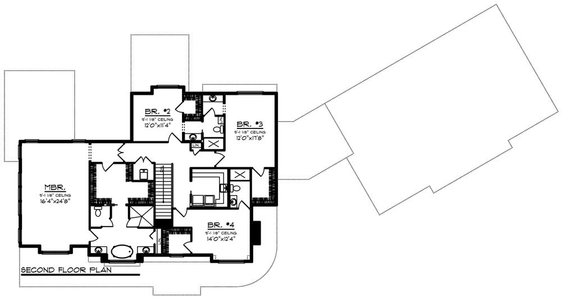
This luxurious five-bedroom floor plan sports a gambrel roof, eliciting that unique barn look. On the main level, note the kitchen island, the mother-in-law suite, the four-car garage, and a beamed ceiling above the family room. Upstairs you'll discover the rest of the bedrooms, including the primary suite which offers a walk-in closet and a separate tub and shower layout in the bathroom.

It's So Tiny! Tiny Barndominium Plan 1070-121 - Front Exterior Tiny Barndominium Plan 1070-121 - Front Exterior

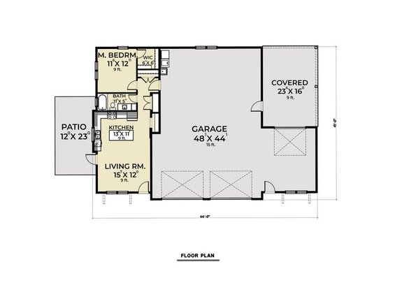
Tiny Barndominium Plan 1070-121 - Main Floor Tiny Barndominium Plan 1070-121 - Main Floor

This tiny layout packs a big punch in terms of style and efficiency. In addition to exterior and interior pictures, this barndo plan offers one bedroom, one bath, an open-concept interior, a kitchen island, a patio, 784 sq. ft. of living space, and a 1,713 sq. ft. garage that could be used as a shop or for storage.

Small & Unique

Small Barndominium Floor Plan 933-10 - Front Exterior Small Barndominium Floor Plan 933-10 - Front Exterior

Small Barndominium Plan 933-10 - Main Floor Small Barndominium Plan 933-10 - Main Floor

Small Barndominium Plan 933-10 - Lower Floor Small Barndominium Plan 933-10 - Lower Level

Something about this plan's exterior just grabs you. It's cute, contemporary, and unique. Inside it gets even better, with a modern open-concept layout, a kitchen island, an office area, two bedrooms, and two baths. Best of all, this design sports two decks for outdoor living (note how the primary suite has its own deck!)

It's a Beauty

Modern Farmhouse Plan 888-15 - Front Exterior Modern Farmhouse Plan 888-15 - Front Exterior

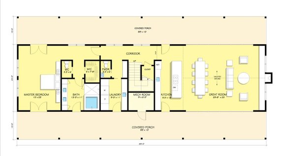
Modern Farmhouse Plan 888-15 - Main Floor Modern Farmhouse Plan 888-15 - Main Floor

Modern Farmhouse Plan 888-15 - Upper Floor Modern Farmhouse Plan 888-15 - Upper Floor

This modern-farmhouse-meets-barndominium floor plan is simply gorgeous. Enjoy outdoor living? This design features two huge covered porches. Need a kitchen island and an open-concept interior? This layout checks that box too. How about bedrooms? With this plan, you get three suites, including a primary suite (the upstairs one) that boasts two sinks, two closets, and a separate tub and shower. Did we mention it's gorgeous? It seriously is!

See more barndo plans here.

Get Our Newsletter

Be the first to see new plans, special offers, and more.

By signing up for our newsletter, you agree to our Terms & Conditions and Privacy Policy, for an account

Blog Subscribe Icon