Blog Home > Convenient Luxury: Porte Cochere House Plans

The Houseplans Blog

Convenient Luxury: Porte Cochere House Plans

Fall in love with these porte cochere house plans.

Hero Image

August 19, 2022

Livabl Brand

Can't find what you're looking for?

Give us a call below or reach out and we’ll make sure to be in contact!

Send Us a Message

By Courtney Pittman

Great for protecting your vehicles and offering a space for loading and unloading, these porte cochere house plans are jam-packed with convenience. Look for covered passageways that create dramatic curb appeal. Here are eight eye-catching designs that capture the essence of luxury living.

Want more? Explore our full collection of porte cochere house plans here.

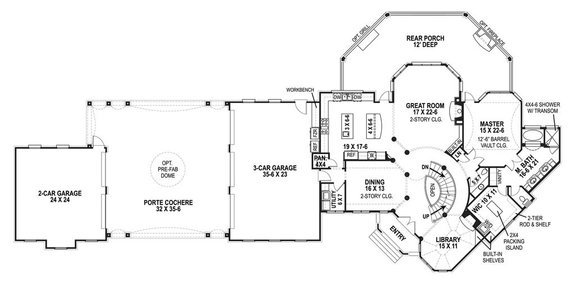
It's a Castle! Castle-Like Porte Cochere House Plan Castle-Like Porte Cochere House Plan - Front Exterior

Castle-Like Porte Cochere House Plan Castle-Like Porte Cochere House Plan - Main Floor Plan

Grand, castle-like curb appeal radiates from this 5,739 sq. ft. single-story porte-cochere house plan. If your goal is to impress, this plan definitely won't let you down. Need a big garage? This design sports two two-car garages. Dreaming of a big, beautiful bedroom? This layout's primary suite comes with dual vanities, dual walk-in closets (one of which features an island), and a separate tub and shower. Craving some outdoor living space? Check out this plan's outdoor kitchen and fireplace. Whoa.

Modern Porte Cochere House Plan Modern Porte Cochere House Plan Modern Porte Cochere House Plan - Front Exterior

Modern Porte Cochere House Plan Modern Porte Cochere House Plan - Main Floor Plan

Modern Porte Cochere House Plan Modern Porte Cochere House Plan - Upper Floor Plan

Sleek details like a gable roof and a porte cochere add elegant drama to the façade of this modern house plan. Inside, the layout is thoughtfully designed with an open floor plan between the main gathering areas. The kitchen island seats six and is ready for casual dining.

Great for aging in place, the first-floor primary suite impresses with a luxurious bathroom and direct access to the laundry room. Other special amenities include a grilling patio, a safe room with storage space in the two-car garage, and a handy home office on the second level (check out these grilling station ideas from HGTV).

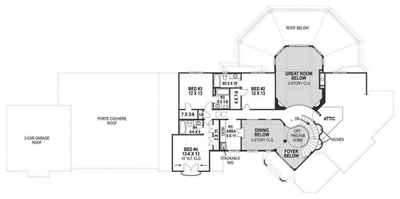
Colonial Porte Cochere House Plan Colonial Porte Cochere House Plan Colonial Porte Cochere House Plan - Front Exterior

Colonial Porte Cochere House Plan Colonial Porte Cochere House Plan - Main Floor Plan

Colonial Porte Cochere House Plan Colonial Porte Cochere House Plan - Upper Floor Plan

Elegant columns frame the porte cochere, which offers a stylish passageway to the entrance of this Colonial design. The main level places the living room (which includes a cozy sitting area next to the fireplace) and the dining space at the heart of the home. Nearby, the kitchen features a cooktop island and easy access to the covered porch.

A den sits next to the foyer and could become a home office if needed. Two bedroom suites add flexibility on the left side of the plan. The owner’s suite and two more bedroom suites rest on the second floor. Don’t miss the versatile exercise room and the cool sunset loft (which opens to a balcony).

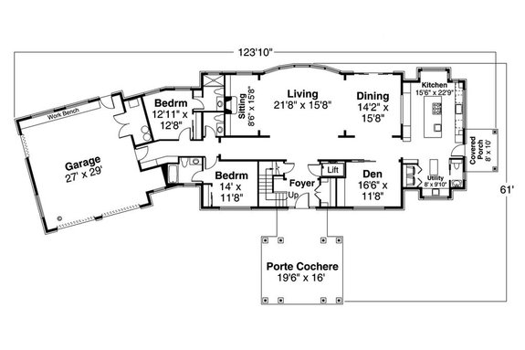
Porte Cochere House Plan with Outdoor Living Porte Cochere House Plan with Outdoor Living Porte Cochere House Plan with Outdoor Living - Front Exterior

Porte Cochere House Plan with Outdoor Living Porte Cochere House Plan with Outdoor Living - Main Floor Plan

Here’s a porte cochere house plan that offers functionality and a relaxed vibe. The island kitchen, great room, and dining area flow into each other – creating an airy feel. The real attraction is the rear porch, where an outdoor kitchen (with an island), a wood burning fireplace, and a half bath make entertaining a breeze.

The luxe primary suite is ready to impress with an island in the closet, a big shower, and private access to the rear porch. Other must-see amenities include the three-car garage, a versatile game room, and a workshop near the front (take a look at these DIY garage storage ideas from Family Handyman).

Contemporary Porte Cochere House Plan Contemporary Porte Cochere House Plan Contemporary Porte Cochere House Plan - Front Exterior

Contemporary Porte Cochere House Plan Contemporary Porte Cochere House Plan - Main Floor Plan

Functional and smart, this contemporary house plan gives you an open layout and plenty of room for indoor/outdoor living (check out the wall of sliding glass doors in the great room). The kitchen shows off a big island, a double-oven, and a roomy pantry.

Ready to relax? Unwind in the deluxe primary retreat, which features two spacious closets, a walk-in shower, and access to the fireplace-warmed gazebo and loggia (via sliding glass doors). Check out the well-organized utility room and the thoughtful wine cellar.

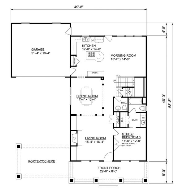
Bungalow Porte Cochere House Plan Bungalow Porte Cochere House Plan Bungalow Porte Cochere House Plan - Front Exterior

Bungalow Porte Cochere House Plan Bungalow Porte Cochere House Plan - Main Floor Plan

Bungalow Porte Cochere House Plan Bungalow Porte Cochere House Plan - Upper Floor Plan

An inviting front porch delivers cute curb appeal to this bungalow house plan. Inside, you can grab casual meals at the kitchen island or relax in the nearby morning room. A bedroom suite next to the living room could also be used as a study.

Don’t miss the comfortable primary suite on the second level, where you'll find four walk-in closets and an optional bonus room. An additional bedroom suite is steps away, along with the laundry room.

Prairie Style Porte Cochere House Plan Prairie Style Porte Cochere House Plan Prairie Style Porte Cochere House Plan - Front Exterior

Prairie Style Porte Cochere House Plan Prairie Style Porte Cochere House Plan - Main Floor Plan

Prairie Style Porte Cochere House Plan Prairie Style Porte Cochere House Plan - Upper Floor Plan

This gorgeous porte cochere house plan gives you an open floor plan with a two-story vaulted living room. Enjoy easy meals at the kitchen’s snack bar or in the breakfast nook (which features skylights). Nearby, the dining room is ready for formal occasions.

The owner’s suite features dual vanity sinks, an extra-big shower, and a private patio. A studio/office awaits close by. Upstairs, two more bedrooms share a Jack-and-Jill bath, while a playroom opens up all kinds of possibilities.

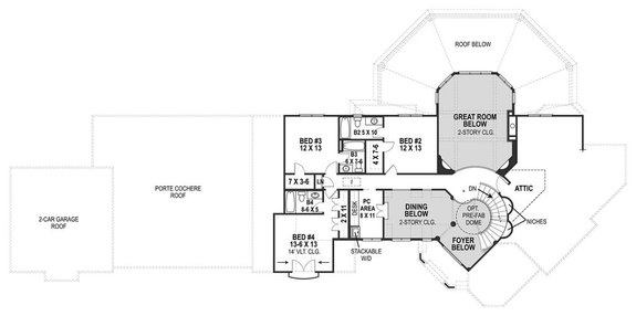
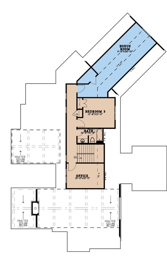
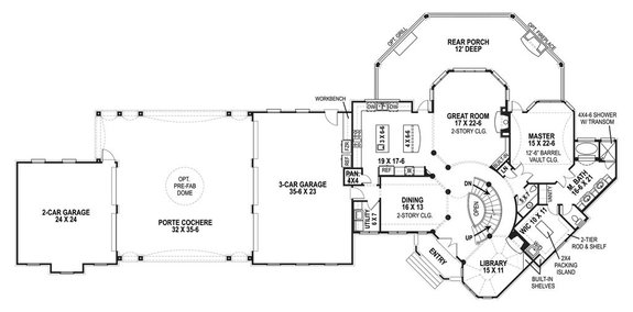
European Style Porte Cochere House Plan European Style Porte Cochere House Plan European Style Porte Cochere House Plan - Front Exterior

European Style Porte Cochere House Plan European Style Porte Cochere House Plan - Main Floor Plan

European Style Porte Cochere House plan European Style Porte Cochere House Plan - Upper Floor Plan

Highlights of this luxurious home include the stone and brick exterior, the versatile library, and the elegant porte cochere. The impressive kitchen showcases two islands. Store groceries in the handy pantry on the way in from the garage.

Enjoy special meals in the formal dining room. The first-floor primary suite feels like an oasis with a vaulted ceiling, an island in the closet, and access to the rear porch. Need room to grow? Three additional bedroom suites sit on the second level.

Ready to explore? Check out the full porte cochere house plans collection here.

Get Our Newsletter

Be the first to see new plans, special offers, and more.

By signing up for our newsletter, you agree to our Terms & Conditions and Privacy Policy, for an account

Blog Subscribe Icon