Don't lose your saved plans! 
Create an account to access your saves whenever you want. See our Terms & Conditions and Privacy Policy.
OR

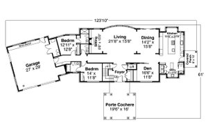
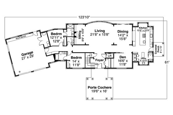
Colonial House Plan 124-1230 4448 Sq Ft, 5 Bed, 5.5 Bath, 2 Floor, 2 Garage

Key Specs
  • 5
    Beds
  • 5.5
    Baths
  • 2
    Floors
  • 2
    Garages
  • 4448
    Square Feet
This colonial design floor plan is 4448 sq ft and has 5 bedrooms and 5.5 bathrooms.

Questions on this plan?

New to the process and looking for some help to kick things off? Let us know a bit about your plans and we’ll be happy to help.

Budget & Customization Tools

Modify icon
Customize this Plan
Tell us about your desired changes and we can prepare an estimate.
Cost to Build icon
Cost to Build Report
A personalized estimate based on your location, plan, & materials.
Cost to Build icon
Residential Construction Guide
This downloadable, 26-page guide is full of diagrams and details about plumbing, electrical, and more.

Full specs & Features

Basic Features

Bedrooms: 5
Baths: 5.5
Stories: 2
Garages: 2

Dimension

Depth: 61'
Height: 31' 8"
Width: 123' 10"

Area

Total: 4448 sq/ft
Garage: 920 sq/ft
Main Floor: 2690 sq/ft
Upper Floor: 1758 sq/ft
* Total Square Footage typically only includes conditioned space and does not include garages, porches, bonus rooms, or decks.

Ceiling

Main Ceiling: 10'
Upper Ceiling Ft: 10'

Roof

Primary Pitch: 6/12
Roof Framing: Truss/Stick
Roof Load: 25

Exterior Wall Framing

Exterior Wall Finish: Brick
Framing: 2x6

Bedroom Features

Guest Suite
Main Floor Bedrooms
Upstairs Bedrooms
Upstairs Master Bedrooms
Walk In Closet

Kitchen Features

Kitchen Island

Additional Room Features

Den Office Study Computer
Exercise Room
Great Room Living Room
Loft
Main Floor Laundry

Garage Features

Carport Porte Cochere
Front Entry Garage

Lot Characteristics

Suited For View Lot

Outdoor Spaces

Balcony
Covered Front Porch

More

Additional Half Bath
Elevator

What's Included

Please note, if ordering a PDF Print Set, it is not-modifiable. The CAD set is best for making local modifications. The "5 set + PDF" combo contains a non-modifiable PDF Print Set.

Each plan set is drawn at 1/4"=1' scale and includes the following drawings:
  • Artist's Rendering: An artist's drawing of the home, usually viewed from the front, and general construction notes.
  • Elevations: Shows the front, sides, and rear, including exterior materials, trim sizes, roof pitches, etc.
  • Main Floor Plan: Shows placement and dimensions of walls, doors, & windows. Includes the location of appliances, plumbing fixtures, beams, ceiling heights, etc.
  • Second Floor Plan (if any): Shows the second floor in the same detail as the main floor. Includes second floor framing and details.
  • Foundation Plan: Shows the location of all concrete footings, floor beams, first floor framing, and foundation details. If there is a basement, a basement plan is included which shows all basement details. Foundation types vary; please call to confirm the foundation type of the plan you are interested in.
  • Floor Framing Plan (if any): Shows location and spacing of floor joists and supporting walls or beams.
  • Roof Framing Plan: Shows roof outlines, conventional framing/trusses, beams, roof framing details, etc. Specific details such as fireplaces, stairways, decks, etc. Details are drawn at 1/2" = 1' scale, and appear as needed throughout the prints.
  • Section: Shows a cross-section of the home. Shows support members, exterior and interior materials, insulation, and foundation.
  • Electrical Plan: A schematic layout of all lighting, switches and electrical outlets.

FAQs

Are designs on Houseplans ready to submit to my building department for permitting?

It depends on where you're building. Our plans contain enough information for a professional builder to construct your home, but your local government may require additional information before permitting. We strongly advise that you talk with your builder before you get started. If you are building for yourself, we recommend visiting your local building department to start your diligence. Read more here.

Can I make changes to a plan?

Absolutely! Our modification service allows you to customize almost anything - whether it's adding an extra garage bay, adjusting square footage, changing the roof pitch, or more, the plan modification service is a great value and can be completed quickly. Additionally, if you purchase an electronic plan set (PDF or CAD), you may have the option to make changes locally. CAD files offer the most flexibility for custom edits. Just let us know what you're thinking, and we’ll provide an estimate and timeframe to get started. Learn more here.

How much does a house cost to build?

Find out! Build costs vary based on the size of the home, materials used, and local rates for goods and labor. Our Cost to Build report is a great way to get some basic costs dialed in before you order your plans. Just plug in your postal code, select your desired construction quality, and we'll calculate for you.

Learn more about Cost to Build reports here.

Can I trust Houseplans?

Founded in 2004, Houseplans works with hundreds of architects and designers to offer their plans at a fraction of the price of custom design. Houseplans has an "Excellent" rating on TrustPilot.

Read more about us here.

Does Houseplans offer live support?

Yes, Houseplans has a dedicated team of house plan advisors with decades of experience between them. You can reach them by calling, emailing, filling out a form on the page of a plan that you like, or going to the Contact Us page. We're available to talk every day, even on weekends.

Builder Advantage Home

Builder Advantage Program

Are you a Pro Builder? Join the club, save 5% on your first order, get exclusive discounts, and more.

Learn More

You may also like

Save Plan
Colonial

Plan 20-1220

$1255.00

beds3

bd

baths2.5

ba

stories2

stories

square feet1699

sq ft

Save Plan
European

Plan 453-56

$1550.00

beds3

bd

baths4

ba

stories2

stories

square feet3359

sq ft

Save Plan
Southern

Plan 44-222

$935.00

beds2

bd

baths1

ba

stories1

story

square feet890

sq ft

Recently viewed plans

Exterior - Front Elevation for Craftsman House Plan #23-2667 - 3 bed, 2 bath
Save Plan

Plan 23-2667

$1680.00

beds3

bd

baths2

ba

stories1

story

square feet1631

sq ft

Exterior - Front Elevation for Colonial House Plan #124-1230 - 5 bed, 5.5 bath
Save Plan

Plan 124-1230

$2435.00

beds5

bd

baths5.5

ba

stories2

stories

square feet4448

sq ft

Signature
Exterior - Front Elevation for Traditional House Plan #928-300 - 3 bed, 2.5 bath
Save Plan

Plan 928-300

$1495.00

beds3

bd

baths2.5

ba

stories2

stories

square feet3761

sq ft

Exterior - Rear Elevation for Beach House Plan #1064-26 - 1 bed, 1.5 bath
Save Plan

Plan 1064-26

$1050.00

beds1

bd

baths1.5

ba

stories2

stories

square feet1343

sq ft

Signature
Exterior - Front Elevation for Southern House Plan #928-316 - 3 bed, 4 bath
Save Plan

Plan 928-316

$1495.00

beds3

bd

baths4

ba

stories2

stories

square feet3360

sq ft

Exterior - Front Elevation for European House Plan #923-293 - 5 bed, 4 bath
Save Plan

Plan 923-293

$1850.00

beds5

bd

baths4

ba

stories2

stories

square feet4521

sq ft

Signature
Exterior - Front Elevation for Farmhouse House Plan #1067-3 - 3 bed, 2.5 bath
Save Plan

Plan 1067-3

$1445.00

beds3

bd

baths2.5

ba

stories1

story

square feet2468

sq ft

Signature
Exterior - Front Elevation for Craftsman House Plan #928-229 - 5 bed, 4.5 bath
Save Plan

Plan 928-229

$1995.00

beds5

bd

baths4.5

ba

stories2

stories

square feet5026

sq ft

Exterior - Front Elevation for Contemporary House Plan #1080-15 - 3 bed, 3.5 bath
Save Plan

Plan 1080-15

$1350.00

beds3

bd

baths3.5

ba

stories2

stories

square feet2468

sq ft

Exterior - Front Elevation for European House Plan #923-69 - 4 bed, 4.5 bath
Save Plan

Plan 923-69

$3250.00

beds4

bd

baths4.5

ba

stories1

story

square feet6554

sq ft

Exterior - Front Elevation for Farmhouse House Plan #120-257 - 3 bed, 2.5 bath
Save Plan

Plan 120-257

$1545.00

beds3

bd

baths2.5

ba

stories1

story

square feet2787

sq ft