Blog Home > 12 Floor Plans with Indoor-Outdoor Living

The Houseplans Blog

12 Floor Plans with Indoor-Outdoor Living

Feel the breeze in this fun roundup, sponsored by Fiberon.

Hero Image

July 8, 2022

Livabl Brand

Can't find what you're looking for?

Give us a call below or reach out and we’ll make sure to be in contact!

Send Us a Message

By Courtney Pittman

Sponsored by Fiberon

Looking for some fresh air? Choose a house plan with spacious decks, covered patios, breezy porches, and more. The twelve designs that we present to you in this article do a great job at creating seamless indoor-outdoor living experiences.

Extend the comforts of home to the outdoors with Fiberon’s outdoor living products. Homeowners are focused on creating experience-based outdoor living spaces – spaces for family dinners, evening relaxation and weekend fun. Combine Fiberon decking and railing with their outdoor lighting and Fiberon Furniture by Breezesta to create a unique experience. Get inspired browsing their gallery.

Farmhouse Plan with Indoor-Outdoor Living Space Farmhouse Plan with Indoor-Outdoor Living Space Farmhouse Plan with Indoor-Outdoor Living Space - Front Exterior

Farmhouse Plan with Indoor-Outdoor Living Space Farmhouse Plan with Indoor-Outdoor Living Space - Main Floor Plan

Farmhouse Plan with Indoor-Outdoor Living Space Farmhouse Plan with Indoor-Outdoor Living Space - Upper Floor Plan

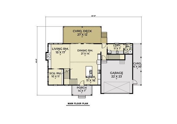
Get the modern farmhouse look with this sweet design. The heart of the home – the kitchen – offers a relaxed island and opens to the family room. Enjoy outdoor living on the rear deck.

The primary suite is located on the main level (making it easy to age in place) and gives you a big shower and direct access to the laundry room. Don’t miss the flexible study near the foyer or the versatile loft on the second floor.

House Floor Plan with Future Deck House Floor Plan with Future Deck House Floor Plan with Future Deck - Front Exterior

House Floor Plan with Future Deck House Floor Plan with Future Deck - Main Floor Plan

House Floor Plan with Future Deck House Floor Plan with Future Deck - Upper Floor Plan

A pocket office and a butler’s pantry are just some of the special features in this farmhouse-style plan. You’ll also find a super-open layout between the main living spaces. The kitchen sports a big island and lots of counter space. Check out the handy drop zone and closet on the way in from the garage.

Upstairs, highlights of the primary suite include two sinks, a coffee corner, and dual closets. A loft and a future deck give even more room for relaxation.

Super-Open Layout Super-Open Layout Super-Open Layout - Front Exterior

Super-Open Layout Super-Open Layout - Main Floor Plan

Super-Open Layout Super-Open Layout - Upper Floor Plan

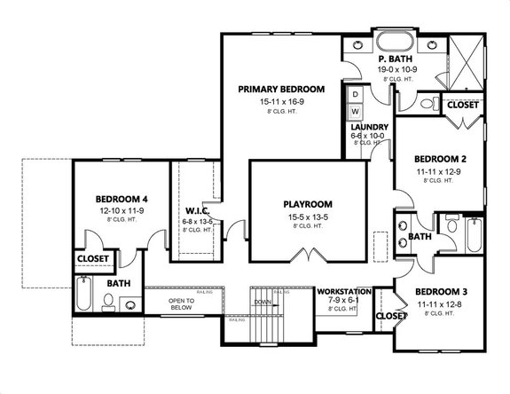
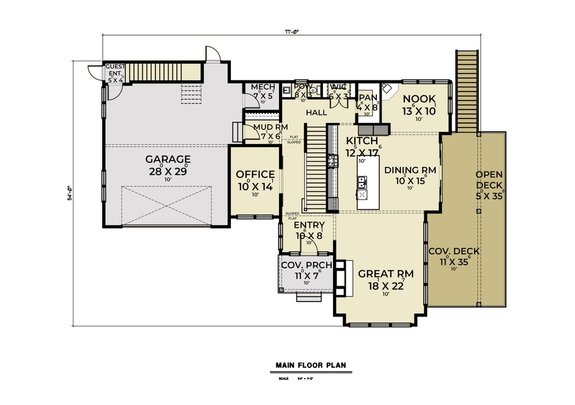
A rear deck adds usable space to this welcoming two-story home. The open gathering areas are the center of attention, with the family room opening to the breakfast nook and the island kitchen. Don’t miss the well-organized mudroom or the big pantry.

A home office and a bedroom suite are located at the back of the main floor plan. Two more bedroom suites (including the luxe primary suite) occupy the second level, along with a playroom, a workstation, and three additional bedrooms.

Sloping-Lot House Plan Sloping Lot House Plan Sloping-Lot House Plan - Front Exterior

Sloping-Lot House Plan Sloping-Lot House Plan - Main Floor Plan

Sloping-Lot House Plan Sloping-Lot House Plan - Upper Floor Plan

Sloping-Lot House Plan Sloping-Lot House Plan - Lower Floor Plan

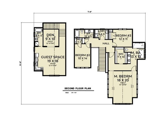
Ideal for a sloping lot, this four-bedroom plan gives you sleek curb appeal. The open kitchen impresses with a big island and loads of counter space. The walk-in pantry is ready to hold groceries. Check out the spacious covered deck just off the dining room.

Upstairs, the elegant primary suite boasts a walk-in closet and a spa-like bathroom. Above the two-car garage, a flexible guest space shows off a kitchenette, a den area, and a full bath. A fourth bedroom, a flex space, and a full bath complete the lower level.

Under 2,500 Square Feet Under 2,500 Square Feet Under 2,500 Square Feet - Front Exterior

Under 2,500 Square Feet Under 2,500 Square Feet - Main Floor Plan

Under 2,500 Square Feet Under 2,500 Square Feet - Upper Floor Plan

A metal roof covers the front porch of this functional farmhouse plan. Inside, the modern floor plan maximizes living space with an open layout. Enjoy outdoor living on the covered deck.

The primary suite and two secondary bedrooms round out the second floor. A bonus room above the two-car garage can be finished later.

Modern Plan with Two Suites Modern Plan with Two Suites Modern Plan with Two Suites - Front Exterior

Modern Plan with Two Suites Modern Plan with Two Suites - Main Floor Plan

Modern Plan with Two Suites Modern Plan with Two Suites - Upper Floor Plan

Great for indoor-outdoor living, this modern house plan features a rear deck just off the dining area. In the kitchen, a snack bar provides space for casual meals. A flex room makes a great den or home office.

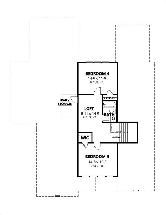
Two bedroom suites (one on the first floor and one on the second) give you sizeable walk-in closets. You’ll find two additional bedrooms (each with a walk-in closet) and a full bath on the second level. We love the spacious family lounge.

Bright and Open Bright and Open Bright and Open - Front Exterior

Bright and Open Bright and Open - Main Floor Plan

Bright and Open Bright and Open - Upper Floor Plan

Looking for a modest plan with lots of light? Check out this efficient design. The living room is highlighted by a cathedral ceiling, a fireplace, and openness to the kitchen.

The primary suite offers a large walk-in closet and sits on the main level. Two secondary bedrooms (one with a generous closet) share a bathroom upstairs. Other features include a handy mudroom and a generous outdoor living space out back.

Rooftop Terrace Rooftop Terrace Rooftop Terrace - Front Exterior

Rooftop Terrace Rooftop Terrace - Main Floor Plan

Rooftop Terrace Rooftop Terrace - Upper Floor Plan

Here’s a clean-lined design that offers comfort and functionality with a modern layout. A pocket office sits on the main level, along with an optional deck just off the kitchen. Organization is made easy thanks to the handy utility room, which includes a drop zone, a bench, and even a pet shower.

Upstairs, the primary suite gives you an extra-big closet (with a seat) and a luxurious bathroom. Two more bedrooms share a hall bath. Take in the view on the rooftop terrace.

Impressive Deck Impressive Deck Impressive Deck - Front Exterior

Impressive Deck Impressive Deck - Main Floor Plan

This modern-style plan makes the most of its modest footprint and shows off plenty of welcome amenities (like a spa-like bathroom in the primary suite). A generous island in the kitchen is ready to serve up casual meals.

Lots of windows provide plenty of natural light. The living room and dining area enjoy access to the impressive deck via sliding glass doors.

Sleek Garage Apartment Plan Sleek Garage Apartment Plan Sleek Garage Apartment Plan - Front Exterior

Sleek Garage Apartment Plan Sleek Garage Apartment Plan - Main Floor Plan

Sleek Garage Apartment Plan Sleek Garage Apartment Plan - Lower Floor Plan

Sleek lines and a balcony/deck highlight the exterior of this modern garage apartment plan. Hang out in the island kitchen, which overlooks the living room and the breakfast nook. A bedroom and a full bath sit near the back of the plan.

Simply Luxurious Simply Luxurious Simply Luxurious - Front Exterior

Simply Luxurious Simply Luxurious - Main Floor Plan

Simply Luxurious Simply Luxurious - Upper Floor Plan

Simply Luxurious Simply Luxurious - Lower Floor Plan

Turn heads with this contemporary house design. On the main level, an open floor plan allows easy movement between the living room and the island kitchen. A practical mudroom waits just off the two-car garage. The kitchen shows off a double-oven and a roomy pantry.

Secluded on the right side of the main floor plan, the primary suite enjoys privacy and a deluxe bathroom. Other wow moments: the huge wraparound deck, the bunk room, and lots of storage.

Small Plan, Big Outdoor Living Small Plan, Big Outdoor Living Small Plan, Big Outdoor Living - Front Exterior

Small Plan, Big Outdoor Living Small Plan, Big Outdoor Living - Main Floor Plan

Stylish and cool, this modern design makes indoor-outdoor living a priority. The "chill deck" connects to the home visually from many rooms, and invites you to grab a cold drink and head outside.

The open kitchen flows effortlessly into the living room. Use the secondary bedroom as a home office if needed.

Want more inspo? Explore our indoor-outdoor living plans collection here.

Get Our Newsletter

Be the first to see new plans, special offers, and more.

By signing up for our newsletter, you agree to our Terms & Conditions and Privacy Policy, for an account

Blog Subscribe Icon