Don't lose your saved plans! 
Create an account to access your saves whenever you want. See our Terms & Conditions and Privacy Policy.
OR

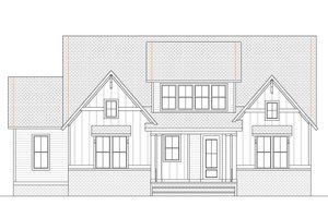
Country House Plan 1080-8 2937 Sq Ft, 4 Bed, 3 Bath, 2 Floor, 2 Garage

Key Specs
  • 4
    Beds
  • 3
    Baths
  • 2
    Floors
  • 2
    Garages
  • 2937
    Square Feet
The main level of this home has been described by clients as "PERFECT!" On the first floor, note the first floor primary bedroom with optional vaulted ceiling, the office (or extra bedroom), and the large kitchen and dining space. Upstairs, note the loft.

Questions on this plan?

New to the process and looking for some help to kick things off? Let us know a bit about your plans and we’ll be happy to help.

Budget & Customization Tools

Modify icon
Customize this Plan
Tell us about your desired changes and we can prepare an estimate.
Cost to Build icon
Cost to Build Report
A personalized estimate based on your location, plan, & materials.
Cost to Build icon
Residential Construction Guide
This downloadable, 26-page guide is full of diagrams and details about plumbing, electrical, and more.

Full specs & Features

Basic Features

Bedrooms: 4
Baths: 3
Stories: 2
Garages: 2

Dimension

Depth: 66' 9"
Height: 29' 6"
Width: 54' 4"

Area

Total: 2937 sq/ft
Decks: 166 sq/ft
Garage: 593 sq/ft
Main Floor: 2251 sq/ft
Upper Floor: 686 sq/ft
* Total Square Footage typically only includes conditioned space and does not include garages, porches, bonus rooms, or decks.

Ceiling

Main Ceiling: 9'
Upper Ceiling Ft: 8'

Roof

Primary Pitch: 9/12
Roof Type: Engineered
Secondary Pitch: 14/12

Exterior Wall Framing

Framing: 2x4

Bedroom Features

Main Floor Bedrooms
Main Floor Master Bedroom
Upstairs Bedrooms
Walk In Closet

Kitchen Features

Breakfast Nook
Kitchen Island
Walk In Pantry Cabinet Pantry

Additional Room Features

Den Office Study Computer
Family Room Keeping Room
Loft
Main Floor Laundry

Garage Features

Side Entry Garage

Outdoor Spaces

Covered Front Porch

What's Included

  • Cover Sheet: Cover sheet, index of sheets and floor and wall framing notes and square footage for this house. If included, the framing layout is intended to be a suggested layout only. Design loads and weather conditions vary by region. As a result the size, spacing, and layout of all structural elements in this home design may need approval by a structural engineer or code official based on your specific site location.
  • Foundation Plan(s): Drawn to ¼” scale, this page shows all necessary notations and dimensions including footing locations, pads, and support walls with excavated and unexcavated areas.
  • Floor Plan(s): Detailed plans drawn to ¼” scale for each level showing room dimensions, window and door sizes, bearing walls and beam locations and bearing points. If included, the framing layout is intended to be a suggested layout only. Design loads and weather conditions vary by region. As a result the size, spacing, and layout of all structural elements in this home design may need approval by a structural engineer or code official based on your specific site location.
  • Exterior Elevations: A blueprint picture of all 4 sides drawn in ¼” scale, showing exterior materials and floor measurements. There may be additional illustrations with measurements of special features.
  • Overhead Roof Plan(s): Detailing what is engineered trussed, stick built and any build overs. There may be additional illustrations with measurements of special features.
  • Cross Section(s): Illustrates a vertical cutaway view of the house from roof down to foundation. These wall sections specify construction and building materials. The number of stories, floor heights, framing details, and the flow of bearing points down to the foundation.
  • Electrical Plan(s): An illustration of where light switches and outlets are located, for a homeowner perspective. The illustration does not conform to the Electrical Standard symbols on the plan, but is a more simplified version for a homeowner understanding.
  • Detail Sheet(s): Illustrates where crown moulding and wainscotting are located in the house. Additional illustrations of special features may be included. Cabinet designs are not included, since most people visit with a cabinet supplier for their unique needs. Room sizes can be referenced back on the floor plan for the opening sizes.
  • Construction Notes / Detail(s): Shows basic parts and assemblies recommended for the home so the builder can see how things come together.

FAQs

Are designs on Houseplans ready to submit to my building department for permitting?

It depends on where you're building. Our plans contain enough information for a professional builder to construct your home, but your local government may require additional information before permitting. We strongly advise that you talk with your builder before you get started. If you are building for yourself, we recommend visiting your local building department to start your diligence. Read more here.

Can I make changes to a plan?

Absolutely! Our modification service allows you to customize almost anything - whether it's adding an extra garage bay, adjusting square footage, changing the roof pitch, or more, the plan modification service is a great value and can be completed quickly. Additionally, if you purchase an electronic plan set (PDF or CAD), you may have the option to make changes locally. CAD files offer the most flexibility for custom edits. Just let us know what you're thinking, and we’ll provide an estimate and timeframe to get started. Learn more here.

How much does a house cost to build?

Find out! Build costs vary based on the size of the home, materials used, and local rates for goods and labor. Our Cost to Build report is a great way to get some basic costs dialed in before you order your plans. Just plug in your postal code, select your desired construction quality, and we'll calculate for you.

Learn more about Cost to Build reports here.

Can I trust Houseplans?

Founded in 2004, Houseplans works with hundreds of architects and designers to offer their plans at a fraction of the price of custom design. Houseplans has an "Excellent" rating on TrustPilot.

Read more about us here.

Does Houseplans offer live support?

Yes, Houseplans has a dedicated team of house plan advisors with decades of experience between them. You can reach them by calling, emailing, filling out a form on the page of a plan that you like, or going to the Contact Us page. We're available to talk every day, even on weekends.

Builder Advantage Home

Builder Advantage Program

Are you a Pro Builder? Join the club, save 5% on your first order, get exclusive discounts, and more.

Learn More

You may also like

Save Plan
Country

Plan 427-1

$897.60

beds3

bd

baths2.5

ba

stories2

stories

square feet1908

sq ft

Save Plan
Farmhouse

Plan 430-422

$1445.00

beds3

bd

baths2.5

ba

stories1

story

square feet2494

sq ft

Save Plan
Traditional

Plan 20-2346

$1305.00

beds4

bd

baths2.5

ba

stories2

stories

square feet2257

sq ft

Recently viewed plans

Exterior - Front Elevation for Farmhouse House Plan #430-281 - 3 bed, 2.5 bath
Save Plan

Plan 430-281

$1445.00

beds3

bd

baths2.5

ba

stories1

story

square feet2241

sq ft

Signature
Exterior - Front Elevation for Farmhouse House Plan #928-355 - 4 bed, 3 bath
Save Plan

Plan 928-355

$1495.00

beds4

bd

baths3

ba

stories2

stories

square feet2252

sq ft

Exterior - Front Elevation for Craftsman House Plan #430-172 - 3 bed, 2 bath
Save Plan

Plan 430-172

$1445.00

beds3

bd

baths2

ba

stories1

story

square feet2086

sq ft

Exterior - Front Elevation for Farmhouse House Plan #430-260 - 4 bed, 3.5 bath
Save Plan

Plan 430-260

$1645.00

beds4

bd

baths3.5

ba

stories2

stories

square feet3216

sq ft

Signature
Exterior - Front Elevation for Craftsman House Plan #928-282 - 2 bed, 2.5 bath
Save Plan

Plan 928-282

$1995.00

beds2

bd

baths2.5

ba

stories2

stories

square feet2851

sq ft

Exterior - Front Elevation for Modern House Plan #1096-51 - 4 bed, 3.5 bath
Save Plan

Plan 1096-51

$1900.00

beds4

bd

baths3.5

ba

stories1

story

square feet3226

sq ft

Exterior - Front Elevation for Country House Plan #1080-8 - 4 bed, 3 bath
Save Plan

Plan 1080-8

$1350.00

beds4

bd

baths3

ba

stories2

stories

square feet2937

sq ft

Exterior - Front Elevation for Farmhouse House Plan #437-92 - 4 bed, 4.5 bath
Save Plan

Plan 437-92

$1595.00

beds4

bd

baths4.5

ba

stories2

stories

square feet4020

sq ft

Exterior - Front Elevation for Traditional House Plan #1080-9 - 5 bed, 4.5 bath
Save Plan

Plan 1080-9

$1494.99

beds5

bd

baths4.5

ba

stories2

stories

square feet3251

sq ft

Exterior - Front Elevation for Country House Plan #1080-11 - 5 bed, 4.5 bath
Save Plan

Plan 1080-11

$1495.00

beds5

bd

baths4.5

ba

stories2

stories

square feet3145

sq ft

Exterior - Front Elevation for Bungalow House Plan #79-206 - 3 bed, 2 bath
Save Plan

Plan 79-206

$1075.00

beds3

bd

baths2

ba

stories2

stories

square feet1460

sq ft