Blog Home > Garage Plans with Barndominium Style

The Houseplans Blog

Garage Plans with Barndominium Style

Check out these garage plans with rustic style

Hero Image

February 11, 2022

Livabl Brand

Can't find what you're looking for?

Give us a call below or reach out and we’ll make sure to be in contact!

Send Us a Message

By Gabby Torrenti

This collection of garage plans reminds us of barndominium plans, featuring barn-style doors, gable roofs, and rustic exteriors. Inside, open layouts provide plenty of space for vehicles, landscaping equipment or just about anything else. Some plans feature living spaces, too, allowing these structures to serve as housing for guests or family members. Explore this collection of convenient barndominium-style garage plans.

Want to see all of our barndominium-inspired garage plans? Check out the full collection here.

Farmhouse-Style Garage Plan Photo for Barndominium House Plan #1070-120 - 1 bed, 1 bath Farmhouse-Style Garage Plan 1070-120 - Front Exterior Garage Plans with Barndominium Style Farmhouse-Style Garage Plan 1070-120 - Main Floor Plan

This versatile garage plan features over 1,000 square feet of open space on its left side, with plenty of room for up to two vehicles. To the right, a living room opens the habitable space of this structure, including a kitchen with a center island, a bedroom with ample closet space, and a full bathroom.

2,500-Square-Foot Garage Exterior - Front Elevation for Barndominium House Plan #1070-121 - 1 bed, 1 bath 2,500-Square-Foot Garage 1070-121 - Front Exterior Garage Plans with Barndominium Style 2,500-Square-Foot Garage 1070-121 - Main Floor Plan

Definitely on the larger side for a garage plan, this spacious structure is perfect for both storage and living, as it comes complete with a full apartment and an enormous amount of parking or work space. Across the garage, a convenient apartment features an open kitchen and living room, a primary bedroom with a walk-in closet, and a full bathroom. Guests are welcome to enjoy this apartment's outdoor patio, too.

Country-Inspired Garage Plan Exterior - Front Elevation for Country House Plan #124-1052 - 3 bed, 3.5 bath Country-Inspired Garage Plan 124-1052 - Front Exterior Garage Plans with Barndominium Style Country-Inspired Garage Plan 124-1052 - Main Floor Plan Garage Plans with Barndominium Style Country-Inspired Garage Plan 124-1052 - Upper Floor Plan

From the exterior, this garage plan resembles a classic barn with red siding, barn doors, and a cupola accented with a wind vane. Inside, generous parking space is flanked by two separate living spaces. To the right, two offices sit side-by-side with a full bathroom in the middle, creating a place for multiple people to work from home or ample space to run a small business from the comfort of your own property. Across the space, a mud hall is surrounded by two bedrooms and a full bathroom, creating a comfortable space for guests to enjoy. Upstairs, you'll find the vaulted game room and storage. Keep going up to the top level and you'll come to an apartment with vaulted living and dining space, a bedroom suite, and even a covered deck.

Versatile Country Garage Plan Exterior - Front Elevation for Country House Plan #1064-75 - 1 bed, 1 bath Versatile Country Garage Plan 1064-75 - Front Exterior Garage Plans with Barndominium Style Versatile Country Garage Plan 1064-75 - Main Floor Plan Garage Plans with Barndominium Style Versatile Country Garage Plan 1064-75 - Upper Floor Plan

On the main level of this space, room for up to four cars creates lots of space for family vehicles or storage of lawn equipment or recreational vehicles. A flight of stairs leads to the second level, which opens with a spacious living room that’s perfect for relaxing with friends or family. The bedroom is quite large and features a walk-in closet and access to a bathroom. This comfortable addition makes an ideal place for guests to stay.

Farmhouse Garage Plan Exterior - Front Elevation for Country House Plan #47-1090 - 2 bed, 2 bath Farmhouse Garage Plan 47-1090 - Front Exterior Garage Plans with Barndominium Style Farmhouse Garage Plan 47-1090 - Main Floor Plan Garage Plans with Barndominium Style Farmhouse-Inspired Garage Plan 47-1090 - Upper Floor Plan

This farmhouse-inspired garage plan opens with room for two vehicles with a workbench on each side of this space. At the rear of the structure, a combined living room and dining room are perfect for relaxing, with the washer and dryer and mudroom conveniently close. Two bedrooms and bathrooms on this level give guests plenty of privacy. Upstairs, a storage loft offers potential space for keeping your belongings organized.

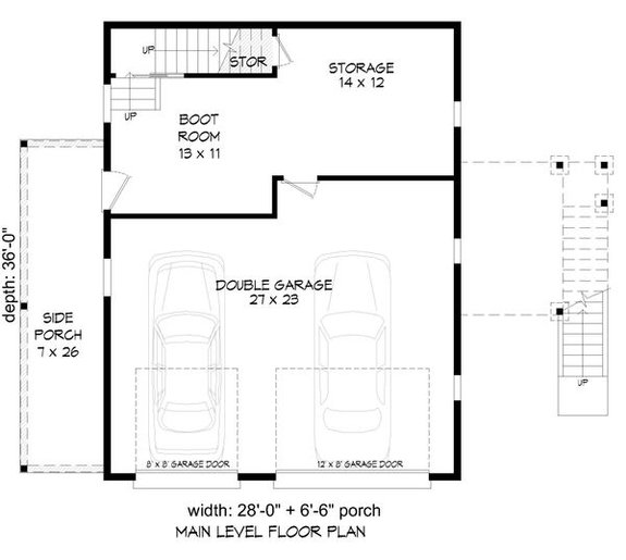
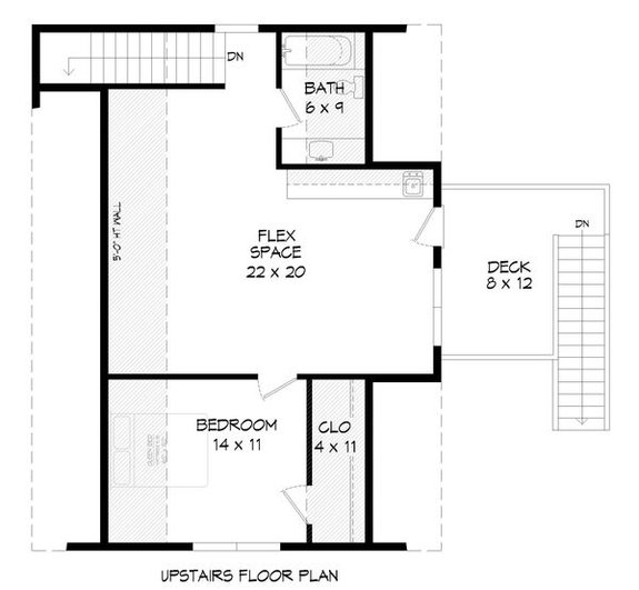
Country Garage Plan Exterior - Front Elevation for Country House Plan #932-91 - 1 bed, 1 bath Country Garage Plan 932-91 - Front Exterior Garage Plans with Barndominium Style Country Garage Plan 932-91 - Main Floor Plan Garage Plans with Barndominium Style Country Garage Plan 932-91 - Upper Floor Plan

This barndominium plan is the perfect pick for those looking to maximize both storage and living space. On the lower level, a two-car garage sits at the front of the space, with a separate boot room and storage space toward the rear to keep this space tidy. Upstairs, a wide-open flex space leads onto the second-floor deck. A bedroom borders this space, with a sizable closet. This level is made complete with a full bathroom, allowing the second level of this barndominium-inspired garage plan to make the perfect guest apartment.

Rustic Garage Plan Exterior - Front Elevation for Country House Plan #117-483, 0 bath Rustic Garage Plan 117-483 - Front Exterior Garage Plans with Barndominium Style Rustic Garage Plan 117-483 - Main Floor Plan Garage Plans with Barndominium Style Rustic Garage Plan 117-483 - Upper Floor Plan

Need a very large amount of parking space? This unique plan features a gambrel roof, evoking classic barn style. Inside, a heated shop area can fit a vehicle, while additional shop space/parking surrounds it on three sides. This main level is ideal for any passionate craftsperson, giving them lots of space to create. Upstairs, a large loft space provides a simple storage solution that helps to maximize every square foot of this rustic, barndominium-style garage plan.

Classic Barn-Style Garage Exterior - Front Elevation for Country House Plan #124-1098, 1 bath Classic Barn-Style Garage 124-1098 - Front Exterior Garage Plans with Barndominium Style Classic Barn-Style Garage 124-1098 - Main Floor Plan Garage Plans with Barndominium Style Classic Barn-Style Garage 124-1098 - Upper Floor Plan

With over 600 square feet of space on the upper level, this structure is ready to become your home office, studio, or whatever you need. You'll find a full bathroom up here, making it convenient to take a break from meetings.

Want to see more of our barndominium-inspired garage plans? Check out the full collection here.

Get Our Newsletter

Be the first to see new plans, special offers, and more.

By signing up for our newsletter, you agree to our Terms & Conditions and Privacy Policy, for an account

Blog Subscribe Icon