By Ian Hart
Since 2013, Ian Hart has worked in the metal building industry helping customers build over 3,000 residential projects. Prior to that, his family ran a metal scrap yard for over 50 years in Kentucky. His experience within the metal industry helped him create Barndominium.org in 2020 to help connect residential customers with licensed builders.
[Editor's note: Barndominium.org is an affiliate partner of Houseplans. The opinions stated here are the author's own. Barndominium costs may vary greatly, depending on whether you're building from a kit or not, the type of steel used, and much more.]
If you are trying to decide between building a traditional house in 2025 and building a barndominium, price is one of the key factors you should consider. So, which is cheaper?
Here is the quick answer to this question: it is cheaper on average to build a metal barndominium than it is to build a traditional wood-framed house in 2025.
Below, we provide a more detailed answer to this question, giving you the typical cost ranges for both, as well as an overview of factors that can impact the cost to build either type of home.
Modest Barndominium Plan
 Modest Barndominium Plan - Front Exterior
Modest Barndominium Plan - Front Exterior
 Modest Barndominium Plan - Main Level
Modest Barndominium Plan - Main Level
Building on a small lot? We’ve got you covered with this modest barndominium plan. Just under 1,000 square feet, this simple design features a four-corner footprint. The efficient layout offers an effortless flow between the main living areas.
Traditional House Construction Pricing
The cost to build a traditional stick-built house in 2025 ranges between $150 to $400 per square foot.
This form of construction takes place mostly or entirely on-site.
Cost To Build a Barndominium Home
The cost to build a barndominium in 2025 ranges anywhere from $60 to $160 per square foot.
While we sometimes see higher prices for luxury barndominiums, most prices fall within the stated range. As you can see, the top of this range is just above the bottom of the range for traditional homes.
The cost to build the basic structure using metal barndominium kits specifically is around $20 to $35 per square foot.
That does not include customization or finishes. Once those are incorporated, the cost rises to the previously mentioned $60 to $160 per square foot.
Key Factors That Affect Cost
What accounts for why some homes may fall at the top of their price range, while others may fall at the bottom? Why does one barndominium cost $60 per square feet, while another runs $160 per square feet? Let’s go over some of the factors that can push costs up or down for barndos as well as traditional homes.
Size of home
The larger a house is, the higher its overall costs will be. It costs more to build a house measuring 60x100 feet than one measuring 40x60 feet.
That being said, the larger the house, the lower the cost per square foot will generally be.
So, even though the overall cost is higher to build a larger home, it is more cost-effective per square foot.
Floor plan
Your home’s floor plan will impact how much it costs. Simple floor plans with basic shapes are less expensive than elaborate ones.
Two-Bedroom Barndo Plan
 Two-Bedroom Barndo Plan - Front Exterior
Two-Bedroom Barndo Plan - Front Exterior
 Two-Bedroom Barndo Plan - Main Level
Two-Bedroom Barndo Plan - Main Level
Looking for a budget-friendly barndo plan? Take a look at this petite plan! The open floor plan shows off modern living with an effortless flow between the kitchen and the living room. When it’s time to relax, unwind on the covered wraparound porch.
Build process
Much of what accounts for the difference in cost between traditional stick-built homes and prefabricated barndominiums that are constructed using metal building kits comes down to build process.
The traditional method of building a home involves transporting all of the materials to the building site, and then doing all stages of construction there on the site.
During the process, the materials and the workers are exposed to the elements from start to finish. This can sometimes lead to delays or lost materials.
By contrast, building a barndominium with a metal building kit entails a prefabricated construction process. That means:
• More precision: As most prefabricated construction work takes place indoors in a factory, there is greater control over both the environment and the manufacturing techniques. The result is greater precision and quality.
• Less exposure: During the factory construction process, components are safe from harsh weather.
• Less material waste: It is less likely that materials or components will be destroyed by the elements. Also, construction teams only need to order as many materials as are actually needed (typically, during traditional on-site construction, excess materials are ordered just in case—which you pay for).
• Quicker build time: The prefabricated construction process is streamlined, and can be completed rapidly. A barndominium can often be constructed in a matter of months.
• Smaller construction crew: Fewer construction personnel are needed for the on-site assembly of prefab components for a barndominium than would be needed to construct a traditional house on-site. Less specialized skills and equipment are required on-site as well.
• Less expensive: Because of all of the benefits above, the process to build a barndominium using a prefabricated building kit is cheaper than the traditional on-site construction process to build a stick-built home.
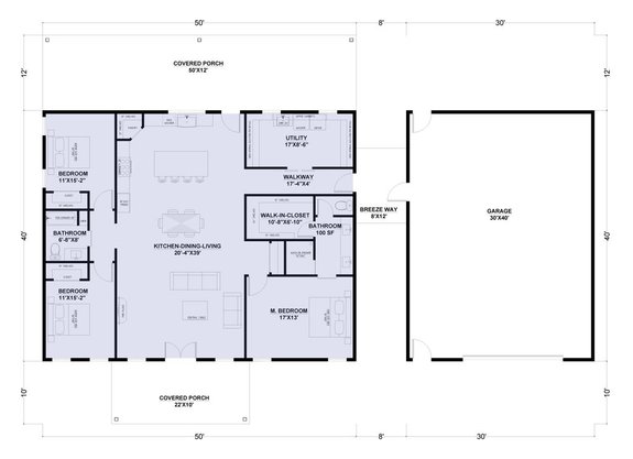
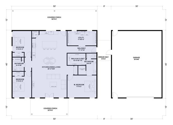
Hardworking Utility Room
 Hardworking Utility Room - Front Exterior
Hardworking Utility Room - Front Exterior
 Hardworking Utility Room - Main Level
Hardworking Utility Room - Main Level
A welcoming front porch delivers a timeless vibe to the exterior of this 2,000-square-foot barndominium plan. Inside, the super-open floor plan shows off the kitchen's big island. On the right side of the plan, the primary suite stands out with a sizable closet and a walk-in shower.
Shop metal building kits at Barndominium.org
Materials
Buying metal to build a barndo does cost more than buying wood to build a traditional stick-built house. So, that is one area where costs are higher.
If you can time the purchase of the metal to when steel prices are lower, that can help you save money.
Despite the higher cost of materials versus what you would need for a wood home, keep in mind that the overall costs of building a metal barndo are still lower.
Location
The location where you want to build your home can impact its price, be it a barndo or a traditional home.
• Building site: A complicated building site that requires a lot of work before the structure can be placed will add to your costs. So will one that requires you to have an unusual floor plan (i.e. in order to build on a site that cannot be fully level).
• Shipping: This is another factor involving location that can cause a home to cost more or less to construct. Shipping materials or prefab components a shorter distance costs less than a longer one. It also will be less expensive if the terrain is easy to cross. It may cost more if there are mountains in the way, water to cross, etc.
Customization and Finishes
Finally, the options you select for customizing and finishing a house can have a significant effect on the pricing.
This includes doors and windows, flooring, interior and exterior finishes, insulation options, etc.
Do Not Forget About Long Term Costs
One more thing that is very useful to keep in mind when you are comparing the pricing of a barndominium to that of a traditional home is your long term costs.
We have been focusing on upfront costs, but consider that over the long haul, you will need to maintain and repair your home to keep it in prime condition. You also will have electric bills to pay.
When it comes to long term costs, a metal barndominium is more affordable than a traditional wood house.
Here is why:
• Metal is resistant to weather, fire and pests. That means that over time, it may be subject to less wear and tear, and is less likely to be damaged by extreme conditions. So, repairs and maintenance needs are minimal compared to a traditional wood house, saving time and money.
• The long-term durability of metal is outstanding compared to wood. It simply does not break down as quickly. So, a metal building lasts longer than a wood one, and remains in better condition.
• High-precision prefab manufacturing can help to eliminate gaps in construction, which in turn can make a home more energy-efficient. This may help you to minimize your heating and cooling costs.
All of these long-term cost savings from a metal barndominium home outpace the higher costs of the building materials.
We recommend steel as the main material for your barndo.
It is lightweight, yet strong, and can withstand the elements admirably. You can discuss all of your options with your metal building company when you are designing your home.
Building a Barndominium is Cheaper Than Building a Traditional House in 2025
Now you understand some of the factors that impact the cost to build a home in 2025, and you have had a chance to compare the cost range for building a barndominium to the cost range for building a traditional house.
You can see that in most situations, building a barndominium is in fact cheaper than building a traditional house. This is largely thanks to the cost-effective construction process and materials that are used in metal barndominium kits.
Inspiration time! Explore these sweet barndominium plans.
Tiny Barndominium Plan
 Tiny Barndominium Plan - Front Exterior
Tiny Barndominium Plan - Front Exterior
 Tiny Barndominium Plan - Main Level
Tiny Barndominium Plan - Main Level
Designed with comfort in mind, this tiny barndominium plan lives large with a clever layout. For example, the kitchen, the dining area, and the living room share one open space. Need room for storage? You’re in luck. The two-car garage comes equipped with a shop.
Versatile Barndo Plan
 Versatile Barndo Plan - Front Exterior
Versatile Barndo Plan - Front Exterior
 Versatile Barndo Plan - Main Level
Versatile Barndo Plan - Main Level
Here’s an eye-catching barndo plan. The layout inside promotes modern living with a super-open floor plan between the main gathering areas. The lavish primary suite impresses with two walk-in closets, a safe room, and private access to the rear covered porch. An office/retreat area could also become an extra bedroom.
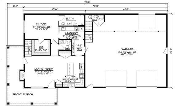
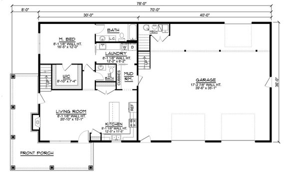
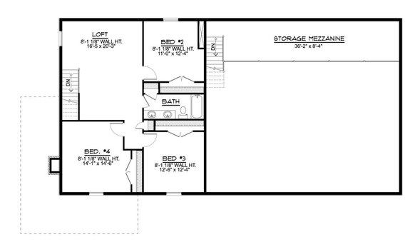
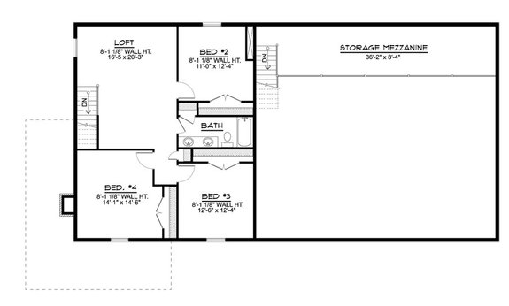
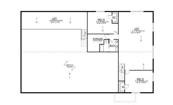
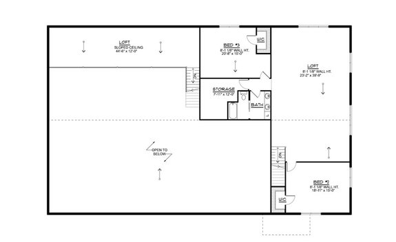
Garagedominium Plan with Loft
 Garagedominium Plan with Loft - Front Exterior
Garagedominium Plan with Loft - Front Exterior
 Garagedominium Plan with Loft - Main Level
Garagedominium Plan with Loft - Main Level
 Garagedominium Plan with Loft - Upper Level
Garagedominium Plan with Loft - Upper Level
Looking for a plan with extra room for storage? Check out this cool garagedominium plan. The spacious garage gives you room to store up to three vehicles. Imagine relaxing on the wraparound porch.
Charming and Simple
 Charming and Simple - Front Exterior
Charming and Simple - Front Exterior
 Charming and Simple - Main Level
Charming and Simple - Main Level
Under 2,000 square feet, this barndominium plan is budget-friendly with a four-corner footprint. A covered front porch adds country curb appeal. Inside, a long kitchen island takes center stage and serves the dining area and the vaulted great room.
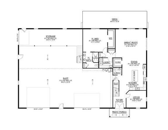
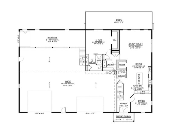
Garagedominium Plan with Storage
 Garagedominium Plan with Storage - Front Exterior
Garagedominium Plan with Storage - Front Exterior
 Garagedominium Plan with Storage - Main Level
Garagedominium Plan with Storage - Main Level
 Garagedominium Plan with Storage - Upper Level
Garagedominium Plan with Storage - Upper Level
Check out this must-see garagedominium plan. Inside, the two-story great room flows seamlessly into the dining area and the island kitchen. Work from home? An office sits next to the foyer at the front of the home. The sizable three-car garage gives you a storage bay and a shop area.
Next steps:
 
         
                   
                   
                   
                   
                  