Hidden pantries are transforming the way these kitchens function and feel. Each plan tucks generous storage behind a seamless door, keeping counters clear and sightlines open so the space reads more like a living area than a utility zone.
These discreet spaces handle everything from bulk groceries to small appliances. For anyone who craves order without visual clutter, these hidden pantry floor plans offer a refined, everyday kind of ease.
Ready for more? Explore these house plans featuring functional kitchens.
Hidden Pantry within Pantry
Hidden Pantry within Pantry - Front Exterior
Hidden Pantry within Pantry - Main Level
This ranch house plan combines rustic details with thoughtful functionality. At its center, the open-concept layout revolves around a sleek kitchen anchored by a generous island with seating for five. Tucked discreetly behind it, a walk-in pantry adds clever storage with a hidden pantry inside.
Next to the three-car garage, a well-equipped mudroom keeps items tidy with built-in lockers. Other highlights include a spa-like primary suite, two additional bedrooms, covered front and rear porches, and a courtyard.
Wraparound Deck
Wraparound Deck - Front Exterior
Here’s a contemporary design with all the right details. Ready to take in the view? Check out the wraparound deck. Inside, the great room flows effortlessly into the kitchen, where an island encourages casual dining and conversation. Cathedral ceilings draw the eye up.
Thoughtful storage, including a walk-in pantry tucked behind cabinet doors, keeps everything streamlined. Two bedroom suites rest on the right side of this plan, including the impressive primary suite.
One-Story Design with Flex Space
One-Story Design with Flex Space - Front Exterior
One-Story Design with Flex Space - Main Level
Make a statement with this striking modern design. Inside, an open floor plan connects the kitchen, the dining nook, and the great room, with a central island and a hidden pantry (complete with shelving and a fridge).
A cathedral ceiling elevates the great room, where sliding glass doors extend the living space to a covered back porch. Thoughtful touches like a mudroom with lockers, a well-appointed primary suite, and a three-car garage offer extra convenience.
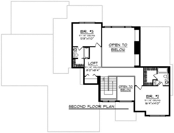
Two Bedroom Suites
Two Bedroom Suites - Front Exterior
Two Bedroom Suites - Main Level
This four-bedroom farmhouse plan delivers timeless style with crisp board-and-batten siding, a gable roof, and a covered front porch. Inside, a fireplace warms the great room, while tall ceilings and open sightlines create an airy vibe. The large kitchen island invites casual gatherings, while a hidden pantry (complete with a sink, shelving, and cabinetry) keeps the workspace organized.
The split-bedroom design places the primary suite on the right wing of the plan. A secondary bedroom suite and two additional bedrooms offer flexibility on the left. Out back, a generous porch extends the living space.
Modern Cottage Design
Modern Cottage Design - Front Exterior
Modern Cottage Design - Main Level
Here’s a modern cottage design that keeps things relaxed with a breezy one-story layout. The open kitchen features a large island that overlooks the great room. Don’t miss the hidden pantry.
Sliding glass doors open to the covered back porch. The garage gives you room to store up to two vehicles. A handy mudroom (with a bench and hooks) keeps the clutter at bay. We love the wet room in the primary suite.
Two-Story Farmhouse Plan
Two-Story Farmhouse Plan - Front Exterior
Two-Story Farmhouse Plan - Main Level
Two-Story Farmhouse Plan - Upper Level
Love the popular farmhouse look? Check out this stylish two-story design. Kick back and relax on the covered front porch or the rear patio. Inside, the super-open layout shows off an effortless flow between the island kitchen, the dining area, and the great room.
Near the entry, a living room could become a home office or a guest room. The primary suite, three secondary bedrooms, and the laundry room reside on the second level. Don’t miss the two-car garage, the hidden pantry, and the organized mudroom.
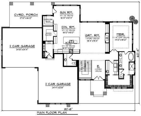
European Elegance
European Elegance - Front Exterior
European Elegance - Main Level
This European design captures your attention with mixed siding and three dormer windows. Inside, you’ll find an up-to-date layout that is full of function and ease. On the way in from the two-car garage (which features a spacious storage room), a mudroom is ready to keep items tidy.
A hidden pantry and a large island highlight the kitchen. Note the versatile office near the foyer. The primary suite features a spa-inspired bathroom and convenient access to the laundry room. Our favorite part? The rear porch, which gives you an outdoor kitchen and a fireplace.
Generous Kitchen Island
Generous Kitchen Island - Front Exterior
Generous Kitchen Island - Main Level
This contemporary European-inspired design shows off plenty of curb appeal. The modern kitchen conceals clutter behind cabinetry with a hidden pantry. The two-car garage gives you ample storage.
On the left side of the plan, the primary suite feels like a private retreat with a spacious walk-in closet, a sizable shower, and a separate bath. Sliding glass doors connect the great room to the vaulted covered porch. A flexible office/craft room adds even more possibilities.
