Blog Home > House Plans with Flex Rooms from Visbeen Architects

The Houseplans Blog

House Plans with Flex Rooms from Visbeen Architects

See these standout designs from Visbeen Architects.

Hero Image

March 3, 2025

Livabl Brand

Can't find what you're looking for?

Give us a call below or reach out and we’ll make sure to be in contact!

Send Us a Message

By Courtney Pittman

It’s all in the details! House plans from Visbeen Architects (whose designs have won many national awards) effortlessly combine refined exteriors with clean, contemporary layouts. Designed with functionality in mind, their plans maximize versatility through flexible rooms. Expect to find creative multi-use spaces such as home offices, dens, lofts, bonus rooms, and more. Here are eight of our top picks.

Explore our exclusive house plans from Visbeen Architects.

Want something totally custom? Contact Visbeen here.

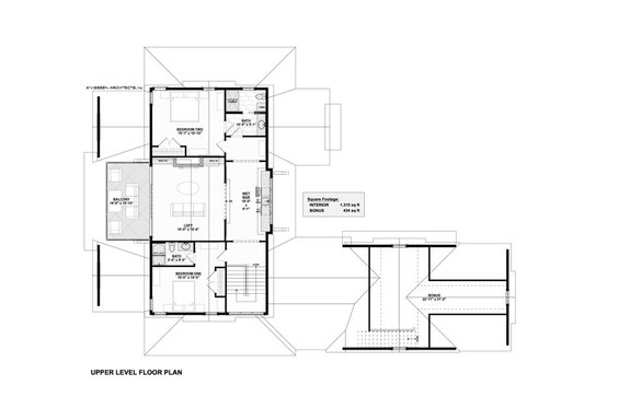
Modern Farmhouse Plan with Wet Bar Modern Farmhouse Plan with Wet Bar Modern Farmhouse Plan with Wet Bar - Front Exterior

Modern Farmhouse Plan with Wet Bar Modern Farmhouse Plan with Wet Bar - Main Level

Modern Farmhouse Plan with Wet Bar Modern Farmhouse Plan with Wet Bar - Upper Level

If you’re looking for a farm-inspired plan with thoughtful amenities, look no further than this classic farmhouse design! A wide covered porch frames the entry. Inside, the living room connects to the rear porch via sliding glass doors. Highlights of the main-level primary suite include a sitting room and a large shower. Next to the foyer, the study features a safe room.

On the second floor, the loft is ready to entertain with a wet bar and access to the balcony. Two bedroom suites complete this level. Check out the bonus room above the spacious garage.

See a video of a similar house plan with the architect narrating!

Cottage Plan with Bunk Room Cottage Plan with Bunk Room Cottage Plan with Bunk Room - Front Exterior

Cottage Plan with Bunk Room Cottage Plan with Bunk Room - Main Level

Cottage Plan with Bunk Room Cottage Plan with Bunk Room - Upper Level

Here’s a cottage house plan with lots of room for relaxing. Up-to-date details include a main-level primary suite, a home office, and a cool bunk room. Anchored by an island, the kitchen overlooks the fireplace-warmed living room and the dining area.

Unwind on the spacious covered porch just off the main living areas. Need room for storage? Check out the two-car garage. Two more bedroom suites and a bonus room reside on the second level.

Love cottage plans? See more here.

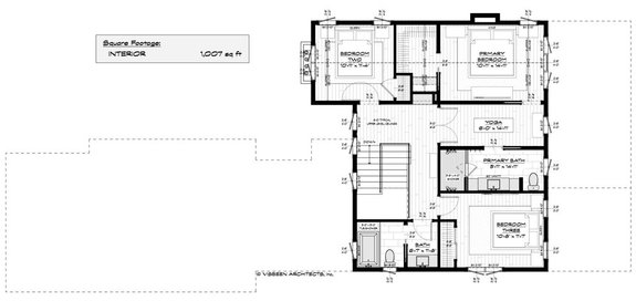
Rustic House Design with a Yoga Room Rustic House Design with a Yoga Room Rustic House Design with a Yoga Room - Front Exterior

Rustic House Design with a Yoga Room Rustic House Design with a Yoga Room - Main Level

Rustic House Design with a Yoga Room Rustic House Design with a Yoga Room - Upper Level

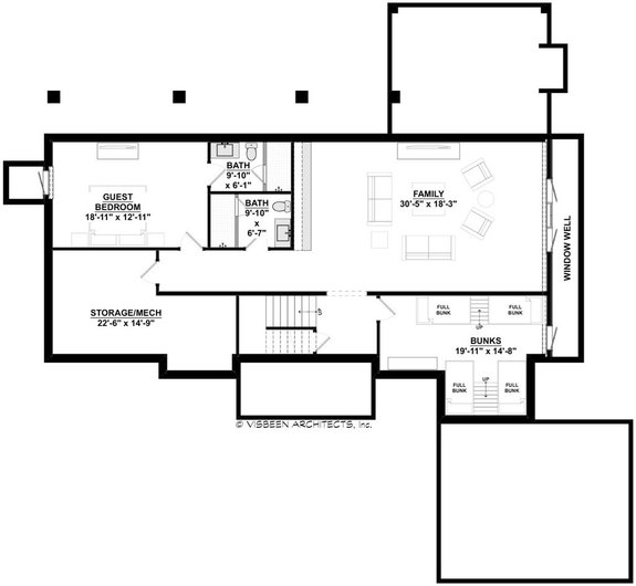
Rustic House Design with a Yoga Room Rustic House Design with a Yoga Room - Lower Level

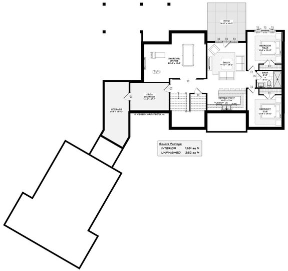
This rustic retreat feels cheerful and bright with a screened deck and a sunroom. Other thoughtful details include a three-car garage, a den/office, and plenty of seating at the kitchen island. Located upstairs, the primary suite gives you a large walk-in closet, a yoga room, and a luxe bath.

Two secondary bedrooms share a full hall bath. Need room to grow? The lower level features a big family room, an office, a bedroom, a full bath, and a refreshment area.

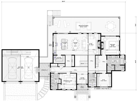
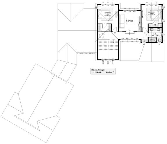
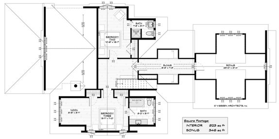
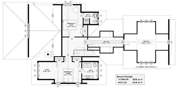
Multifunctional and Modern Multifunctional and Modern Multifunctional and Modern - Front Exterior

Multifunctional and Modern Multifunctional and Modern - Main Level

Multifunctional and Modern Multifunctional and Modern - Lower Level

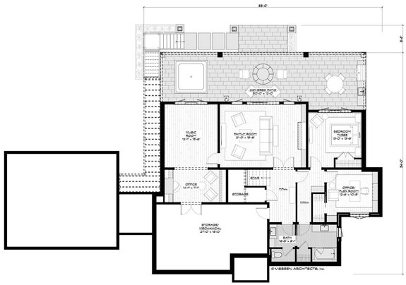
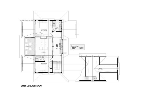
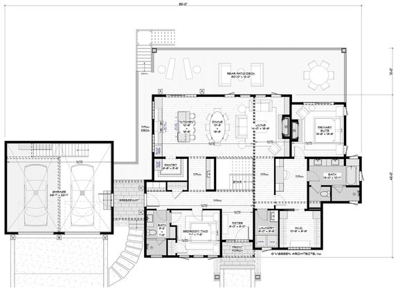
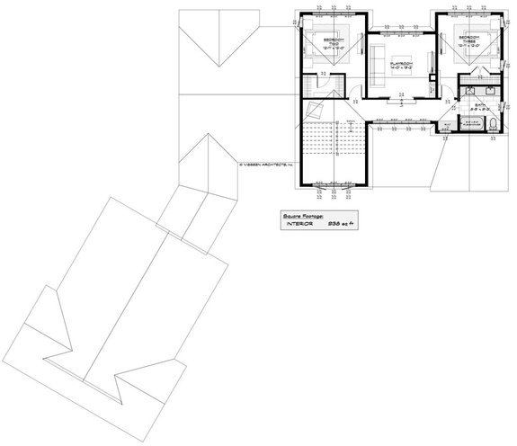
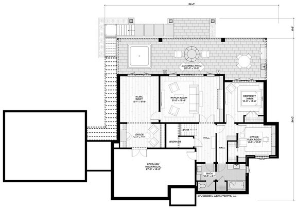
It’s all about outdoor living with this modern house plan. Entertain friends and family on the rear patio/deck or the covered patio on the lower level. Check out the generous laundry room at the front of the plan. Seating at the island in the kitchen adds extra counter space and serves the dining area and the living room.

The first-floor primary suite impresses with a built-in desk, an extra-big closet, and a fireplace. A breezeway connects the interior to the two-car garage. Versatile spaces on the lower level include a family room, a music room, an office, and a flex room.

Explore modern house plans here.

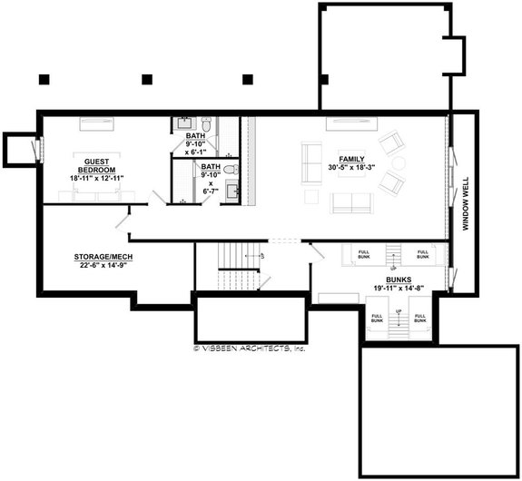
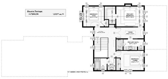
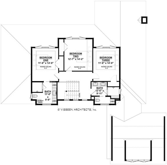
Modern Plan with Bunks Modern Plan with Bunks Modern Plan with Bunks - Front Exterior

Modern Plan with Bunks Modern Plan with Bunks - Main Level

Modern Plan with Bunks Modern Plan with Bunks - Lower Level

Here’s a modern design that turns heads with clean lines and many windows, flooding the interior with natural light. The convenient kitchen boasts a seated island and a super-spacious walk-in pantry (with a sink, extra counter space, and built-in shelves). In the primary suite, you’ll find a large walk-in closet, a shower with a seat, and two sinks.

On the lower level, two more bedrooms share a full bath. Three bunks open to a game area and a family room. A flex room waits close by.

Farmhouse Design with Screened Porch Farmhouse Design with Screened Porch Farmhouse Design with Screened Porch - Front Exterior

Farmhouse Design with Screened Porch Farmhouse Design with Screened Porch - Main Level

Farmhouse Design with Screened Porch Farmhouse Design with Screened Porch - Upper Level

Farmhouse Design with Screened Porch Farmhouse Design with Screened Porch - Lower Level

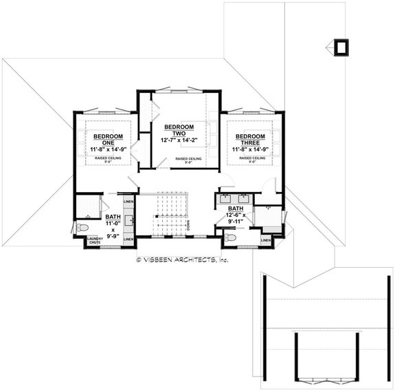
Now here’s a farmhouse design with major curb appeal. Quietly tucked away on the first level, the primary suite shines with two closets, lots of windows, and a luxe bath. Don’t miss the convenient laundry room nearby.

We love the built-in booth in the island kitchen. Enjoy fresh air and outdoor living (while being protected from insects) on the screened porch. The second floor hosts three bedrooms (one of them a suite), while the lower level features a family room, a guest suite, and a bunk room.

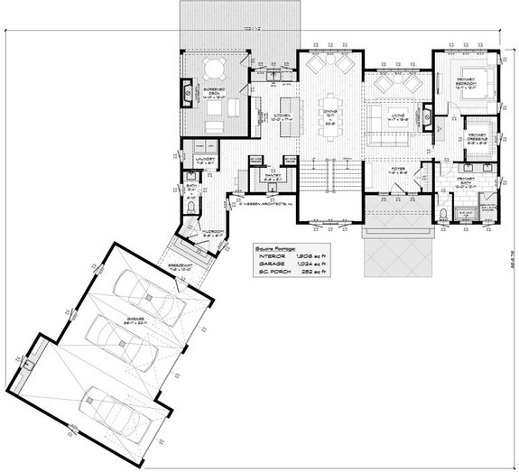
Modern Farmhouse Plan with Playroom Modern Farmhouse Plan with Playroom Modern Farmhouse Plan with Playroom - Front Exterior

Modern Farmhouse Plan with Playroom Modern Farmhouse Plan with Playroom - Main Level

Modern Farmhouse Plan with Playroom Modern Farmhouse Plan with Playroom - Upper Level

Modern Farmhouse Plan with Playroom Modern Farmhouse Plan with Playroom - Lower Level

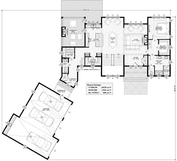
Talk about a dreamy farmhouse plan. At the heart of the home, the open kitchen grabs your attention with a generous island and a walk-in pantry with a sink. Nearby, the fireplace-warmed screened deck offers plenty of room for outdoor living.

The primary suite (located on the main level) shows off ample closet space, two sinks, a spacious shower, and a separate tub. Upstairs, a playroom sits between two additional bedrooms. Don’t miss the versatile lower level, which features a game room, a family room, a refreshment area, two bedrooms, and a hall bath.

Can't get enough plans with photos? See more here.

Luxurious Primary Suite Luxury Primary Suite Luxurious Primary Suite - Front Exterior

Luxury Primary Suite Luxury Primary Suite - Main and Upper Levels

Here’s a one-story farmhouse plan that promotes modern living with an open floor plan. Overlooking the dining area and the great room, the kitchen island is a welcome detail. The primary suite features dual sinks, a relaxing tub, a walk-in shower, and direct access to the laundry room.

Two additional bedrooms share a full bath on the left side of the plan. Front and rear porches offer outdoor enjoyment, while a two-car garage delivers lots of storage space.

Discover more house plans from Visbeen Architects.

Get Our Newsletter

Be the first to see new plans, special offers, and more.

By signing up for our newsletter, you agree to our Terms & Conditions and Privacy Policy, for an account

Blog Subscribe Icon