By Aurora Zeledon
Building somewhere like Florida where disaster readiness is important? Or anywhere with extreme weather? Perhaps you've heard of insulated concrete forms, or ICFs. Allow our sponsor to explain more:
Create a home with great curb appeal that is also comfortable, strong and safe year-round. Foundations and exterior walls built with Nudura Insulated Concrete Forms (ICFs) offer superior energy efficiency, occupant comfort, sound dampening, fire resistance and disaster resilience for the life of your home.
Learn more about the benefits of ICFs at Nudura
We've pulled together a collection of farmhouse and ranch plans with stellar style and versatile, budget-friendly layouts. Here are our favorites!
See our collection of ICF House Plans
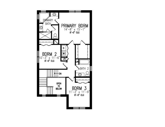
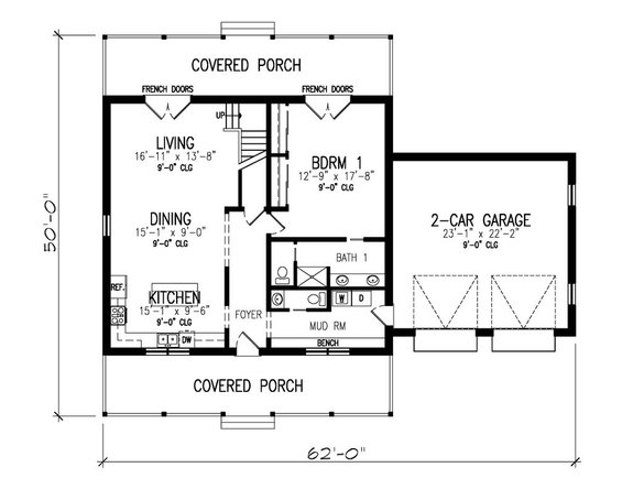
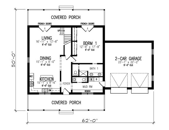
Simple Farmhouse Plan with Big Front Porch
Simple Farmhouse Plan - Front Exterior
 
Simple Farmhouse Plan - Main Floor
 
Simple Farmhouse Plan - Upper Floor
Can't you almost feel the soft summer breeze when you look at this porch? We can. If you're looking for classic country vibes and a budget-friendly design, here you go.
That wide front porch stretches across the front of the home and invites you to relax outside. Another porch sits out back, and is accessed via two sets of French doors (one of them from your private suite!).
Other highlights include the spacious mudroom with a big bench on the way in from the two-car garage, the kitchen's island, and private bedroom suites upstairs for family or guests.
4 Beds, 1 Story, Tons of Storage
1 Story Ranch Farmhouse Plan - Front Exterior
 
1 Story Ranch Farmhouse Plan - Main Floor
Want four bedrooms all on one floor? This ranch house plan makes it easier to age in place without a lot of stairs to navigate. But you still get a variety of spaces, from the formal dining room near the front to the versatile study.
And with lots of storage, staying organized is a breeze. For example, the main suite showcases a large walk-in closet that even boasts a window, so you can check out your outfit in natural light before heading out. The kitchen gives you a spacious pantry.
Semi-Open Layout with Big Kitchen
Family-Friendly Farmhouse Plan - Front Exterior
 
Family-Friendly Farmhouse Plan - Main Floor
 
Family-Friendly Farmhouse Plan - Upper Floor
Not everyone wants a super-open layout. This elegant, 3,371-square-foot design presents a traditional layout with flow between the family room and the dining area. Everyone always ends up in the kitchen anyway, and this one has room for them all at the really big island. And a wet bar is ready to serve the dining room for more elevated occasions.
Of course, everyday practicalities matter a lot too. This plan is ready with lockers in the mudroom, the laundry room conveniently located upstairs, and two large closets for the primary suite.
Ranch Home Design Under 1,500 Sq. Ft.
Small Ranch House Plan with Open Layout - Front Exterior
 
Small Ranch House Plan with Open Layout - Main Floor
Just 1,404 square feet, this one-story home design features a contemporary layout inside. The gathering spaces open completely to one another, with the living room showcasing a fireplace for cozy ambiance and the kitchen inviting you to relax at the island.
2,527 Sq. Ft. with a Home Office
4 Bedroom Farmhouse Plan with an Office - Front Exterior
 
4 Bedroom Farmhouse Plan with an Office - Main Floor
 
4 Bedroom Farmhouse Plan with an Office - Upper Floor
Want the option to work from home (or even just have somewhere to quietly read a book)? The study in this farmhouse plan provides space for that, and a clever layout that opens to both the foyer and the living room. That means you could also use this space for a playroom or otherwise stay connected with people in the casual zones of the house.
On the upper level, you'll find four bedrooms. The primary suite gives you a huge walk-in closet (seriously, it's enormous) and a private roof deck! One of the other bedrooms is quite large, making it the comfortable choice for an older child, live-in relative, or special guest.
Every Bedroom is a Suite
Farmhouse Plan with 3 Bedrooms - Front Exterior
 
Farmhouse Plan with 3 Bedrooms - Main Floor
 
Farmhouse Plan with 3 Bedrooms - Upper Floor
With a welcoming front porch and a versatile layout, this 2,203-square-foot plan presents a great choice. Covered decks in front and back encourage outdoor living, especially with two sets of French doors opening to the back space.
Because each bedroom includes a private bathroom, older children or guests get to enjoy privacy and comfort. Meanwhile, you get the easy-to-reach primary suite that's located on the main floor (good for aging in place) and that boasts one of those sets of French doors to the outside.
Don't miss the handy mudroom connecting the two-car garage to the house.
Home Office, Mudroom, and More
3 Bedroom Farmhouse with Office - Front Exterior
 
3 Bedroom Farmhouse with Office - Main Floor
 
3 Bedroom Farmhouse with Office - Upper Floor
It's the little things that make everyday experiences special, and this plan is full of them. For example, the home office features windows on two sides, so you can gaze out the window while you're stuck in a meeting.
Another great detail: the mudroom sits off the garage and opens out back, so you can stash things that you'll need for the backyard and access them without having to track dirt through the living spaces.
The laundry room sits near the bedrooms upstairs, so it's easy to throw in a load. And the main suite (that's yours) gives you plenty of room for your wardrobe in its ultra-spacious closet. Linen storage in the hall bathroom and also in the hall itself keeps things organized.
Relax on the Screened Porch
2 Story Farmhouse Design Under 2,100 Sq. Ft. - Front Exterior
 
2 Story Farmhouse Design Under 2,100 Sq. Ft. - Main Floor
 
2 Story Farmhouse Design Under 2,100 Sq. Ft. - Upper Floor
Get a bit of nature without the insects and hot sun when you hang out on the screened porch of this two-story farmhouse plan. Step out here from the dining room, which flows into the island kitchen. A mudroom with a bench and lockers gives you somewhere to sit and take off your shoes when you're heading in from the garage (where you'll find extra storage).
Families with young children will appreciate the bedrooms sitting near each other upstairs. But you still get privacy in the primary suite, where the bathroom displays two separate vanities, a large tub, and a separate shower. Oh, and a walk-in closet.
Private Outdoor Living on a Small Lot
Simple 4 Bedroom House Plan with a Roof Deck - Front Exterior
 
Simple 4 Bedroom House Plan with a Roof Deck - Main Floor
 
Simple 4 Bedroom House Plan with a Roof Deck - Upper Floor
No need for a big piece of land with this design. Measuring just 38 feet wide by 45 feet deep (for this ICF version), it nevertheless gives you space for outdoor living on the private roof deck upstairs, just off the main suite. Imagine stepping out here with your coffee in the morning and greeting the day!
Three additional bedrooms create space for kids, guests, working from home, or a combination. We love the convenient location of the laundry room up here too, just next to the linen closet so it's easy to put away sheets and towels.
        