By Courtney Pittman
Is 1,500 square feet a big house? That depends on your perspective and needs. If you have a large family, it may feel tight. If it's just two or three of you, 1,500 square feet may be just right. And if you are moving from an apartment or tiny home, it'll feel quite spacious.
In any case, you can get a sense of what 1,500 square feet looks like here.
These 1,500-square-foot designs showcase easygoing floor plans and attractive exteriors. Inside, the layouts waste no space with comfortable living areas and well-thought-out amenities (like island kitchens).
Like what you see? Explore our collection of 1,500 square foot house plans here.
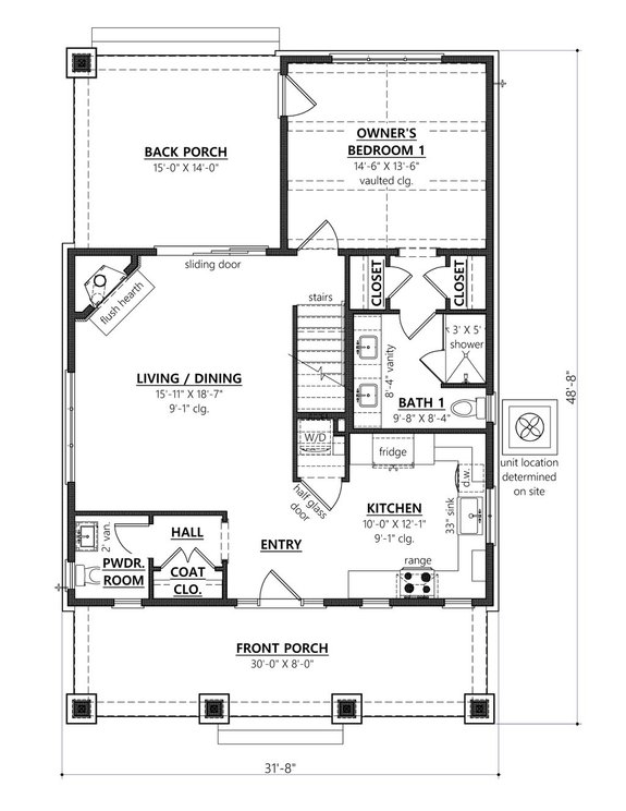
Two-Bedroom Craftsman Plan
Two-Bedroom Craftsman Plans - Front Exterior
Two-Bedroom Craftsman Plan - Main Level
Two-Bedroom Craftsman Plan - Upper Level
Delivering comfort in just 1,537 square feet, this two-bedroom Craftsman plan boasts modern details. A front porch, a rear porch, and a terrace deliver outdoor living. Inside, a fireplace in the open great room creates a cozy vibe. Nearby, an island in the kitchen offers relaxed seating.
The primary suite's location on the main level makes it easier to age in place. The second level hosts an additional bedroom suite and a loft. Don’t miss the mudroom on the way in from the two-car garage.
Modern Bungalow Plan
Modern Bungalow Plan - Front Exterior
Modern Bungalow Plan - Main Level
Modern Bungalow Plan - Lower Level
Here’s a bungalow plan that encourages modern living with a super-open layout. Check out the fireplace in the family room. Covered porches give you room for outdoor enjoyment, while large windows draw in lots of natural light. The wine cellar is a nice feature.
Two secondary bedrooms share a full bath at the back of the main level (one with a walk-in closet). Upstairs, another family room (with a wood stove!) opens up all kinds of possibilities. A third bedroom, a full hall bath, and a laundry room complete this level.
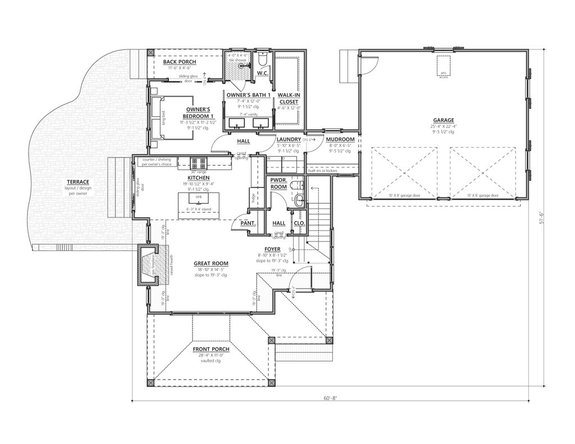
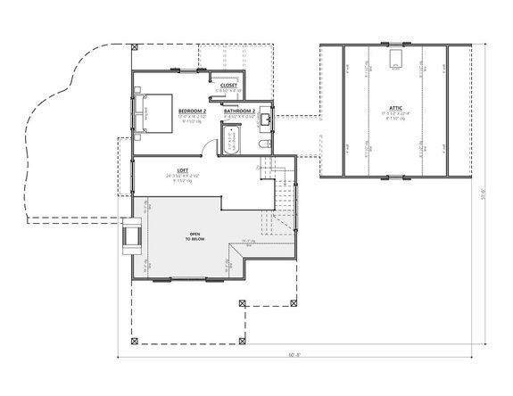
Two-Story Craftsman Plan
Two-Story Craftsman Plan - Front Exterior
Two-Story Craftsman Plan - Main Level
Two-Story Craftsman Plan - Upper Level
Hello curb appeal! This two-story Craftsman plan impresses with an appealing front porch, a gable roof, and two dormer windows. The U-shaped kitchen flows nicely into the living room and the dining area. Opening to the back porch, a wall of sliding glass doors extends the space and creates effortless indoor/outdoor living.
The main-level primary suite gives you two closets, a big shower, and access to the back porch. Upstairs, two bedrooms share a hall bath. Note the built-in storage cabinets.
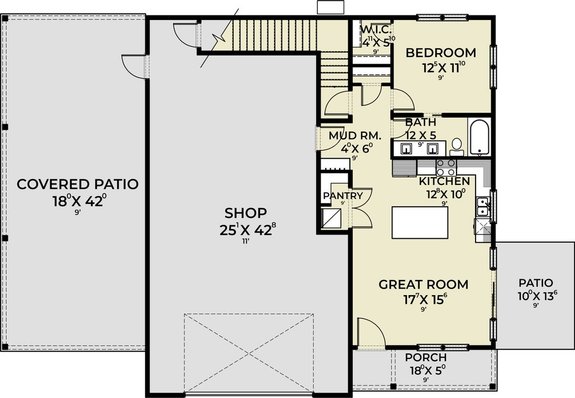
Barndominium Plan with Shop
Barndominium Plan with Shop - Front Exterior
Barndominium Plan with Shop - Main Level
Barndominium Plan with Shop - Upper Level
Here’s a modest barndominium house plan just over 1,500 square feet. The kitchen feels modern with a big island that overlooks the great room. Don’t miss the walk-in pantry. A mudroom with lockers sits nearby.
Outdoor living options include two patios and a covered front porch. Keep things organized in the two-car garage, which features a generous shop. Check out the cool loft on the second level.
Loving any of the plans you're seeing? Register now to easily save and return to your favorites!
Farmhouse Plan with Outdoor Living
Farmhouse Plan with Outdoor Living - Front Exterior
Farmhouse Plan with Outdoor Living - Main Level
Farmhouse goals! This country design grabs your attention with board-and-batten siding, a wide front porch, and a metal roof. Inside, you’ll find a thoughtful layout that is full of function and ease. A walk-in pantry and a large island with an eating bar highlight the open kitchen.
A dining room rests near the foyer. Tucked away on the right side of the plan, the primary suite shines with a spa-like bath, an extra-large closet, and access to the rear lanai via French doors. Our favorite part? The rear lanai, which features a big fireplace.
Simple Plan with Game Room
Simple Plan with Game Room - Front Exterior
Simple Plan with Game Room - Main Level
Simple Plan with Game Room - Upper Level
Boasting a four-corner footprint, this simple house plan is jam-packed with smart amenities. For example, a super-spacious game room brings versatility to the first floor. Nearby, you’ll find plenty of room for storage under the stairs.
Bright and open, the second level features a seamless layout between the living room, the breakfast nook, and the kitchen. Take advantage of outdoor living on the covered patio.
Bright and Modern
Bright and Modern - Front Exterior
Bright and Modern - Main Level
A sleek exterior welcomes you to this one-story modern house plan. Inside, the living room opens up to the dining area and the kitchen, where an island with a snack bar is ready for relaxed meals. A large patio brings the outdoors in via sliding glass doors.
You’ll love the extra-generous closet in the primary suite. The handy mudroom is a welcome detail.
U-Shaped Kitchen
U-Shaped Kitchen - Front Exterior
U-Shaped Kitchen - Upper Level
Here’s a modern style plan that uses space wisely. The open-concept floor plan promotes relaxed living. Near the entry, an office gives you versatility. The U-shaped kitchen features an eating bar that seats up to four.
You’ll find a bedroom suite and an additional bedroom with a big walk-in closet on the second level. Plus, a deck allows you to kick back and unwind.
