Blog Home > Is 3,000 Square Feet a Big House?

The Houseplans Blog

Is 3,000 Square Feet a Big House?

Is 3,000 square feet a big house? Find out here!

Hero Image

August 13, 2024

Livabl Brand

Can't find what you're looking for?

Give us a call below or reach out and we’ll make sure to be in contact!

Send Us a Message

By Courtney Pittman

Is 3,000 square feet a big house? It all depends on your point of view, but we'd say that for most people, it's plenty of room (especially considering the average size of house plans that sell for us is around 2,000 sq. ft.). With spacious living areas, flexible spaces, and extra rooms for a growing family, these home plans are anything but small. The designs below (all around 3,000 square feet) offer luxurious amenities and give you plenty of room to spread out.

Explore our 3,000 square foot house plans collection here.

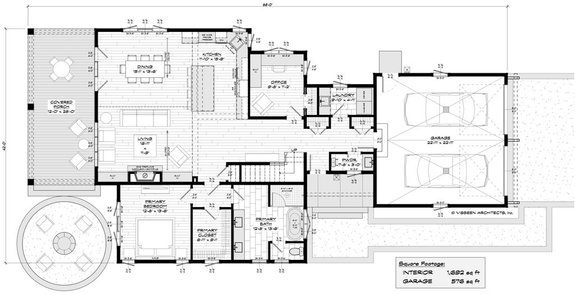
One-Story Traditional House Plan One-Story Traditional House Plan One-Story Traditional House Plan - Front Exterior

One-Story Traditional House Plan One-Story Traditional House Plan - Main Level

Brimming with character and style, this traditional house plan gives you bold curb appeal and a layout inside to match. Front and rear porches make outdoor living a breeze. Inside, the open floor plan makes it easy to move between the island kitchen, the dining area, and the spacious great room. Check out the extra-big pantry, which features a counter, cabinets, and a cool barn door.

The primary suite enjoys privacy in the right wing of the plan and shows off a deluxe bath and direct access to the laundry room. Other highlights include a mudroom with lockers on the way in from the two-car garage, a walk-in closet in each bedroom, and a cute pocket office.

Lakefront Farmhouse Plan with First-Floor Primary Suite Lakefront Farmhouse Plan with First-Floor Primary Suite Lakefront Farmhouse Plan with First-Floor Primary Suite - Front Exterior

Lakefront Farmhouse Plan with First-Floor Primary Suite Lakefront Farmhouse Plan with First-Floor Primary Suite - Main Level

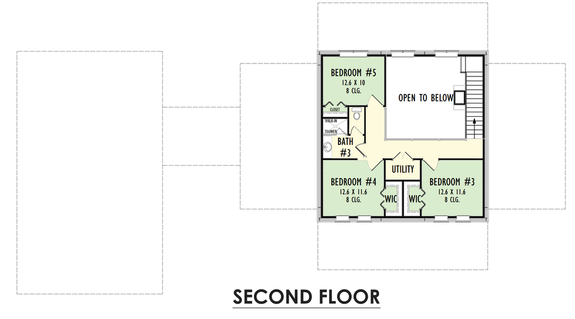
Lakefront Farmhouse Plan with First-Floor Primary Suite Lakefront Farmhouse Plan with First-Floor Primary Suite - Upper Level

Contemporary and cozy, this cottage design displays thoughtful details. The main living areas are totally open, with the kitchen sporting a big island. Nearby, the dining room opens to a covered porch. Large and luxurious, the first-floor primary suite shines with dual sinks, a modern shower, a separate tub, and a walk-in closet.

The second level hosts two additional bedroom suites (one with a nook) and a cool bunk room. Need more space? Check out the bonus room above the two-car garage. The home office is a nice touch.

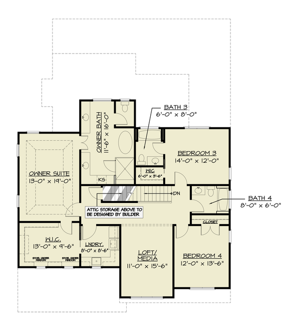
Large Craftsman House Plan Large Craftsman House Plan Large Craftsman House Plan - Front Exterior

Large Craftsman House Plan Large Craftsman House Plan - Main Level

Large Craftsman House Plan Large Craftsman House Plan - Upper Level

Just under 3,000 square feet, this Craftsman house plan gives you an open floor plan and plenty of hardworking spaces. For example, the primary suite features direct access to the laundry room for extra convenience. The great room flows seamlessly into the dining area and the kitchen, where an island is ready to serve up snacks.

A screened porch keeps the bugs at bay. Other outdoor living spaces include covered front and rear porches. A bedroom suite sits on the main level, while the second level hosts the primary suite, two additional bedrooms (one a suite), and a loft space.

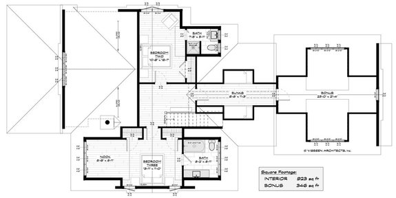
Two-Story Farmhouse Plan Two-Story Farmhouse Plan Two-Story Farmhouse Plan - Front Exterior

Two-Story Farmhouse Plan Two-Story Farmhouse Plan - Main Level

Two-Story Farmhouse Plan Two-Story Farmhouse Plan - Upper Level

Here’s a two-story house plan that shows off farmhouse flair with an inviting front porch, timeless gable roofs, and metal accents. The main floor holds the living room, the dining area, and the island kitchen. A flex space could be used as a media room or a home office. Three bedrooms (including the primary suite) share the second level, along with another flex space, a hall bath, and the laundry room.

Spacious Barndominium Plan Spacious Barndominium Plan Spacious Barndominium Plan - Front Exterior

Spacious Barndominium Plan Spacious Barndominium Plan - Main Level

Spacious Barndominium Plan Spacious Barndominium Plan - Upper Level

Bold curb appeal, flexible spaces, and sizable rooms are just a few of the phrases that describe this barndominium plan. The main living areas are open and breezy, with direct access to the large back porch (via French doors). Near the front, a versatile office space sits next to the entry.

Located on the right side of the plan, the first-floor primary suite makes it easy to age in place, while a guest room waits on the opposite side. Upstairs, three bedrooms share a hall bath. Don’t miss the generous two-car garage.

Farmhouse Plan with Three-Car Garage Farmhouse Plan with Three-Car Garage Farmhouse Plan with Three-Car Garage - Front Exterior

Farmhouse Plan with Three-Car Garage Farmhouse Plan with Three-Car Garage - Main Level

Here’s a standout plan that offers an open layout and well-thought-out details (like an extra-big pantry). The primary suite shows off two walk-in closets, a shower with a seat, a separate tub, and dual sinks. The kitchen displays a wide island that looks out to the great room and a nearby keeping room with a fireplace.

Check out the super-spacious back porch. All three secondary bedrooms feature a walk-in closet. Storage is plentiful in the three-car garage.

Modern Plan for Sloping Lot Modern Plan for Sloping Lot Modern Plan for Sloping Lot - Front Exterior

Modern Plan for Sloping Lot Modern Plan for Sloping Lot - Main Level

Modern Plan for Sloping Lot Modern Plan for Sloping Lot - Lower Level

Building on a sloping lot? Check out this four-bedroom modern design. The easygoing floor plan allows the interior to feel breezy and bright. Enjoy snacks at the big kitchen island. Relax on the screened porch or the large deck.

Two suites are located on the main level, including the primary suite. You’ll find two more bedrooms and a bath on the lower level. We love the versatile family room.

Narrow Contemporary Plan Narrow Contemporary Plan Narrow Contemporary Plan - Front Exterior

Narrow Contemporary Plan Narrow Contemporary Plan - Main Level

Narrow Contemporary Plan Narrow Contemporary Plan - Upper Level

Only 30 feet wide, this contemporary plan boasts nice details throughout and is ideal for a narrow lot. The great room opens to the kitchen, where an island gives you room for meal prep and casual snacks. Here’s a neat detail: two walls of sliding glass doors open to an outdoor room.

Upstairs, the primary suite features a private bathroom with an extra-big walk-in closet. All three of the secondary bedrooms also enjoy walk-in closets. A laundry room adds convenience on this level.

Discover more 3,000 square foot house plans.

Get Our Newsletter

Be the first to see new plans, special offers, and more.

By signing up for our newsletter, you agree to our Terms & Conditions and Privacy Policy, for an account

Blog Subscribe Icon