Blog Home > Large Barndominium Floor Plans

The Houseplans Blog

Large Barndominium Floor Plans

Get more square footage and lots of curb appeal.

Hero Image

January 19, 2024

Livabl Brand

Can't find what you're looking for?

Give us a call below or reach out and we’ll make sure to be in contact!

Send Us a Message

By Devin Uriarte

Large house plans are extremely functional as they provide more space for occupants to live comfortably. Another huge benefit to a larger plan is all the additional storage space for belongings, which is useful as your needs fluctuate in the longer term. Not only do these barndominium plans offer all of the benefits of more square footage, but they also offer charming curb appeal.

See our collection of large barndominium floor plans.

Barndominium Plan with Indoor-Outdoor Flow Barndominium Plan with Indoor-Outdoor Flow Barndominium Plan with Indoor-Outdoor Flow - Front Exterior

Barndominium Plan with Indoor-Outdoor Flow Barndominium Plan with Indoor-Outdoor Flow - Main Floor

Barndominium Plan with Indoor-Outdoor Flow Barndominium Plan with Indoor-Outdoor Flow - Upper Floor

This new barndominium is huge! Spanning over 6,218 sq. ft., this beautiful house plan has everything you are looking for. If you need extra space for vehicles and tools, the five-car garage has a full workshop and storage area. The large living room and kitchen area is ideal for hosting during the warmer months. Fun garage-style doors open up and reveal spectacular views plus the covered porch and outdoor kitchen. The primary suite sits on the main floor and offers easy access to the walk-in laundry room. Upstairs there are four additional bedrooms and a full office.

Charming Barndominium Charming Barndominium Charming Barndominium - Front Exterior

Charming Barndominium Charming Barndominium - Main Floor

Charming Barndominium Charming Barndominium - Upper Floor

Here’s another large and lovely barndominium with a charming exterior. One design detail that needs to be highlighted is the rear garage. The rear garage is ideal for a clean façade and is also great for corner lots. Inside, vaulted ceilings open to above for a spacious feeling. The luxurious primary suite offers owners a full bathroom, walk-in closet, and access to the laundry room. A sizeable guest bedroom also sits on the main floor. There are three more guest bedrooms upstairs, each with its own walk-in closet and private bathroom.

Barndominium with Wraparound Porch Barndominium with Wraparound Porch Barndominium with Wraparound Porch - Front Exterior

Barndominium with Wraparound Porch Barndominium with Wraparound Porch - Main Floor

Barndominium with Wraparound Porch Barndominium with Wraparound Porch - Upper Floor

One of the benefits of having a large house plan is all the additional storage space you get. In the four-car garage of this barndominium is a full workshop and the elevated ceilings make it so larger equipment can fit. There’s nice flow leading from the living room to the kitchen and out to the porch. Each bedroom in this large barndominium has a walk-in closet, which is such a luxury to have.

Large Barndominium with Great Mudroom Large Barndominium with Great Mudroom Large Barndominium with Great Mudroom - Front Exterior

Large Barndominium with Great Mudroom Large Barndominium with Great Mudroom - Main Floor

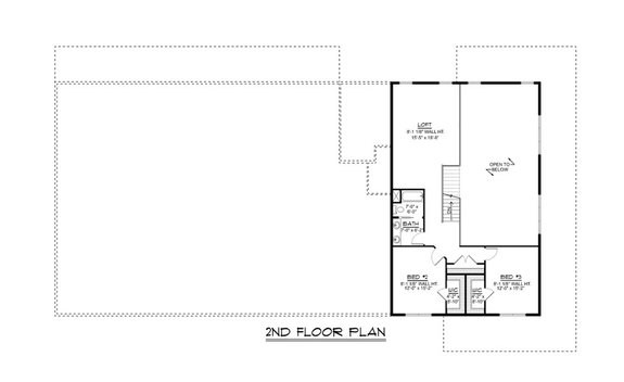
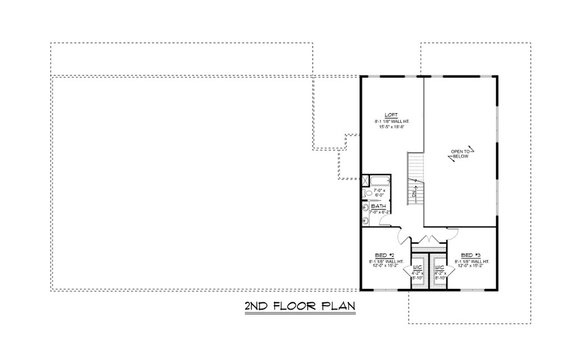
Large Barndominium with Great Mudroom Large Barndominium with Great Mudroom - Loft

The exterior of this large barndominium looks extremely traditional with the shape; it really does look like a barn. A unique feature of this plan is the detached garage that sits across from the house and is accessed via a breezeway. Check out the spacious mudroom. Inside the main living areas you’ll find a modern and functional layout that is great for hosting friends and family. The open concept living space allows you to move from room to room with ease and to the outdoors if you desire. A luxurious primary suite sits on the opposite side of the home from the two guest bedrooms for privacy. Owners will love the full dressing room and walk-in closet along with a private doorway that leads to the garage.

Want more? Explore large barndominium floor plans here.

Get Our Newsletter

Be the first to see new plans, special offers, and more.

By signing up for our newsletter, you agree to our Terms & Conditions and Privacy Policy, for an account

Blog Subscribe Icon