Barndominium Style House Plan - 3 Beds 2.5 Baths 3055 Sq/Ft Plan #1064-193 - Houseplans.com
Search
REGISTER LOGIN SAVED No Saved Plans CART  Cart Empty
Don't lose your saved plans! Create an account to access your saves whenever you want. See our Terms & Conditions and Privacy Policy.
OR
15% OFF THIS PLAN TODAY
Plan 1064-193
Photographs may show modified designs.
Home  >  Style  >  Barndominium

Barndominium House Plan 1064-193

Key Specs


Plan Sq Ft

3055
sq ft

Plan Bedrooms

3
Beds

Plan Bathrooms

2.5
Baths

Plan Floors

2
Floors

Plan Garages

3
Garages

Questions? Get Personalized Help
Select Plan Set Options
What's included?
$233.75
Additional Construction Sets$59.50/each

Additional hard copies of the plan (can be ordered at the time of purchase and within 90 days of the purchase date).

$140.25
$335.75
$33.15
$140.25
Subtotal
NOW $1232.50
You save $217.50
(15% savings)
Sale ends soon!
Best Price Guaranteed

Or order by phone: 1-800-913-2350
Questions? Get Personalized Help
 

 
Hours:
Ready for Your Call 7 Days a Week
Every Day 7 am - 8:30 pm Eastern

See Terms & Conditions and Privacy Policy.

Thanks for your question.

We will be in touch shortly.

Wow!
Cost to Build Reports
$1.99 with Code
CTB2026 (Limit 1)
Our Cost to Build Report gives you a personalized estimate for building your home, based on your location, plan, and materials.

Residential Construction Guide

Learn Building Basics

This downloadable, 26-page guide is full of diagrams and details about plumbing, electrical, and more.

Key Specs


Plan Sq Ft

3055
sq ft

Plan Bedrooms

3
Beds

Plan Bathrooms

2.5
Baths

Plan Floors

2
Floors

Plan Garages

3
Garages

Plan Description


This plan features 2 baths and 2 half baths.

This plan can be customized!

Tell us about your desired changes so we can prepare an estimate for the design service. Click the button to submit your request for pricing, or call 1-800-913-2350.

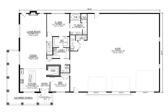
Floor Plans


Floor Plan - Main Floor

Reverse
houseplans LOGO

BUILDER Advantage Program

PRO BUILDERS

Join the club and save 5% on your first order.
PLUS download exclusive discounts and more.

LEARN MORE

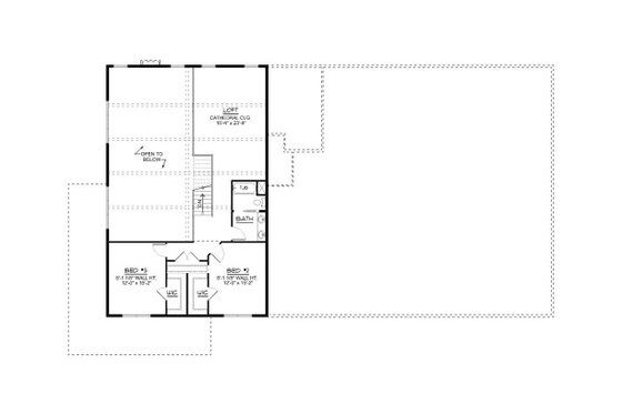
Floor Plan - Upper Floor

Reverse

Full Specs & Features


Basic Features

Bedrooms : 3
Baths : 2.5
Stories: 2
Garages: 3

Dimension

Depth : 53'
Width : 94'

Area

Total : 3055 sq/ft
Garage : 3026 sq/ft
Main Floor : 1982 sq/ft
Porch : 463 sq/ft
Upper Floor : 1073 sq/ft
* Total Square Footage typically only includes conditioned space and does not include garages, porches, bonus rooms, or decks.

Ceiling

Garage Ceiling : 18' 3"
Main Ceiling : 9'
Upper Ceiling Ft : 8'

Roof

Primary Pitch : 4/12
Roof Framing : Truss
Roof Load : 30 psf
Secondary Pitch : 7/12

Exterior Wall Framing

Framing : 2x6
Insulation : R-19

Bedroom Features

Main Floor Bedrooms
Upstairs Bedrooms
Walk In Closet

Kitchen Features

Kitchen Island

Additional Room Features

Den Office Study Computer
Great Room Living Room
Storage Area
Workshop

Garage Features

Front Entry Garage

Lot Characteristics

Suited For View Lot

Outdoor Spaces

Wrap Around Porch

More

Additional Half Bath

What's included in this plan set


See a sample plan set

All plans are drawn at ¼” scale or larger and include :

  • Foundation Plan: This page shows all necessary notations and dimensions including support columns, walls, and excavated/unexcavated areas.
  • Exterior Elevations: Views of the home from all four sides showing exterior materials and measurements.
  • Floor Plan(s): Detailed plans for each level showing room dimensions, wall partitions, windows and doors, etc.
  • Cross Section: A slice of the home from roof to foundation, showing important details like stairs and wall construction.
  • Overhead Roof Plan(s): A view of the home from above showing roof pitch, peaks, valleys, and other details.
  • Construction Notes and Details: Shows the builder how things come together, like walls, the chimney, insulation, and more.
* See important information before purchasing

Pricing


Plan Options

PDF Set

Best Value!
$1232.50
PDF plan sets are best for fast electronic delivery and inexpensive local printing.

5 Copy and PDF Set

$1530.00
5 printed plan sets mailed to you plus PDF plan sets are best for fast electronic delivery and inexpensive local printing.

PDF Unlimited Build

$1742.50
PDF plan sets are best for fast electronic delivery and inexpensive local printing.

CAD and PDF Set Unlimited Build

$2762.50
For use by design professionals to make substantial changes to your house plan and inexpensive local printing plus PDF plan sets are best for fast electronic delivery and inexpensive local printing.

Foundation Options

Slab

$0.00
Ideal for level lot, single layer concrete poured directly on grade.

Crawlspace

$250.75
Ideal for semi-sloped or level lot, home can be built off of grade, typically 18” - 48”.

Basement

$335.75
Ideal for level lot, lower level of home partially or fully underground.

Walk Out Basement

$335.75
Ideal for a sloping lot, lower level with outdoor access.

*Options with a fee may take time to prepare. Please call to confirm.

Framing Options

Wood 2x6

$0.00
Wood 2x6 Exterior Walls

Wood 2x4

$250.75
Wood 2x4 Exterior Walls

*Options with a fee may take time to prepare. Please call to confirm.

Additional Options

Right-Reading Reverse

$233.75
Choose this option to reverse your plans and to have the text and dimensions readable.

Additional Construction Sets

$59.50
Additional hard copies of the plan (can be ordered at the time of purchase and within 90 days of the purchase date).

Audio Video Design

$140.25
Receive an overlay sheet with suggested placement of audio and video components.

Comprehensive Material List

$335.75
A complete list of building supplies needed to construct the infrastructure of your new house, plus an overlay of materials shown directly on your PDF (foundation to rooftop with interior and exterior materials), and a detailed, itemized door and window schedule showing all sizes and types. Please allow 5-7 Business Days for completion. Note, the Comprehensive list is only available with a PDF purchase. The Comprehensive list can be ordered no matter what additional plan options you have selected.

Construction Guide

$33.15
Educate yourself about basic building ideas with these four detailed diagrams that discuss electrical, plumbing, mechanical, and structural topics.

Lighting Design

$140.25
Receive an overlay sheet with suggested placement of lighting fixtures.

*Options with a fee may take time to prepare. Please call to confirm.

Unless you buy an “unlimited” plan set or a multi-use license you may only build one home from a set of plans. Please call to verify if you intend to build more than once. Plan licenses are non-transferable and cannot be resold.

Other Plans By This Designer

See all plans by
this designer

Need help? Let our friendly experts help you find the perfect plan!

Contact us now for a free consultation.