Blog Home > Luxury Single-Story House Plans with Basements from Visbeen Architects

The Houseplans Blog

Luxury Single-Story House Plans with Basements from Visbeen Architects

Check out these stunning single-story home designs.

Hero Image

November 16, 2022

Livabl Brand

Can't find what you're looking for?

Give us a call below or reach out and we’ll make sure to be in contact!

Send Us a Message

By Devin Uriarte

Visbeen Architects creates gorgeous house plans that focus on modern living. We have selected some of our favorite luxury single-story house plans with basements. These homes feature unique amenities such as multi-car garages, open floor plans, media rooms, and much more.

Check out the full collection from Visbeen Architects

Contemporary Style Plan Contemporary Style Plan Contemporary Style Plan - Exterior

Contemporary Style Plan Contemporary Style Plan - Main Floor Plan

Contemporary Style Plan Contemporary Style Plan - Lower Floor Plan

This contemporary style house plan offers some luxurious curb appeal. The use of mixed materials for the exterior gives off that classic modern and contemporary feeling. If you enter the home through the two-car garage, you’ll find yourself in the mudroom. There is a powder room to the right and two impressively sized closets lining the hallway. A sliding door separates the mudroom from the pantry for easy access. The walk-in pantry then leads into the kitchen where you can prepare meals and serve your guests at the island or dining area.

Large glass windows in the living room bring the room to life and having access to the backyard makes this a great space for entertaining. The bright and spacious living room leads into the private wing where the primary suite and at home office area. Two additional bedrooms are on the lower level of the house plan and have the option of being used as a den or media room.

Luxury Country Home Plan Luxury Country Home Plan Luxury Country Home Plan - Exterior

Luxury Country Home Plan Luxury Country Home Plan - Main Floor Plan

Step inside this traditional country style house plan with luxe amenities. The foyer leads into the open concept living space. In the kitchen, there is an island with built-in seating for guests. Host guests in the dining room and have everything easily within reach with the walk-in pantry so near. To end the night off right, you can gather around in the screened patio.

The primary suite is on the main level along with a private study. There is an impressive walk-in closet and full-sized bathroom in the primary suite. On the lower level there are two additional bedrooms as well as some unfinished space. Guests and family can enjoy the impressive family and game room with a full refreshments bar. There is also access to the patio from the family room.

Luxe Home Plan with Big Windows Luxe Home Plan with Big Windows Luxe Home Plan with Big Windows - Exterior

Luxe Home Plan with Big Windows Luxe Home Plan with Big Windows - Main Floor Plan

Look at this modern house plan with impressive windows. Take in the views of the property while preparing meals at the kitchen island. There’s a walk-in pantry behind the sliding door, making meal prep hassle-free. Host family and friends in the living room and gather for a meal in the separate dining room. On those warmer nights, take the party outdoors on the screened porch.

On one side of the house plan there’s the primary suite with an impressive walk-in closet and bath. The foyer separates the bedrooms to give the primary suite some additional privacy.

Farmhouse Style Home Plan Farmhouse Style Home Plan Farmhouse Style Home Plan - Exterior

Farmhouse Style Home Plan Farmhouse Style Home Plan - Main Floor Plan

Farmhouse Style Home Plan Farmhouse Style Home Plan - Lower Floor Plan

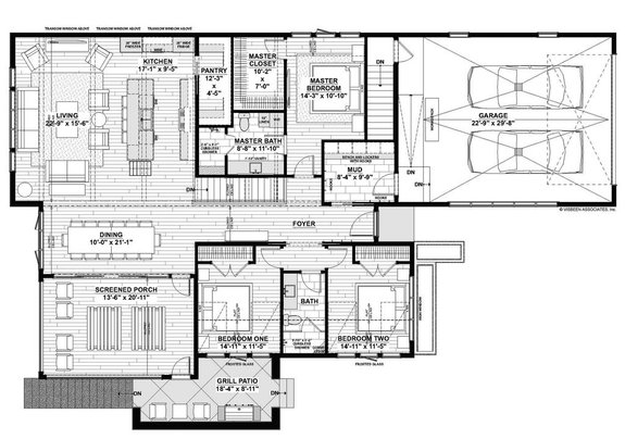
This luxe farmhouse plan is classic and effortless. A foyer welcomes you into the open concept living space where large sliding glass doors open to the screened deck. The living and dining room flow into the kitchen where there is an island with seating. Just steps away from the kitchen is the luxurious walk-in pantry with lots of space for storage. Next to the pantry is the private office and there is a bathroom adjacent to the office. The primary suite and the flex room both have private access to the screened porch. Unwind in the primary suite and enjoy the luxurious bathroom and dual walk-in closets.

Downstairs, guests can feel right at home with their own space. Off the east hall there are two bedrooms that share a bathroom and off the west hall, there is another bedroom with access to a bathroom. Guests can relax in the living room or at the refreshment area. You can access the lower patio from the family room for a more intimate gathering.

Luxury House Plan with Game Room Luxury House Plan with Game Room Luxury House Plan with Game Room - Exterior

Luxury House Plan with Game Room Luxury House Plan with Game Room - Main Floor Plan

Luxury House Plan with Game Room Luxury House Plan with Game Room - Lower Floor Plan

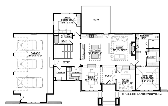
Check out this luxurious Prairie style house plan with lots of thoughtful amenities. Bring together friends and family for a lovely evening of dinner and drinks. Prepare at the kitchen island while continuing the conversation with guests as they relax in the living room. Gather in the dining room for an elevated experience. Across from the dining room is a private study that is great for those who work from home. The primary suite sits on the main floor and features a fabulous bathroom and walk-in closet. Guests can enjoy their privacy at the opposite end of the home.

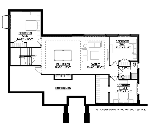
Continue the party on the lower floor where the billiards room is. The open floor plan makes this space great for entertaining. There are three additional bedrooms on the lower floor as well as an unfinished area.

Traditional Luxury House Plan Traditional Luxury House Plan Traditional Luxury House Plan - Exterior

Traditional Luxury House Plan Traditional Luxury House Plan - Main Floor Plan

Traditional Luxury House Plan Traditional Luxury House Plan - Lower Floor Plan

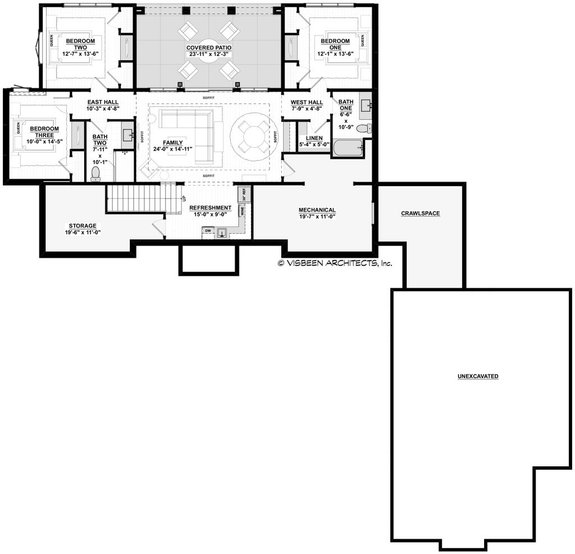
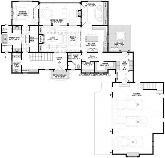
Drive up to this luxurious house plan with traditional style. A portico opens to the foyer and into the open living area. The floor plan creates a steady flow from room to room and into the kitchen. You can access the screened deck from the dining room and there is a barbecue area for outdoor entertaining. In the kitchen, there’s plenty of prep space on the island and for more space, there’s a walk-in pantry. Further down the hall there’s a walk-in laundry room, a powder bath, and a coat closet. At the end of the hall is the entryway to the three-car garage.

Double doors lead to the primary suite that features a luxurious walk-in closet and bath. Down on the lower level are two bedrooms, an additional family room, and a refreshment area. The refreshment area serves the game room, and the dual doors leading outside to the covered patio create a nice flow.

Check out the full collection from Visbeen Architects

Get Our Newsletter

Be the first to see new plans, special offers, and more.

By signing up for our newsletter, you agree to our Terms & Conditions and Privacy Policy, for an account

Blog Subscribe Icon