By Courtney Pittman
You can't beat the popularity of modern farmhouse floor plans. With wide front porches, modern kitchens, open floor plans, and country details, these home designs feel timeless and cool. We've gathered some of our favorite modern farmhouse plans (with photos!) below. Start scrolling and let the photos do the talking.
Click here to browse our collection of modern farmhouse plans.
Spa-Like Master Bathroom
Work from home in the handy den
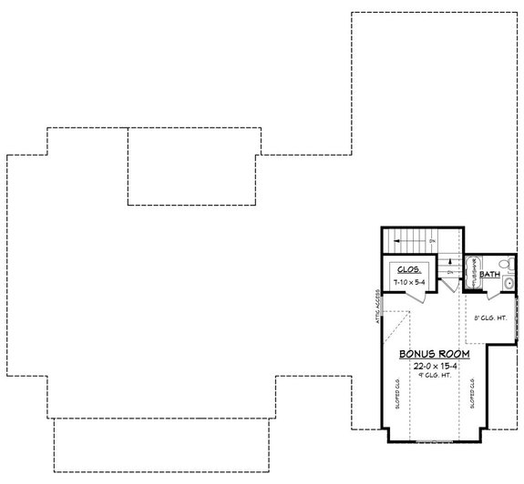
Plan 1070-104
Check out the photos of this stylish modern farmhouse plan. This design gives your family a contemporary open floor plan that creates excellent flow. A den just off the entry makes it easy to work from home, while a bonus room on the second level could be used as a game room or extra bedroom. At night, relax in your spa-like master bathroom (located on the main level).
Contemporary Meets Country
You’ll love the fresh and modern open floor plan
Plan 430-156
This contemporary version of a classic farmhouse design will draw all eyes to its stylish exterior. Better yet, the open floor plan inside feels fresh and modern. The kitchen gives you an island that overlooks the great room. Everything has a place in the walk-in pantry. Sound too good to be true? See for yourself!
Texas Modern Farmhouse Plan
Discover all the beauty this house plan has to offer
Plan 935-17
Hello gorgeous! This standout modern farmhouse floor plan shows off open living spaces, a luxurious master suite, and lots of photos. Unique and thoughtful details include see-through fireplaces in both the living room and the master suite, a private "owner's courtyard," and a bar (check out these bold home bar design ideas from Elle Decor).
Welcoming Front Porch
Take in the cool fall weather on the screened porch
Plan 929-807
This farmhouse house plan shows off a neighborhood-friendly porch that connects to the garage via a breezeway. Another porch in back connects to the great room, so it's easy to step outside. Check out the screened porch. Inside, the easygoing flow between the island kitchen and great room creates a relaxed vibe. A loft on the second floor could serve as a home office space if needed.
Bestselling Modern Farmhouse Floor Plan
Kick back and relax on the rear covered porch
Plan 51-1132
This bestselling modern farmhouse plan feels fresh, from its metal roof to barn doors inside and a huge kitchen. The master suite gives you a view of the backyard, plus a luxurious private bathroom with double sinks, a tub with a view, and a separate shower. Work from home? A convenient office on the first level gives you plenty of privacy. Take in the fall views on the front and rear porches (celebrate fall with these front porch ideas from HGTV).
Bold Curb Appeal
Take advantage of the huge walk-in closet in the master suite
Plan 51-1160
Get bold curb appeal with this on-trend modern farmhouse plan. The open floor plan flows from the great room to the island kitchen. Check out the main-level master suite, where a big shower and soaking tub invite you to relax. Also, the huge walk-in closet features an island and plenty of space for organization. A pocket office on the first floor allows you to work from home with ease. Don’t miss the spacious loft and media room on the second level.
Popular Farmhouse Design
You’ll love the generous walk-in pantry in the kitchen
Plan 929-8
Why is this modern farmhouse plan so popular? First of all, just look at it! The sleek exterior feels both modern and classic. Inside, the 1,905-square-foot layout gives you three bedrooms (including the deluxe master suite) and fun, open gathering zones.
The vaulted great room enjoys easy access to the screened porch and patio for indoor-outdoor living. Need to keep things organized? The generous walk-in pantry provides plenty of space for groceries, while the laundry room keeps things tidy. A bonus room above the two-car garage can be used in a variety of ways (like a home-office space).
Modern Farmhouse Plan with a Contemporary Layout
This design gives you a main-level master suite
Plan 901-132
This modern farmhouse plan features a contemporary open floor plan, with the island kitchen at the heart of it all. Head out to the covered rear porch just off the main living space. The private master suite is conveniently located on the main floor and gives you a walk-in closet and dual sinks. You’ll find two additional bedrooms, a bathroom, and an open loft area on the second level. A bonus room could be used as a home office, exercise space, or another bunkroom (check out these cool bunkroom designs from House Beautiful).
Timeless and Contemporary
A bonus room could be used as an extra bedroom
This 1,428-square-foot modern farmhouse plan gives you timeless curb appeal and a contemporary open floor plan. Vaulted ceilings in the great room and kitchen add an extra dimension of space. The master suite is located at the back of the plan for extra privacy. Enjoy a drink on the wide front porch. Check out the real building story of this home here.
Explore modern farmhouse plans.












