By Courtney Pittman
Sponsored by ProVia
Looking for a home with country flair? Check out these modern farmhouse plans with barndominium style (while the term barndominium often refers to a metal building, these designs feature mostly traditional wood framing). Welcoming porches, board-and-batten siding, and big kitchens feel classic yet up to date. Here are eleven eye-catching examples.
Browse our Modern Farmhouse Plans Collection
Looking for more home design inspiration? Check out ProVia’s Simulated Divided Panels for Doors and Windows here.
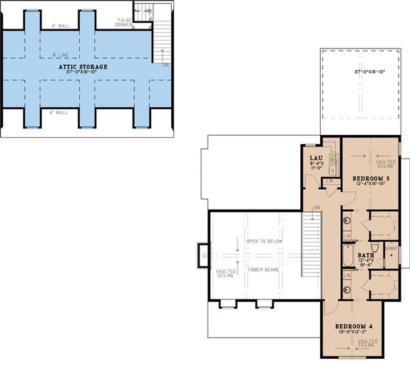
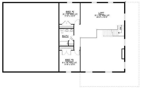
Barndo Style with Wraparound Porch
Barndo Style with Wraparound Porch 1064-111 - Front Exterior
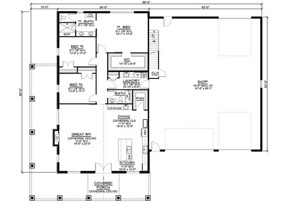
Barndo Style with Wraparound Porch 1064-111 - Main Floor Plan
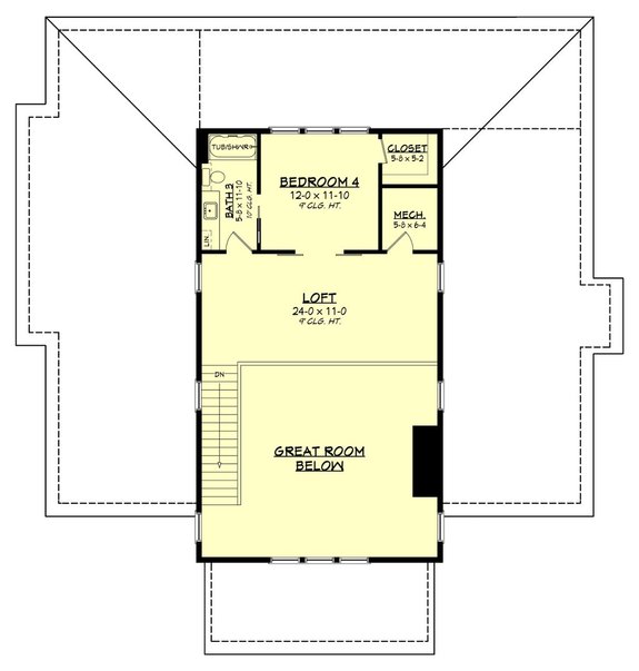
Barndo Style with Wraparound Porch 1064-111 - Upper Floor Plan
Here’s a modern farmhouse plan with barndo style. We love the cool wraparound porch and the metal gable roof. Inside, the layout feels relaxed and airy with an open floor plan between the main living areas. Check out the home office and the spacious garage.
The primary suite sits on the main floor for easy aging in place. Upstairs, two secondary bedrooms share a full bath. Don’t miss the versatile loft.
Want farmhouse-style elements in your home? Check out these tips from ProVia.
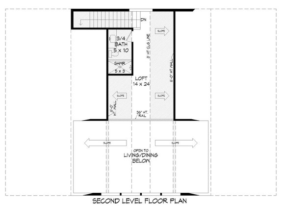
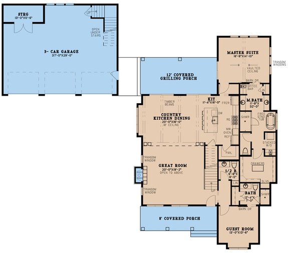
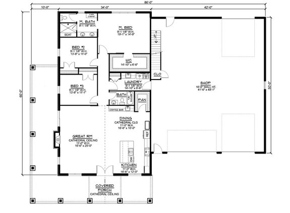
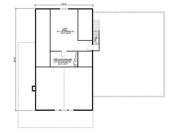
Three-Car Garage with Workshop
Three-Car Garage with Workshop 1064-148 - Front Exterior
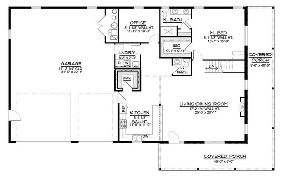
Three-Car Garage with Workshop 1064-148 - Main Floor Plan
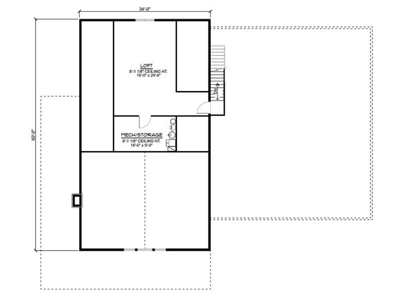
Three-Car Garage with Workshop 1064-148 - Upper Floor Plan
A wraparound porch adds major curb appeal to this modern farmhouse plan. Also, note the big three-car garage and workshop – a nice barndominium feature. Overlooking the great room, the wide kitchen island invites you to relax. Enjoy a morning cup of Joe at the nearby coffee bar.
The primary suite makes it easy to keep clothes organized with a generous walk-in closet. A flexible loft and storage space complete the second level.
Huge Kitchen Island
Huge Kitchen Island 932-521 - Front Exterior
Huge Kitchen Island 932-521 - Main Floor Plan
Huge Kitchen Island 932-521 - Upper Floor Plan
Check out this barndominium house plan. An impressive kitchen island (with an eating bar) seats seven and opens to the living room and dining area. You’ll appreciate the convenient walk-in pantry and the large mudroom/laundry room nearby.
A vaulted exercise room and a studio space are nice touches. The upper level holds a loft and a bathroom with a shower.
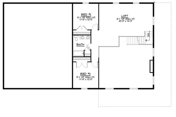
Modest Farmhouse
Modest Farmhouse 124-1263 - Front Exterior
Modest Farmhouse 124-1263 - Main Floor Plan
Modest Farmhouse 124-1263 - Upper Floor Plan
This country charmer offers classic farmhouse details (like board-and-batten siding, an inviting front porch, and a gable roof) along with a modern floor plan. The great room features a vaulted ceiling and a wood stove. A well-equipped kitchen offers a central island, a flush eating bar, and a walk-in pantry with shelves.
The primary suite and an additional bedroom round out the main floor. Upstairs, a loft (along with a full bath) adds versatility.
Welcoming Vibe
Welcoming Vibe 430-259 - Front Exterior
Welcoming Vibe 430-259 - Main Floor Plan
Welcoming Vibe 430-259 - Upper Floor Plan
Beautiful board-and-batten siding and a welcoming front porch deliver country curb appeal to this modern farmhouse plan. The efficient layout opens the kitchen up to the dining area and the great room. Everything has a place in the generous pantry.
The split-bedroom design offers plenty of privacy for the primary suite. Other highlights include a walk-in closet in each bedroom, a handy loft, and a sizable rear porch.
Efficient Floor Plan
Efficient Floor Plan 120-274 - Front Exterior
Efficient Floor Plan 120-274 - Main Floor Plan
This farmhouse design shows off barndominium style with metal framing (learn more about this popular style here). The country kitchen gives you lots of counter space and flows into the family room with ease. Tucked away to the back of the plan, the primary suite enjoys privacy, along with dual sinks, a huge walk-in closet, and a safe room.
The two secondary bedrooms each sport walk-in closets near the front of the home. Next to the foyer, a study offers a quiet place to work. Our favorite part: the spacious covered back porch.
Easy Outdoor Living
Easy Outdoor Living 1074-24 - Front Exterior
Easy Outdoor Living 1074-24 - Main Floor Plan
A timeless wraparound porch and a gable roof make this farmhouse stand out. Inside, the modern layout is attractive and functional. In the main living areas, the island kitchen opens completely to the great room and the dining area. The primary suite includes a spa-like bathroom and a big walk-in closet.
Don’t miss the smart drop zone with lockers near the three-car garage. The home office delivers privacy in style with barn doors. Nice weather? Take full advantage of outdoor living on the rear porch – which gives you a kitchen and a wood-burning fireplace.
Narrow-Lot Farmhouse Plan
Narrow-Lot Farmhouse Plan 430-282 - Front Exterior
Narrow-Lot Farmhouse Plan 430-282 - Main Floor Plan
Ideal for a narrow lot, this smart farmhouse plan takes advantage of every square foot with an open layout. The kitchen’s level eating bar serves the dining/living room with ease. Front and back porches add outdoor living options.
The primary suite, an additional bedroom, and a full bath complete this plan.
Breezy and Modern
Breezy and Modern 1074-44 - Front Exterior
Breezy and Modern 1074-44 - Main Floor Plan
Here’s a farmhouse plan that really understands modern living. The kitchen is open to the great room and includes an island. Covered porches in the front and back shade the home. The primary suite sits on the left side of the plan and gives you direct access to the laundry room.
Two more bedrooms boast walk-in closets and share a full bath on the opposite side. The mudroom adds a place to sit and take off your shoes.
Two-Story Farmhouse Design
Two-Story Farmhouse Design 923-273 - Front Exterior
Two-Story Farmhouse Design 923-273 - Main Floor Plan

Two-Story Farmhouse Design 923-273 - Upper Floor Plan
This two-story house plan grabs your attention with its farmhouse exterior. Inside, the vibe is relaxed and open. Take a look at the kitchen, where a big island provides casual seating. Sliding doors open to a rear covered porch.
The secluded primary suite shows off luxe amenities, including a coffee bar! A guest suite rests near the front of the plan. Two bedrooms are joined by a Jack-and-Jill bath on the second level.
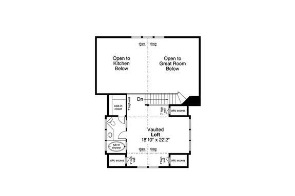
Plenty of Storage
Plenty of Storage 51-1213 - Front Exterior
Plenty of Storage 51-1213 - Main Floor Plan
Plenty of Storage 51-1213 - Upper Floor Plan
A wide front porch welcomes you to this four-bedroom farmhouse plan. The impressive layout revolves around the open kitchen and great room, where an island makes it easy to serve meals here and to the dining nook. The mudroom and walk-in pantry add useful storage.
Don’t miss the primary suite’s jaw-dropping bathroom with a relaxing tub and an extra-large closet. An office sits near the back of the plan and enjoys access to the rear porch. Three additional bedrooms, two bathrooms, and a loft round out the second level.