Blog Home > Open-Concept Small Lake House Plans

The Houseplans Blog

Open-Concept Small Lake House Plans

Take a look at these small and open lake house plans we love!

Hero Image

February 9, 2022

Livabl Brand

Can't find what you're looking for?

Give us a call below or reach out and we’ll make sure to be in contact!

Send Us a Message

By Gabby Torrenti

These open-concept lake house plans are perfect for airy waterfront living, making your home simple to navigate and mimicking a wide-open lakeside landscape. The plans in this collection are also on the smaller side, making them perfect for modest lots in quaint lakefront locales. Explore this collection of plans and find the perfect blueprint to create the lake home of your dreams.

Want to see all our open-concept small lake house plans? View the full collection here.

Cabin-Style Lake House Open-Concept Small Lake House Plans Cabin-Style Lake House 25-4272 - Front Exterior Open-Concept Small Lake House Plans Cabin-Style Lake House 25-4272 - Main Floor Plan Open-Concept Small Lake House Plans Cabin-Style Lake House 25-4272 - Upper Floor Plan

Coming in at under 1,000 square feet, this small lake house plan features two floors of living space and plenty of room for a family to enjoy. On the main level, the home opens with a spacious great room, leading into the open kitchen and dining space. At the rear of this level, a bedroom makes space to relax after a day on the lake, with a full bathroom across the hallway for freshening up before evening activities.

Upstairs, the homeowners can enjoy their own room to relax, including a private bathroom. Outside, significant deck and patio space invites you outside, while lots of windows let natural light flood the interior spaces.

Looking for decorating inspiration for your open concept lake house? Explore these ideas from Southern Living.

Open Contemporary Home Open-Concept Small Lake House Plans Open Contemporary Home 25-4881 - Front Exterior Open-Concept Small Lake House Plans Open Contemporary Home 25-4881 - Main Floor Plan Open-Concept Small Lake House Plans Open Contemporary Home 25-4881 - Upper Floor Plan

Up a short flight of stairs, this modern home welcomes guests into a front portico, which leads into the kitchen with a center island. Toward the rear of the home, the dining room creates a space to enjoy a meal, with outdoor access. The rest of this level includes a great room that is ideal for relaxing with friends and family and a powder room that lets guests freshen up with ease. Upstairs, a full bathroom sits at the top of the stairs, including two sinks. Two guest bedrooms and a larger third bedroom for you make up the rest of the level and each room includes its own closet. Relax in the living room on the mezzanine level.

Modern Lake House Open-Concept Small Lake House Plans Modern Lake House 23-2747 - Front Exterior Open-Concept Small Lake House Plans Modern Lake House 23-2747 - Main Floor Plan

With 1,209 square feet of living space and a large back deck, this modern lakeside house features an open floor plan and lots of windows to let in natural light. Through the front door, the home opens with a spacious dining room, with the kitchen located directly to the right. A center island helps to break up the space, while also creating a convenient area for meal prepping or enjoying a quick snack. At the back of the home, a living room overlooks the water, while serving as a relaxing haven to enjoy time with family or friends. A set of sliding doors leads onto the back deck, which is simply perfect for watching the sun set over the water.

Back at the front of the home, the primary suite sits to the left of the front door, including a walk-in closet that can easily fit all your outfits. A bathroom is accessible from the main closet, with a second entrance that allows it to be accessed from the front foyer too. Across the entryway, a second bedroom is perfect for guests or children to enjoy.

Lakeside Farmhouse Open-Concept Small Lake House Plans Lakeside Farmhouse 461-72 - Front Exterior Open-Concept Small Lake House Plans Lakeside Farmhouse 461-72 - Main Floor Plan Open-Concept Small Lake House Plans Lakeside Farmhouse 461-72 - Upper Floor Plan

Beyond the farmhouse-style front porch, this space opens with the living room on the right and an entrance to the primary bedroom to the left. The living space leads toward the dining room, with a center island welcoming you to the kitchen and nearby walk-in pantry. Beyond this area, the screened porch and grill porch are ideal for lakeside living and allow you to dine alfresco any night of the week. Back inside, a mudroom with a powder bath keeps your home tidy, with a nearby laundry area that makes it easy to drop muddy shoes or outdoor equipment before heading into the rest of the home. Completing this level, the primary suite includes its own bathroom with dual sinks and a shower, as well as a walk-in closet. Upstairs, two bedrooms sit at opposite sides of the main staircase with a full bathroom in the middle. Double sinks and a private tub/toilet area make this space fit to share, while two closets (one of them quite large) help keep everyone organized. A bonus room completes this level, creating lots of potential for additional storage or a cozy space to relax.

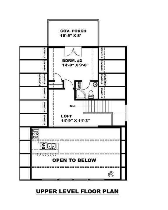
Modern A-Frame Cabin Open-Concept Small Lake House Plans Modern A-Frame Cabin 117-914 - Front Exterior Open-Concept Small Lake House Plans Modern A-Frame Cabin 117-914 - Main Floor Plan Open-Concept Small Lake House Plans Modern A-Frame Cabin 117-914 - Upper Floor Plan

With a unique A-frame design and nearly 1,600 square feet of living space, this home opens with a covered entry porch, with the combined living room and kitchen spaces at the end of the home. The super-open layout creates sweeping views of the water from the main living spaces. A peninsula counter in the kitchen and a corner pantry help save space, while the nearby dining room affords you the opportunity to enjoy a family meal overlooking the lake. The primary bedroom sits at the opposite end of the space, including a full bathroom with double sinks across the hallway, a walk-in closet, and easy laundry room access.

Upstairs, the rear of the home is open to below, making the space feel open and airy. A loft overlooks the main level, creating seamless visual flow between levels. The rest of this floor is made up of the second bedroom, which includes a private bathroom and access to a covered porch. Lots of storage space completes the home and makes this A-frame cabin a convenient lakeside escape.

Want to see more of our open-concept small lake house plans? View the full collection here.

Get Our Newsletter

Be the first to see new plans, special offers, and more.

By signing up for our newsletter, you agree to our Terms & Conditions and Privacy Policy, for an account

Blog Subscribe Icon