Blog Home > Our Top 1,000 Sq. Ft. House Plans

The Houseplans Blog

Our Top 1,000 Sq. Ft. House Plans

These 1,000 sq. ft. house designs are big on style and comfort.

Hero Image

November 14, 2024

Livabl Brand

Can't find what you're looking for?

Give us a call below or reach out and we’ll make sure to be in contact!

Send Us a Message

Looking for a smaller house plan that doesn’t fall short on style? That’s where these around-1,000 sq. ft. home designs come in. Just the right mix of cozy and convenient, 1,000 sq. ft. house plans are ideal for a variety of different situations. Browse some of our favorites below.

Check out our collection of 1,000 sq. ft. house plans.

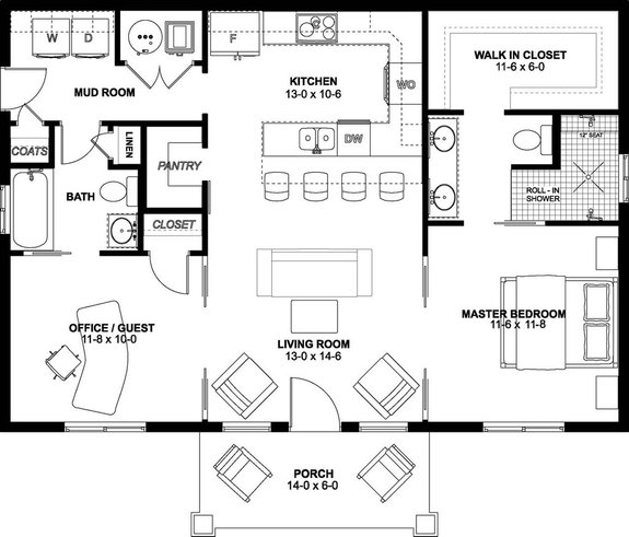
Country Plan with Office

Country Plan with Office Country Plan with Office - Front Exterior

Country Plan with Office Country Plan with Office - Main Level

Thoughtful design choices make this two-bedroom country house plan live large. For example, an open floor plan between the main living areas creates a modern vibe. The u-shaped kitchen features an eating bar that seats four.

Nearby, a flexible office could also become a guest bedroom. The primary suite gives you a big walk-in closet and a roll-in shower. A welcoming front porch offers shaded comfort.

Three-Bedroom Contemporary Plan

Three-Bedroom Contemporary Plan Three-Bedroom Contemporary Plan - Front Exterior

Three-Bedroom Contemporary Plan Three-Bedroom Contemporary Plan - Main Level

A shed roof and sleek lines deliver contemporary curb appeal. Large windows draw in natural light. The great room opens to the handy snack bar in the kitchen.

Check out the back patio. A walk-in closet highlights the primary suite, while two bedrooms share a hall bath nearby.

Front and Rear Porches

Front and Rear Porches Front and Rear Porches - Front Exterior

Front and Rear Porches Front and Rear Porches - Main Level

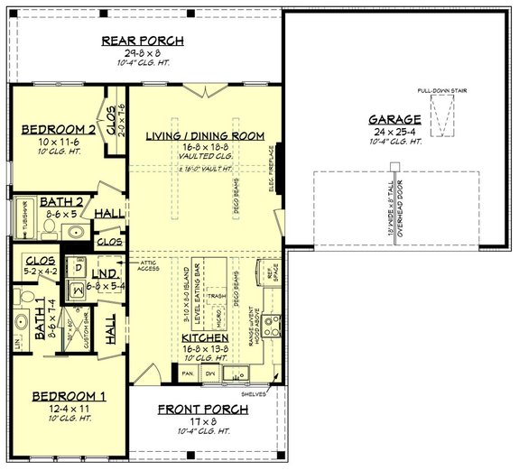
Here’s a welcoming plan that delivers plenty of charm (and outdoor living) with front and rear porches. The living room flows easily into the open dining area and the kitchen, where a wide island features a level eating bar.

The primary suite impresses with a custom shower and a walk-in closet. The laundry room sits conveniently close by. An additional bedroom and a full hall bath reside at the back of the plan.

Petite Farmhouse Design

Petite Farmhouse Design Petite Farmhouse Design - Front Exterior

Petite Farmhouse Design Petite Farmhouse Design - Main Level

Here’s a petite farmhouse plan that maximizes space with an open layout. In the kitchen, an eating bar serves the great room/dining area, where a vaulted ceiling draws the eye up. Extending the living space, French doors open to a rear porch.

Two bedrooms, including the primary suite, rest on the left side of the plan. You’ll have plenty of room for storage in the two-car garage.

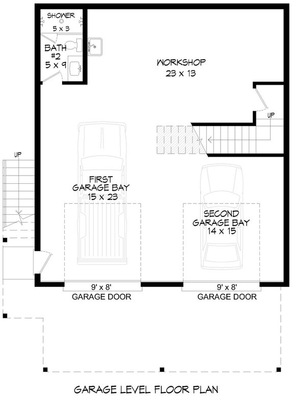
Small House Plan with Workshop

Small House Plan with Workshop Small House Plan with Workshop - Front Exterior

Small House Plan with Workshop Small House Plan with Workshop - Main Level

Small House Plan with Workshop Small House Plan with Workshop - Lower Level

Here’s a great use of 1,000 square feet. On the lower level, the two-car garage gives you a workshop and a bathroom with a shower. Upstairs, the living room opens to the kitchen, where you’ll find a breakfast nook and island with a snack bar.

A bedroom enjoys privacy at the back of the plan, while a full bath sits nearby. A balcony/deck makes it easy to enjoy outdoor living.

Simple Country Home

Simple Country Home Simple Country Home - Front Exterior

Simple Country Home Simple Country Home - Main Level

This 1,040 sq. ft. country home design offers a simple four-corner footprint, an open floor plan, two bedrooms, and two baths. What's more, its spacious and welcoming front porch combined with its super-cute dormers create quintessential country curb appeal.

Contemporary Small House Design

Contemporary Small House Design Contemporary Small House Design - Front Exterior

Contemporary Small House Design Contemporary Small House Design - Main Level

Contemporary Small House Design Contemporary Small House Design - Upper Level

If you’re looking for a smaller floor plan, then this two-story contemporary design might be just right for you. At just over 1,000 sq. ft., there is plenty of space for you to enjoy the open dining room and living room layout. The outdoor patio is just steps away from the dining area, making it a great space for relaxing. There is ample room in the nearby kitchen for meal prep and storage, including a convenient island.

On the second story you’ll find a primary bedroom with a private bathroom. There is an additional bedroom and a full bathroom on this level, along with a flex room that would be great for a home office or den.

Explore these home office ideas from House Beauitful

Modern Small House Design

Modern Small House Design Modern Small House Design - Front Exterior

Modern Small House Design Modern small House Design - Main Level

Modern Small House Design Modern small House Design - Upper Level

Modern Small House Design Modern small House Design - Mezzanine Level

If a modern house design is something you’re interested in, you can’t go wrong with this around-1,000 sq. ft. floor plan. This design has two levels, but also boasts a mezzanine level in between, complete with a secret sleeping nook.

On the first floor you’ll find an open floor plan, with space for a living and dining area and a nearby kitchen for convenience. The washer/dryer is on this level, as is a bathroom, along with easy access to the barbecue patio outside.

As you walk up the stairs you’ll pass the cool sleeping nook, and arrive on the second level where there is a main bedroom that includes a private closet. There is an additional bedroom on this level and a bathroom, as well as plenty of closet space.

Check out these closet hacks from Handy Familyman

1,000 Sq. Ft. Modern House Design

1,000 Sq. Ft. Modern House Design 1,000 Sq. Ft. Modern House Design - Front Exterior

1,000 Sq. Ft. Modern House Design 1,000 Sq. Ft. Modern House Design - Main Level

This 1,000 sq. ft. small house plan has lots to offer, including convenient single-story living. As you enter through the covered porch, you’ll be greeted with an open floor plan which allows the living room to flow seamlessly into the dining space and well-lit kitchen. Located at the back of the home, there is a covered porch for outdoor dining and relaxing during the warmer months.

The primary bedroom (with walk-in closet) is located on one side of the house, while a second bedroom is located on the opposite side, near the spacious and modern bathroom.

Compact and Modern Small Home Plan

Compact and Modern Small Home Plan Compact and Modern Small Home Plan - Front Exterior

Compact and Modern Small Home Plan Compact and Modern Small Home Plan - Main Level

This modern house design is simple and cool. When you enter, you’ll find the spacious living and dining rooms flow easily into the modern and compact kitchen. The large windows throughout this home plan contribute to the spaciousness of this small house design. Through the hall and on the opposite side of the floor plan are two bedrooms, one bathroom, closets, and space for a washer/dryer.

In addition, there is a rear patio that offers plenty of space to relax or spend time enjoying a meal outside.

Take a look at these outdoor patio ideas from Better Homes & Gardens

1,000 Sq. Ft. Country Style Home Plan

1,000 Sq. Ft. Country Style Home Plan 1,000 Sq. Ft. Country Style Home Plan - Front Exterior

1,000 Sq. Ft. Country Style Home Plan 1,000 Sq. Ft. Country Style Home Plan - Main Level

Enjoy all the appealing qualities of a country style house design, but on a smaller scale. You can keep things simple with this cozy 1,000 sq. ft. home plan that offers more space then you might think. The large (and welcoming) front porch is sure to be your new favorite place to relax and spend time with family. When you come inside, you’ll find a vaulted great room that transitions into a spacious (and also vaulted) dining space. Here you’ll also find access to the convenient back patio.

The spacious kitchen also has high ceilings, and is within steps of a separate pantry and linen closet. Further down the hallway you’ll find a full bathroom and two bedrooms, each with their own generous closets.

Ranch Style 1,000 Sq. Ft. House Plan

Ranch Style 1,000 Sq. Ft. House Plan Ranch Style 1,000 Sq. Ft. House Plan - Front Exterior

Ranch Style 1,000 Sq. Ft. House Plan Ranch Style 1,000 Sq. Ft. House Plan - Main Level

Lots of light and a generous amount of space are some of the perks that come included in this 1,000 sq. ft. home design. When you enter, first you’ll find yourself in the open living space that easily transitions into an area for dining. The nearby kitchen has plenty of cabinet space, and includes an eating bar for casual meals.

Further down the hall are the two bedrooms that come equipped with generous amounts of closet space. Just steps away is the full bathroom that includes a tub and dual vanities.

On the opposite side of this home design is an attached one car garage with space for additional storage.

Small Home Plan Under 1,000 Sq. Ft.

Small Home Plan Under 1,000 Sq. Ft. Small Home Plan Under 1,000 Sq. Ft. - Front Exterior

Small Home Plan Under 1,000 Sq. Ft. Small Home Plan Under 1,000 Sq. Ft. - Main Level

Small Home Plan Under 1,000 Sq. Ft. Small Home Plan Under 1,000 Sq. Ft. - Upper Level

If you’re looking for additional, private space for a grown kid or family member, then this country style house plan could be just what you need. The living space is conveniently located on top of a double-car garage that offers plenty of space for vehicles and storage. You can access the main level by the side stairway adjacent to the garage.

On this level you’ll find a comfortable sitting room that flows seamlessly into a breakfast area and spacious kitchen. From there you’ll find the bedroom, the bathroom, and a generous amount of closet space. You can also enjoy some time relaxing or dining on your outdoor covered deck.

Cottage Style Home Plan

Cottage Style Home Plan Cottage Style Home Plan - Front Exterior

Cottage Style Home Plan Cottage Style Home Plan - Main Level

If you love the classic, timeless appeal of a country cottage, then this might be the plan for you. Step inside off of the wide and spacious front porch, and you’ll be welcomed by a bright, vaulted great room that transitions into a dining space. In the high-ceilinged kitchen, you’ll have plenty of room to prepare meals, while the convenient separate pantry makes it easy to store all your utensils, cutlery, and food items.

Continue further down the hall and you’ll find the modern bathroom, two bedrooms (with lots of closet space), and a spot for the washer/dryer. On the opposite site of the house is a two-car attached garage.

Classic Farmhouse Style Home Design

Classic Farmhouse Style Home Design Classic Farmhouse Style Home Design - Front Exterior

Classic Farmhouse Style Home Design Classic Farmhouse Style Home Design - Main Level

This welcoming and attractive small home design has lots of curb appeal. The front porch offers a great place to sit and relax and spend some time with family. As you enter, you’ll find that you’re in an open living room, with pocket doors on either side for the main bedroom and the guest room. Keep them open to create a spacious environment, or keep them closed for privacy. The kitchen comes well equipped with a walk-in pantry and an eating bar for casual and convenient meals.

The luxe primary bedroom has access to a private bathroom with a walk-in shower (with dual shower heads) and two sinks. The walk-in closet provides plenty of space for storage. The guest bedroom (or home office) has access to an additional full bathroom, and whose pocket door can be closed for privacy. This house design also includes space for a mudroom, a washer/dryer, and a two-car garage.

Check out our collection of 1,000 sq. ft. house plans.

Get Our Newsletter

Be the first to see new plans, special offers, and more.

By signing up for our newsletter, you agree to our Terms & Conditions and Privacy Policy, for an account

Blog Subscribe Icon