Blog Home > Shop with Apartment Plans

The Houseplans Blog

Shop with Apartment Plans

Living space + workshops? Count us in.

Hero Image

October 2, 2023

Livabl Brand

Can't find what you're looking for?

Give us a call below or reach out and we’ll make sure to be in contact!

Send Us a Message

By Devin Uriarte

If you're looking for a thoughtful way to create more storage, adding an apartment plan with a shop is a great option. These flexible plans have private spaces for guests or live-in family members. They also feature workshops in the garages for do-it-yourselfers.

Check out more shop-house (or shouse) plans here.

Shop with Upstairs Apartment Plan Shop with Upstairs Apartment Plan Shop with Upstairs Apartment Plan - Front Exterior

Shop with Upstairs Apartment Plan Shop with Upstairs Apartment Plan - Main Floor Plan

Shop with Upstairs Apartment Plan Shop with Upstairs Apartment Plan - Second Floor Plan

On the main level of this apartment plan is a three-car garage with an additional shop. The apartment upstairs features a spacious kitchen that opens to the living room, creating an inviting space for entertaining guests. Windows let in natural light.

Apartment Plan with Shop and RV Parking Apartment Plan with Shop and RV Parking - Front Exterior

Apartment Plan with Shop and RV Parking Apartment Plan with Shop and RV Parking - Main Floor Plan

Apartment Plan with Shop and RV Parking Apartment Plan with Shop and RV Parking - Second Floor Plan

This apartment plan has attractive curb appeal with its Craftsman design and details. The shop sits on the main floor and features a built-in work bench to keep things tidy. Need parking for an RV or boat? This plan has you covered. Upstairs in the apartment there are two bedrooms and a sizeable open living room.

Apartment Plan with Shop and Garage Apartment Plan with Shop and Garage Apartment Plan with Shop and Garage - Front Exterior

Apartment Plan with Shop and Garage Apartment Plan with Shop and Garage - Main Floor Plan

Apartment Plan with Shop and Garage Apartment Plan with Shop and Garage - Second Floor Plan

Below this two-bedroom apartment is a two-car garage with a full workshop. The apartment floor plan features an open concept living space with a vaulted ceiling. The many windows help the apartment plan feel brighter and more spacious.

Rustic Apartment Plan with Shop Rustic Apartment Plan with Shop Rustic Apartment Plan with Shop - Front Exterior

Rustic Apartment Plan with Shop Rustic Apartment Plan with Shop - Main Floor Plan

Rustic Apartment Plan with Shop Rustic Apartment Plan with Shop - Second Floor Plan

The rustic style of this apartment plan gives it unique curb appeal. However, the most unique feature of this plan must be the full tack room on the main floor. The tack room connects to the workshop and there’s a convenient mudroom that connects the workshop with the apartment. There’s great indoor-outdoor flow in the apartment with the open layout of the living room and rear patio.

Cozy Apartment Plan with Shop Cozy Apartment Plan with Shop Cozy Apartment Plan with Shop - Front Exterior

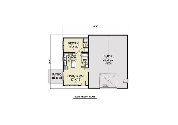
Cozy Apartment Plan with Shop Cozy Apartment Plan with Shop - Main Floor Plan

This single-story apartment plan is 612 sq. ft. and is connected to a garage with room for a workshop. The actual apartment has an open layout with an island kitchen that flows into the living room. In the bedroom, homeowners or guests have access to a walk-in closet for additional storage.

Check out more shouse plans here.

Get Our Newsletter

Be the first to see new plans, special offers, and more.

By signing up for our newsletter, you agree to our Terms & Conditions and Privacy Policy, for an account

Blog Subscribe Icon