By Courtney Pittman
From timeless farmhouse exteriors to must-see modern designs, these multifamily house plans serve up bold style. They also provide comfort and privacy for multiple living units within a single structure. Look for two, three, and four-unit designs. Check out some of our best multifamily house plans below.
Discover our multifamily house plans collection here.
Related: shop duplex house plans
Two-Story Duplex Plan
Two-Story Duplex Plan - Front Exterior
Two-Story Duplex Plan - Main Level
Two-Story Duplex Plan - Upper Level
Looks like we’ve found the cutest two-story duplex plan! Each unit boasts a super-open layout between the main gathering areas. An island in the kitchen offers casual dining, while the dining nook waits close by.
At the back of the plan, a patio gives you a functional outdoor living space with a built-in bench. A bedroom and a full bath reside next to the foyer. Upstairs, the primary suite shows off a generous walk-in closet, two sinks, a shower, and a separate tub. A second bedroom suite rounds out this design.
See 10 duplex plans that look like single-family homes
Contemporary Duplex Design
Contemporary Duplex Design - Front Exterior
Contemporary Duplex Design - Main Level
Contemporary Duplex Design - Upper Level
This striking duplex design showcases a contemporary exterior with clean lines and a metal roof. On the first level, each unit features a spacious living room, a dining nook, and an island kitchen. Sliding glass doors open to a covered patio.
A half bath and a garage wait at the back of the plan. On the second floor, two sinks, a large shower, and a big walk-in closet highlight the primary suite. The laundry room is conveniently close by. Two more bedrooms share a full hall bath.
Farmhouse Triplex Plan
Farmhouse Triplex Plan - Front Exterior
Farmhouse Triplex Plan - Main Level
Farmhouse Triplex Plan - Upper Level
Each unit of this stylish farmhouse triplex plan gives you 1,581 square feet of living space. The kitchen island features a level eating bar that overlooks the open living room. Lockers near the garage keep things tidy.
The second level hosts three bedrooms (including the primary suite) and a full bath. A front porch and a rear patio for each unit provide plenty of room for outdoor enjoyment.
Triplex Plan with Modern Style
Triplex Plan with Modern Style - Front Exterior
Triplex Plan with Modern Style - Main Level
Triplex Plan with Modern Style - Upper Level
A metal shed roof delivers modern style to each unit of this triplex design. The main living areas flow into each other seamlessly, creating an effortless feel. Don’t miss the seated island in the kitchen or the walk-in pantry.
The primary suite, two additional bedrooms, the laundry room, and a full bath occupy the second level. The handy garage gives you room for storage.
Bright and Airy
Bright and Airy - Front Exterior
Here’s a contemporary duplex plan that feels bright and airy. Large windows flood the interior with natural light. The first floor offers extra room for storage in the two-car garage. A bedroom and a full bath wait nearby.
The second floor features a sloped family room that opens to the U-shaped kitchen. A wall of sliding glass doors opens to a generous balcony. An art loft offers flexibility.
French Country Fourplex
French Country Fourplex - Front Exterior
French Country Fourplex - Main Level
French Country Fourplex - Upper Level
This fourplex plan delivers charming style with French country curb appeal. We love the combination of mixed siding and decorative shutters. Inside, the first floor is anchored by a kitchen peninsula that seamlessly connects to the great room.
Nearby, the pantry is ready to hold groceries. Relax on the patio out back. Upstairs, you’ll find two bedrooms (one of them a suite).
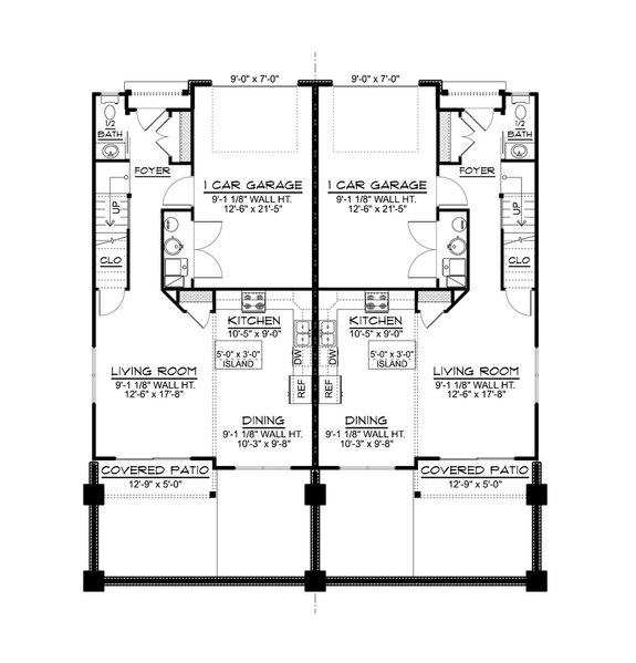
One-Story Duplex Design
One-Story Duplex Design - Front Exterior
One-Story Duplex Design - Main Level
Here’s a traditional duplex design with one level of living space. Each unit boasts a super-open layout. The kitchen island serves the great room and the dining area. Located at the back of the plan, the laundry room sits next to the entry and the pantry.
Both bedrooms (including the primary suite) wait on the left side of the plan. Outdoor living options include a front porch and a rear patio.
Modern Multifamily Plan
Modern Multifamily Plan - Front Exterior
Modern Multifamily Plan - Main Level
Moden Multifamily Plan - Upper Level
Moden Multifamily Plan - Lower Level
Love the look of modern? Check out this fourplex plan. Embracing contemporary style, each unit features an open-concept layout between the main gathering areas. Warm up next to the cozy fireplace in the great room.
The second-level primary suit impresses with a walk-in closet, a spacious shower, and dual sinks for added convenience. The study loft adds versatility. Rounding out this design, the lower level offers a dedicated office space and a one-car garage.


