By Courtney Pittman
Practical and inviting, Craftsman cottage house plans combine classic style with modest footprints. Uncomplicated layouts, smart storage options, natural materials, and wide front porches are just some of the details you’ll love about these timeless (and budget-friendly) designs. We’ve rounded up some standout Craftsman cottage house plans below for inspiration. Enjoy!
Click here to explore our collection of Craftsman cottage house plans.
Smart Storage Throughout
Enjoy privacy in the spacious master suite
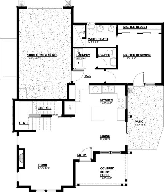
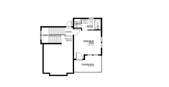
Plan 929-916
Here’s a Craftsman cottage house plan with smart storage (check out the two walk-in closets in the master suite) and great outdoor spaces. The kitchen overlooks the great room and includes a breakfast nook and a small work space (check out these small home office ideas from HGTV). The master suite enjoys a lot of privacy, and a door to the screened porch. Everything has a place in the handy mudroom just off the two-car garage. A bonus room upstairs could become a home office or a guest room.
Bright and Open Design
Relax on the screened porch
Plan 430-174
The front porch on this sweet home gives a neighborly, welcoming vibe. When you feel like more privacy, head to the side screened porch for outdoor relaxation. A mudroom keeps clutter at bay near the laundry room and two-car garage. Check out the master suite's huge walk-in closet and five-piece bathroom.
Open and Welcoming Layout
A study gives you space to work from home
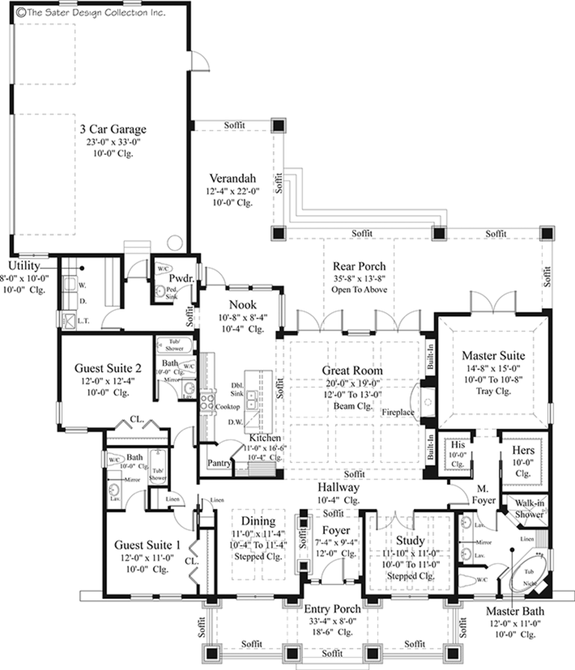
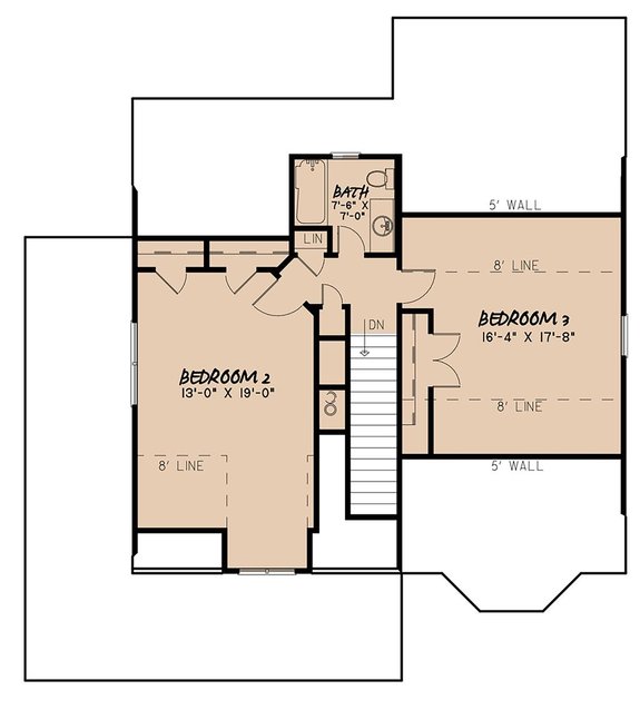
Plan 930-463
This streamlined version of a bestselling plan (the designer's own home!) presents an open and welcoming layout. The great room is the center of activity, with total openness to the island kitchen and two sets of French doors to the large rear porch. The master suite also opens to the porch, making it easy to step out from your bedroom to greet the day.
Two additional suites sit on the opposite side of the home. The study gives you space for work or hobbies. Tucked away in the back, the three-car garage offers lots of parking space without compromising the charming Craftsman curb appeal of the front.
Classic Curb Appeal
Warm up next to the cozy fireplace
Plan 20-2390
This Craftsman cottage house plan gives you an open floor plan between the main living areas. The owner’s suite features double sinks and a big walk-in closet. The covered front porch delivers classic curb appeal. When you feel like relaxing inside, hang out at the kitchen island. Don’t miss the walk-in pantry or the flex room (which can be used in a variety of ways).
Spacious Open Floor Plan
Check out the cool wraparound porch
Plan 923-141
Take a look inside to see how spacious and relaxed the open floor plan feels, especially the large great room. The master bedroom sits on the main level, while two additional bedrooms reside on the second floor. We love the front porch that wraps around the side to give you space to enjoy the fall season (explore these affordable fall front porch decorating ideas from The Spruce).
Modern Style on a Budget
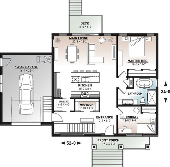
Keep things tidy in the handy mudroom
Plan 23-2728
This budget-friendly house plan shows off modern curb appeal with mixed siding and clean lines. In the kitchen, you’ll love the large island and the walk-in pantry. When the weather is nice, step out to the back deck or the front porch. Keep items organized in the convenient mudroom.
Craftsman Cottage with Great Flow
You’ll love the open layout in this design
Plan 895-118
This Craftsman cottage house plan encourages ease and function with great flow, especially around the kitchen’s island, the dining area, and out to the patio. The main-level master suite offers dual sinks and a modern shower. An additional bedroom suite and a covered deck reside on the second floor.
Generous Front Porch
Check out the main-level master suite
Plan 461-69
Explore the inside of this Craftsman cottage house plan, especially the spacious living room and its large fireplace (decorate your fireplace with these fall mantel ideas from Country Living). A generous front porch invites you outside for fall relaxation. Don’t miss the main-floor master suite, which treats you to a walk-in closet and a private bathroom with dual sinks. Work from home? A den upstairs could be used as a home office.
Impressive Craftsman Cottage
Discover the spacious pantry in the kitchen
Plan 1071-1
It’s all about the impressive practical spaces in this Craftsman cottage house plan. Take a look at the kitchen’s sizable pantry: not only is it quite large, but windows let in natural light for easier perusal of groceries when planning meals.
The master suite makes storage easy – just look at the ample size of the walk-in closet. In the middle of the home, the island kitchen overlooks the great room and breakfast nook for extra convenience. Cold outside? Warm up next to the cozy fireplace in the great room. A bonus room upstairs adds extra square footage and could be used as a home office.
Warm and Welcoming Design
Explore this modest house plan
Plan 48-666
Here’s a warm and welcoming Craftsman cottage that makes the most of its modest footprint. You’ll love the open living spaces that make this design feel bigger than it actually is. A built-in guest bed and shelves maximize space and storage options. Front and rear porches lend plenty of outdoor space and extended living.
Casual Craftsman Cottage House Plan
Work from home in the convenient pocket office
Plan 20-2261
This cool home design is all about style and casual living. High ceilings and a fireplace provide inviting ambiance and plenty of space to kick back and relax.
The master suite (tucked behind the dining area) is complete with a trayed ceiling and a large bath. A pocket office is located just off the main entry, while the laundry room and a drop zone are conveniently located off the garage.
Explore Craftsman cottage house plans.

















