Top 25 Farmhouse Plans
By Courtney Pittman
We’re back with another roundup of drool-worthy farmhouse plans! From wide front porches to well-equipped country kitchens, these exciting designs deliver warmth and style. Open great rooms, luxe primary suites, and walk-in closets are welcome amenities. See 25 of our favorite farmhouse plans below.
Want more? Explore our collection of farmhouse plans here.
Two-Story Farmhouse Design
Two-Story Farmhouse Design - Front Exterior
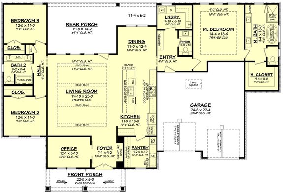
Two-Story Farmhouse Design - Main Level
Two-Story Farmhouse Design - Upper Level
Looking for a two-story farmhouse plan? Here you go! A metal roof covers the charming front porch. Inside, an island kitchen serves the living room and the dining nook with ease. A flex/bedroom and a hall bath wait nearby.
Upstairs, the primary suite impresses with a big closet and a wet room. Two additional bedrooms share a bathroom on this level.
Super-Spacious Kitchen Island
Super-Spacious Kitchen Island - Front Exterior
Super-Spacious Kitchen Island - Main Level
Designed with the timeless farmhouse look in mind, this plan shows off board-and-batten siding, a metal roof, and an inviting front porch. An open layout waits inside. We love the generous island in the kitchen, which features a level eating bar.
Nearby, the walk-in pantry includes built-in cabinets, a broom closet, and a beverage cooler. Lockers keep items tidy on the way in from the two-car garage. At the front of the plan, an office gives you a quiet place to work.
Four-Bedroom Plan with Loft
Four-Bedroom Plan with Loft - Front Exterior
Four-Bedroom Plan with Loft - Main Level
Four-Bedroom Plan with Loft - Upper Level
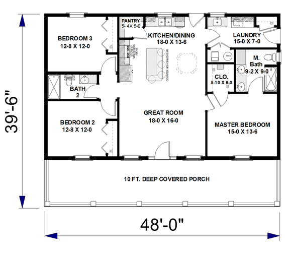
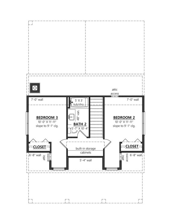
Get farmhouse style with this four-bedroom design. A charming front porch and cute shutters deliver country curb appeal. An open floor plan creates modern flow between the island kitchen, the great room, and the dining nook.
The main-level primary suite gives you direct access to the laundry room (via the closet). Built-in lockers and a bench highlight the mudroom. Three bedrooms, two baths, and a loft round out the second floor.
Sleek Farmhouse Plan
Sleek Farmhouse Plan - Front Exterior
Sleek Farmhouse Plan - Main Level
Here’s a small modern farmhouse plan with sleek style. We love the metal roof and the mixed siding. Front and rear porches offer shaded comfort.
An island serves the dining area and the family room. Don’t miss the linear fireplace, a nice modern detail. The primary suite, two secondary bedrooms (each with a walk-in closet), and a full bath sit near each other.
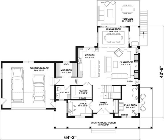
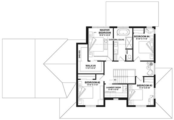
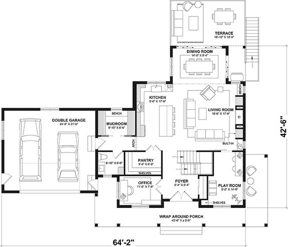
Luxe Design with Outdoor Living
Luxe Design with Outdoor Living - Front Exterior
Luxe Design with Outdoor Living - Main Level
Luxe Design with Outdoor Living - Upper Level
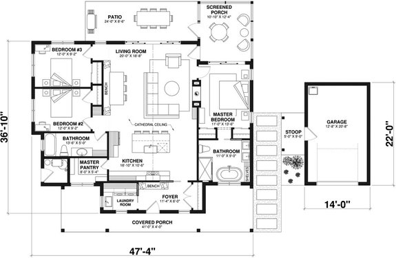
Smart details and up-to-date amenities make this luxe design stand out. Note the wraparound porch. The open layout encourages modern living. Versatile spaces include a playroom and an office.
Sliding glass doors open to a spacious back terrace. Here’s a thoughtful touch: the laundry room is located on the second level for extra convenience.
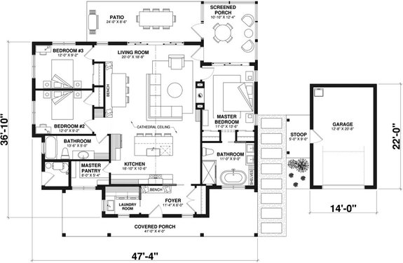
Cute Country Curb Appeal
Cute Country Curb Appeal - Front Exterior
Cute Country Curb Appeal - Main Level
With an open layout and a cathedral ceiling, this cute farmhouse plan lives larger than its modest square footage. The kitchen island provides seating for casual meals. We love the built-in bench in the dining nook. Sliding glass doors open to the rear patio.
On the right side of the plan, the primary suite features access to the screened porch. Two bedrooms and a hall bath reside on the left. The built-in bench in the foyer is a nice touch.
Under 2,000 Square Feet
Under 2,000 Square Feet - Front Exterior
Under 2,000 Square Feet - Main Level
Clocking in at 1,641 square feet, this charming farmhouse plan shows off an efficient layout and up-to-date amenities (like lockers on the way in from the two-car garage). The kitchen is well-equipped with an island and a nearby walk-in pantry.
Sliding glass doors open to the rear porch. A custom shower with a seat (plus a separate tub) and a sizable closet highlight the primary suite.
Wraparound Porch
Wraparound Porch - Front Exterior
Wraparound Porch - Upper Level
We are head-over-heels for this stunning farmhouse plan. A welcoming wraparound porch and a gable roof grace the exterior. Inside, the open great room, the dining area, and the kitchen flow into one another.
The primary rests on the main level, making it easy to age in place. A bedroom suite, a secondary bedroom, a hall bath, and a loft rest upstairs.
Loving any of the plans you're seeing? Register now to easily save and return to your favorites!
Stunning Four-Bedroom Plan
Stunning Four-Bedroom Plan - Front Exterior
Stunning Four-Bedroom Plan - Main Level
Love the popular farmhouse look? Check out this standout design. A wide front porch, metal roof accents, and mixed siding add country charm. Don’t worry, the layout inside is just as impressive.
The primary suite is quietly tucked away in the left wing of the plan and shines with an extra-big closet, a spa-like bathroom, and a coffee bar. The clever mudroom includes a built-in desk and lockers. Three additional bedrooms (each with a walk-in closet) complete this plan.
Farmhouse Plan for Narrow Lot
Farmhouse Plan for Narrow Lot - Front Exterior
Farmhouse Plan for Narrow Lot - Main Level
Farmhouse Plan for Narrow Lot - Upper Level
In the market for a house plan that fits a slim lot? We’ve got you covered. Just 39 feet wide, this farmhouse plan is a show-stopper. Inside, the island kitchen opens to the great room, where sliding glass doors open to the rear porch.
The primary suite resides on the first floor, while two bedroom suites and a versatile loft wait on the second.
Perennial Bestseller
Perennial Bestseller - Front Exterior
Perennial Bestseller - Main Level
Metal roof accents and an inviting front porch decorate the facade of this perennial bestselling house plan. The open layout includes the vaulted great room and the island kitchen. There’s ample room for groceries in the sizable pantry. Don't miss the dining room nearby.
Next to the foyer, an office features stylish barn doors and could be used as a hobby space or a guest room. The three-car garage gives you plenty of room for storage. Our favorite part? The fireplace-warmed covered patio out back, which boasts an outdoor kitchen.
Mudroom with Lockers
Mudroom with Lockers - Front Exterior
Mudroom with Lockers - Main Level
Here’s a sweet farmhouse plan that gives you bold curb appeal and an interior layout to match. In the kitchen, an island offers relaxed seating and extra prep space. French doors open to the rear porch for easy indoor/outdoor living.
The primary suite sits at the back of the plan and offers direct access to the laundry room. Check out the handy lockers on the way in from the two-car garage.
Relaxed Layout
Relaxed Layout - Front Exterior
This modern farmhouse design keeps it relaxed with a breezy layout and smart amenities. The kitchen takes center stage with a big island that overlooks the dining area and the great room. Front and rear porches offer room for outdoor hangs.
Other highlights include: a generous closet in the main-level primary suite, a versatile loft, and a guest room.
Modest Farmhouse Design
Modest Farmhouse Design - Front Exterior
Modest Farmhouse Design - Main Level
In the market for a smaller plan? We’ve got you covered with this modest farmhouse design. Board-and-batten siding and a dreamy front porch show off country curb appeal. A contemporary layout waits inside.
In the kitchen, a central island opens to the great room, creating an easygoing vibe. A stylish barn door hides the pantry. Highlights of the primary suite include a big shower with a seat, a walk-in closet, and direct access to the laundry room.
Impressive Details Throughout
Impressive Details Throughout - Front Exterior
Impressive Details Throughout - Main Level
It doesn’t get much more stylish than this modern farmhouse plan. Take a look at the great room, which features a vaulted ceiling, beams, and a fireplace. French doors open to the rear wraparound porch. Check out the extra-large pantry in the island kitchen.
Making it easy to throw in a load, the primary suite has access to the laundry room via the closet. Near the foyer, an office could be used in a myriad of ways. Each bedroom boasts a walk-in closet.
Breezy Farmhouse Plan
Breezy Farmhouse Plan - Front Exterior
Breezy Farmhouse Plan - Main Level
Breezy Farmhouse Plan - Upper Level
Want a design with modern, yet charming, style? You’re in luck. This farmhouse plan delivers that and more. The U-shaped kitchen steals the show with a large island and an extra-spacious pantry. A fireplace in the family room offers warmth and a cozy ambiance.
A bench and hooks keep items tidy in the mudroom. Located on the main level, the primary suite shines with a shower, a separate tub, and two sinks. A bedroom suite, two more bedrooms, a full bath, and a game room/loft rest on the second floor.
Compact Country Design
Compact Country Design - Front Exterior
Compact Country Design - Main Level
Here’s a cute and compact country design. We are swooning over the deep covered front porch. The open-concept floor plan creates a bright and airy feeling. Two bedrooms and a bathroom reside on the left side of the plan, while the primary suite enjoys privacy on the right. The laundry room sits conveniently close by.
Big Family Room
Big Family Room - Front Exterior
Nothing beats a farmhouse plan with a wraparound porch! The generous great room flows nicely into the kitchen, where an island offers casual seating. A pantry with built-in shelves sits under the stairs. On the left side of the plan, a garage is ready to store up to two vehicles.
The primary suite enjoys convenience on the first floor, while two additional bedroom suites (each with two closets) rest upstairs. Don’t miss the extra family room.
Love the barndominium look? Check out our barndominium floor plans collection here.
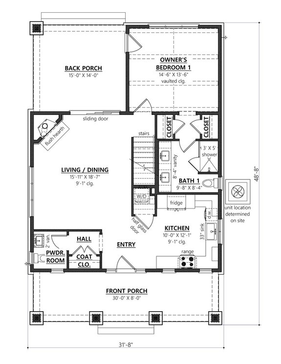
Duplex Farmhouse Plan
Duplex Farmhouse Plan - Front Exterior
Duplex Farmhouse Plan - Main Level
Duplex Farmhouse Plan - Upper Level
Take a look at this farmhouse-inspired duplex plan. Each unit boasts an open living space that features a living room and an island kitchen and other modern touches. For example, a mudroom area with lockers is ready to hold items just off the garage entry.
The second level gives you two bedrooms, a hall bath, and a primary suite. Oh, and a versatile loft to boot.
Generous Grilling Porch
Generous Grilling Porch - Front Exterior
Generous Grilling Porch - Main Level
Hello gorgeous! This eye-catching farmhouse plan has lots to love. Wraparound porch? Check. Big island kitchen? You got it. Oh, and don’t miss the fireplace-warmed vaulted great room. Here’s a fun detail: the sizable pantry boasts an island for easy meal prep.
At the front of the plan, the foyer sits between a formal dining room and a flexible study. Note the outdoor living porch (which sports a fireplace) and the grilling porch.
Simple Two-Bedroom Plan
Simple Two-Bedroom Plan - Front Exterior
Simple Two-Bedroom Plan - Main Level
Building on a budget? Here's an affordable design with a simple footprint. The open floor plan offers effortless living. The primary suite and an additional bedroom sit on the left side of the plan, along with a hall bath.
A small office with a built-in desk sits between the entry (with lockers) and the laundry room. A covered porch wraps around the entire perimeter of the home. Check out the optional carport.
One-Story Plan with Storage
One-Story Plan with Storage - Front Exterior
One-Story Plan with Storage - Main Level
Just over 2,000 square feet, this one-story plan grabs your attention with a farmhouse exterior. Inside, the streamlined layout places the island kitchen, the dining area, and the living room at the center of the home. Need room for storage? The two-car garage comes equipped with two storage closets.
There’s ample room for outdoor hangs on the rear porch and the deck. Two closets in the primary suite are welcome.
Space-Efficient Farmhouse Plan
Space-Efficient Farmhouse Plan - Front Exterior
Space-Efficient Farmhouse Plan - Main Level
Space-Efficient Farmhouse Plan - Upper Level
Here’s a farmhouse plan that turns heads with two dormer windows and a wide front porch. The space-efficient layout has a bit of separation between the U-shaped kitchen and the living room. Favorable weather? Enjoy outdoor living on the back porch.
A main-level primary suite, two secondary bedrooms, and a hall bath round out this design.
Small and Modern
Small and Modern - Front Exterior
At just 1,094 square feet, this small farmhouse plan showcases modern living. The open layout is ready for casual gatherings, with the kitchen featuring an island. Everything has a place in the two-car garage. Kick back and relax on the front and rear porches.
Two-Bedroom Plan with Hobby Room
Two-Bedroom Plan with Hobby Room - Front Exterior
Two-Bedroom Plan with Hobby Room - Main Level
This two-bedroom plan delivers a spacious layout that invites relaxed living. The island kitchen flows to the vaulted great room and the dining area, which opens to the rear covered patio. Nearby, the versatile hobby room could become an office.
Check out the primary suite, where you’ll find a walk-in closet, a vaulted ceiling, and access to the back patio. We love the outdoor shower.





