Blog Home > Ultimate A-Frame Cabins

The Houseplans Blog

Ultimate A-Frame Cabins

Explore these ultimate A-frame cabins.

Hero Image

July 8, 2024

Livabl Brand

Can't find what you're looking for?

Give us a call below or reach out and we’ll make sure to be in contact!

Send Us a Message

By Courtney Pittman

Looking to build an ideal vacation home? Check out our A-frame cabin plans. These triangular retreats offer simple footprints, open layouts, and versatile lofts. Another perk? Large windows and indoor/outdoor connections make them perfect for a scenic lot. We’ve rounded up our ultimate A-frame cabins below.

Want more? Check out our A-frame cabin plan collection here.

Cabin Plan with Loft Cabin Plan with Loft Cabin Plan with Loft - Exterior

Cabin Plan with Loft Cabin Plan with Loft - Main Level

Cabin Plan with Loft Cabin Plan with Loft - Upper Level

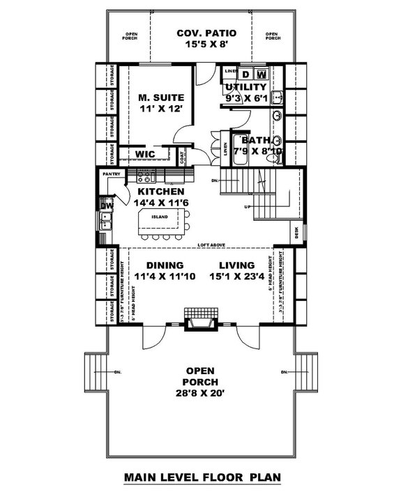
Here’s an A-frame cabin that greets you with a big open porch. Inside, a fireplace sits between floor-to-ceiling windows in the main living areas. Enjoy relaxed meals at the kitchen island, which seats up to six.

Don’t miss the rear covered patio. On the second floor, fun details include a flexible loft, a bedroom suite, and a covered porch.

Modern A-Frame Cabin Design Modern A-Frame Cabin Design Modern A-Frame Cabin Design - Exterior

Modern A-Frame Cabin Design Modern A-Frame Cabin Design - Main Level

Modern A-Frame Cabin Design Modern A-Frame Cabin Design - Upper Level

Modern and cool, this A-frame cabin design is all about easy living. The kitchen gives you lots of counter space and opens to the living room, creating an airy feel. A glass wall opens to the back patio (via French doors) and brings the outdoors in.

Two bedrooms, a hall bath, and a loft reside on the second level. However, the real head-turner is the spacious sundeck.

Large Kitchen Island Large Kitchen Island Large Kitchen Island - Exterior

Large Kitchen Island Large Kitchen Island - Main Level

Large Kitchen Island Large Kitchen Island - Upper Level

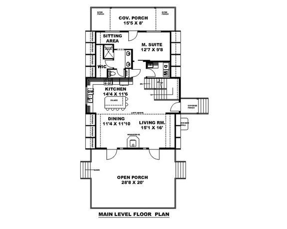
Bold curb appeal highlights the exterior of this A-frame cabin plan. We love the spacious open deck. Inside, the kitchen takes center stage with a big island that seats up to six. Nearby, a wood stove heats the dining room and the living area.

Here’s a cool detail: the main-level primary suite features a sitting area and access to a private covered porch. A second bedroom and a loft round out the second floor.

Three-Bedroom Modern Cabin Plan Three-Bedroom Modern Cabin Plan Three-Bedroom Modern Cabin Plan - Exterior

Three-Bedroom Modern Cabin Plan Three-Bedroom Modern Cabin Plan - Upper Level

Three-Bedroom Modern Cabin Plan Three-Bedroom Modern Cabin Plan - First Level

Here’s a stylish A-frame cabin design with the living spaces upstairs, making it great for a view lot. The heart of the home is the open living room and the kitchen, where there’s no shortage of counter space. Check out the living room balcony.

Two secondary bedrooms share a full bath on the first level, along with a large bedroom deck. On the right side of the plan, the primary suite shines with a walk-in closet and a private sundeck. The laundry room sits close by for extra convenience.

Cabin Plan with Fun Theater Space Cabin Plan with Fun Theater Space Cabin Plan with Fun Theater Space - Exterior

Cabin Plan with Fun Theater Space Cabin Plan with Fun Theater Space - Main Level

Cabin Plan with Fun Theater Space Cabin Plan with Fun Theater Space - Upper Level

Cabin Plan with Fun Theater Space Cabin Plan with Fun Theater Space - Lower Level

An open-concept floor plan maximizes space on the main level. A bedroom sits nearby, along with a covered porch, the laundry room, and a hall bath.

A bedroom suite rests upstairs and gives you access to a covered deck. Open to below, a loft could become a reading nook or a study. On the lower level, there’s plenty of room for storage in the two-car garage. A theater creates fun movie or game nights.

A-Frame Plan for Narrow Lot A-Frame Plan for Narrow Lot A-Frame Plan for Narrow Lot - Exterior

A-Frame Plan for Narrow Lot A-Frame Plan for Narrow Lot - Main Level

A-Frame Plan for Narrow Lot A-Frame Plan for Narrow Lot - Upper Level

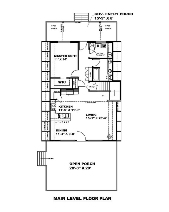
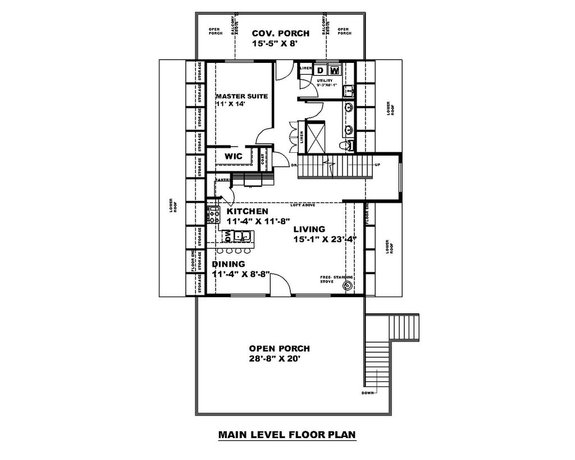
This petite A-frame cabin plan offers an efficient layout that makes the home feel bigger than it is. The U-shaped kitchen flows effortlessly into the breezy living room and the dining nook. A bedroom shows off a walk-in closet.

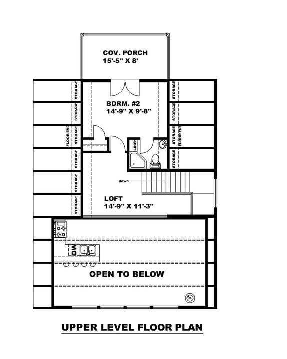
Take advantage of outdoor living on the front and rear porches. A flexible loft space, an additional bedroom, and a second-level porch complete this plan.

Tiny A-Frame Cabin Plan Tiny A-Frame Cabin Plan Tiny A-Frame Cabin Plan - Exterior

Tiny A-Frame Cabin Plan Tiny A-Frame Cabin Plan - Main Level

Tiny A-Frame Cabin Plan Tiny A-Frame Cabin Plan - Upper Level

Building on a budget? Take a look at this tiny A-frame cabin plan. The main level gives you a lounge area. The kitchen sits nearby.

Floor-to-ceiling windows capture the view, while a sundeck invites you to step outside and relax. A bathroom sits on this level, while the bedroom waits upstairs.

Discover more A-frame cabin plans.

Get Our Newsletter

Be the first to see new plans, special offers, and more.

By signing up for our newsletter, you agree to our Terms & Conditions and Privacy Policy, for an account

Blog Subscribe Icon