Blog Home > Walkout Basement House Plans to Maximize a Sloping Lot

The Houseplans Blog

Walkout Basement House Plans to Maximize a Sloping Lot

Maximize space with these walkout basement house plans.

Hero Image

May 16, 2022

Livabl Brand

Can't find what you're looking for?

Give us a call below or reach out and we’ll make sure to be in contact!

Send Us a Message

By Courtney Pittman

Building on a sloping lot? These walkout basement house plans maximize space and show off flexible lower levels. Casual open layouts, island kitchens, and plenty of outdoor spaces feel fresh and modern. Here are ten great ones to check out.

Want to see more? Discover our walkout basement house plans collection here.

Light-Filled and Modern

Light-Filled and Modern Light-Filled and Modern 25-4933 - Front Exterior

Light-Filled and Modern Light-Filled and Modern 25-4933 - Main Floor Plan

Light-Filled and Modern Light-Filled and Modern 25-4933 - Upper Floor Plan

Light-Filled and Modern Light-Filled and Modern 25-4933 - Lower Floor Plan

Light-filled and modern, this walkout basement house plan would fit nicely on a narrow lot. Inside, the main floor gives you a relaxed vibe with an open layout. The primary suite enjoys privacy on the second level.

Two more bedrooms reside on the lower floor. A generous balcony extends the living space.

Rustic House Plan with Open Layout

Rustic House Plan with Open Layout Rustic House Plan with Open Layout 932-611 - Front Exterior

Rustic House Plan with Open Layout Rustic House Plan with Open Layout 932-611 - Main Floor Plan

Rustic House Plan with Open Layout Rustic House Plan with Open Layout 932-611 - Lower Floor Plan

This cool, rustic exterior grabs your attention, while inside, the open floor plan feels bright and airy (take a look at these cabin decor ideas from Homes & Gardens). The main living areas enjoy direct access to the vaulted porch that runs along the side of the home. Located on the main floor, the primary suite gives you a big walk-in closet.

An additional bedroom (which also includes a walk-in closet), a full bath, an open family room, a kitchen, and lots of storage round out the lower level.

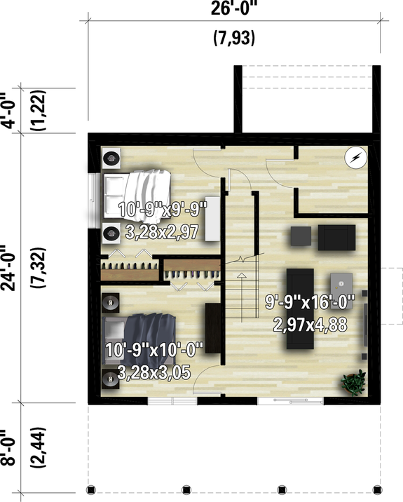
Small House Plan with Balcony

Small House Plan with Balcony Small House Plan with Balcony 23-2660 - Exterior

Small House Plan with Balcony Small House Plan with Balcony 23-2660 - Main Floor Plan

Small House Plan with Balcony Small House Plan with Balcony 23-2660 - Upper Floor Plan

Small House Plan with Balcony Small House Plan with Balcony 23-2660 - Lower Floor Plan

This small house plan packs a punch with clean lines and lots of windows. In the kitchen, an island adds casual eating space next to the dining area. The open great room features a warm fireplace and opens to the balcony via sliding glass doors.

Upstairs, two bedrooms share a full bath and access to the other balcony. The lower level opens up all kinds of possibilities.

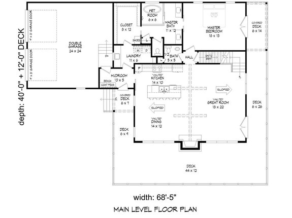
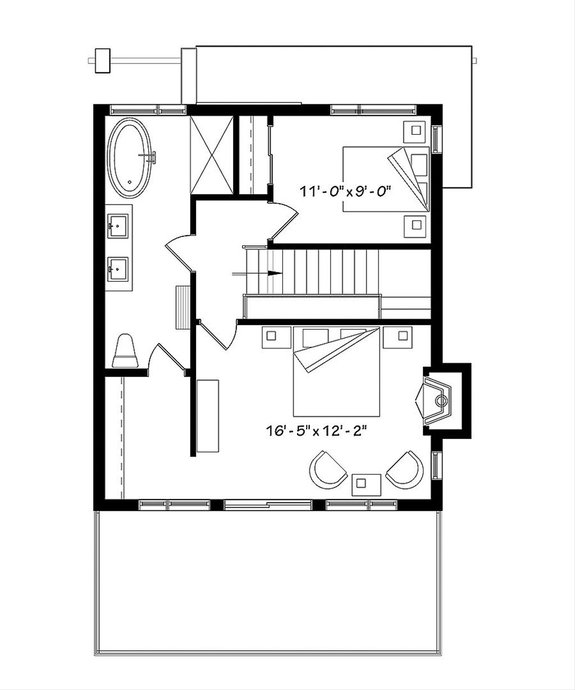
Country Style with Wraparound Porch

Country Style with Wraparound Porch Country Style with Wraparound Porch 932-34 - Front Exterior

Country Style with Wraparound Porch Country Style with Wraparound Porch 932-34 - Main Floor Plan

Country Style with Wraparound Porch Country Style with Wraparound Porch 932-34 - Upper Floor Plan

Country Style with Wraparound Porch Country Style with Wraparound Porch 932-34 - Lower Floor Plan

This walkout basement house plan gives you country style with a timeless wraparound porch. Highlights of the interior include an open floor plan, a handy mudroom, and a vaulted great room. The wide kitchen island offers a place to sit and enjoy quick meals.

We love the big walk-in closet in the primary suite (located on the main level). Two additional bedrooms share a full bath on the second floor. Need storage space? Check out the convenient lower level.

Cool Craftsman Vibes

Cool Craftsman Vibes Cool Craftsman Vibes 1057-20 - Front Exterior

Cool Craftsman Vibes Cool Craftsman Vibes 1057-20 - Main Floor Plan

Cool Craftsman Vibes Cool Craftsman Vibes 1057-20 - Lower Floor Plan

A spacious open layout awaits you inside this cool Craftsman house plan. We love the main-level primary suite, which gives you a relaxing tub, a modern shower, and direct access to the covered deck.

Two more bedrooms share a Jack-and-Jill bath on the lower floor. Don’t miss the open kitchen, the great room, and the dinette on this level.

Cabin Plan with Walkout Basement

Cabin Plan with Walkout Basement Cabin Plan with Walkout Basement 23-2023 - Exterior

Cabin Plan with Walkout Basement Cabin Plan with Walkout Basement 23-2023 - Main Floor Plan

Cabin Plan with Walkout Basement Cabin Plan with Walkout Basement 23-2023 - Upper Floor Plan

Cabin Plan with Walkout Basement Cabin Plan with Walkout Basement 23-2023 - Lower Floor Plan

A wraparound porch welcomes you to this three-bedroom cabin house plan. Inside, the living room opens up to the kitchen. Everything has a place in the handy mudroom near the front. A bedroom and a full bath reside on this level. Upstairs, a versatile loft could become a home office (check out these home office makeovers from Apartment Therapy).

The lower level gives you two additional bedrooms, another bathroom, and a family room.

Modern Details

Modern Details Modern Details 117-900 - Exterior

Modern Details Modern Details 117-900 - Main Floor Plan

Modern Details Modern Details 117-900 - Upper Floor Plan

Modern Details Modern Details 117-900 - Lower Floor Plan

Lots of windows let light stream into this Craftsman house plan. The kitchen features an island that’s handy for quick meals. Two walk-in closets in the primary suite keep clothes well-organized. A versatile guest suite gives your visitors a comfortable place to stay.

Upstairs, a loft overlooks the spacious great room. The lower floor plan gives you more possibilities with an unfinished basement.

Impressive Windows

Impressive Windows Impressive Windows 23-2713 - Exterior

Impressive Windows Impressive Windows 23-2713 - Main Floor Plan

Impressive Windows Impressive Windows 23-2713 - Lower Floor Plan

Here’s an eye-catching plan with great outdoor living and an open layout. Shared living spaces include the island kitchen, the dining area, and the nearby living room. Stash all of your heavy winter coats in the spacious mudroom.

Three bedrooms, a full bath, and a family room occupy the lower level. Check out the storage space under the stairs.

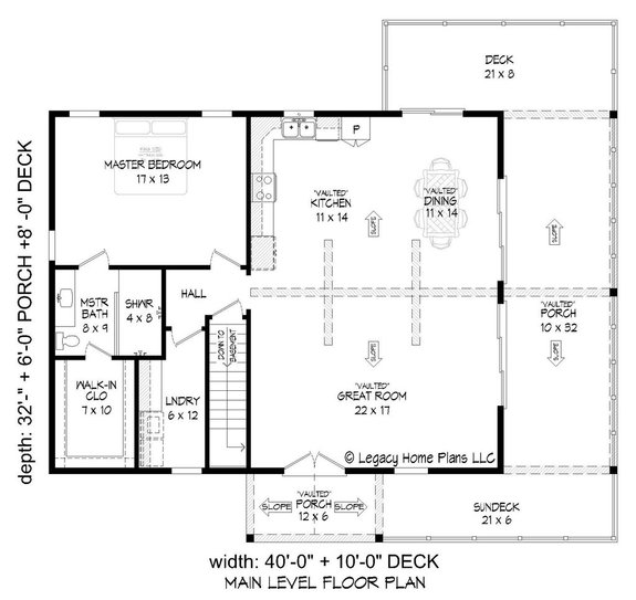
Luxe Primary Suite

Luxe Primary Suite Luxe Primary Suite 932-426 - Front Exterior

Luxe Primary Suite Luxe Primary Suite 932-426 - Main Floor Plan

Luxe Primary Suite Luxe Primary Suite 932-426 - Upper Floor Plan

Luxe Primary Suite Luxe Primary Suite 932-426 - Lower Floor Plan

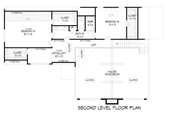
This handsome design gives you a seamless layout and plenty of space for outdoor living. Special details include a smart mudroom, lots of storage (check out the primary closet), and an office/loft space.

The open kitchen takes center stage with a big island. An impressive wet room highlights the primary suite. Two more bedrooms and one-and-a-half baths complete this house plan.

Cozy Retreat

Cozy Retreat Cozy Retreat 45-591 - Front Exterior

Cozy Retreat Cozy Retreat 45-591 - Main Floor Plan

Cozy Retreat Cozy Retreat 45-591 - Upper Floor Plan

Cozy Retreat Cozy Retreat 45-591 - Lower Floor Plan

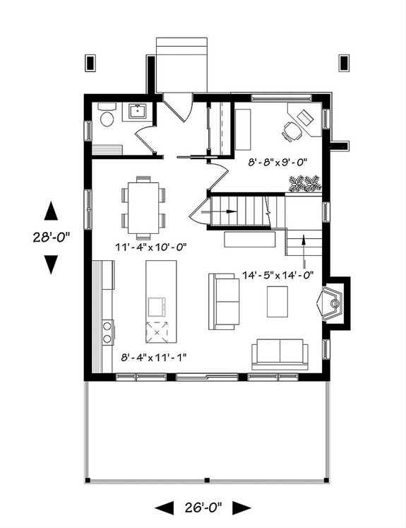
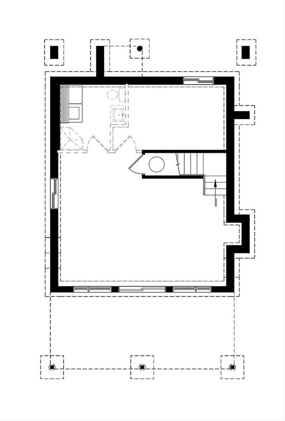
The front porch delivers curb appeal to this Craftsman-style home. A fireplace warms the great room, which opens to the kitchen’s curved counter. The primary suite is located on the main level for convenience.

A loft space with its own bathroom is located on the second floor. The lower level would make a comfortable retreat for a young adult or visitors, compete with cooking space.

Explore the walkout basement house plans collection here.

Get Our Newsletter

Be the first to see new plans, special offers, and more.

By signing up for our newsletter, you agree to our Terms & Conditions and Privacy Policy, for an account

Blog Subscribe Icon