Don't lose your saved plans! 
Create an account to access your saves whenever you want. See our Terms & Conditions and Privacy Policy.
OR

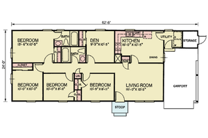
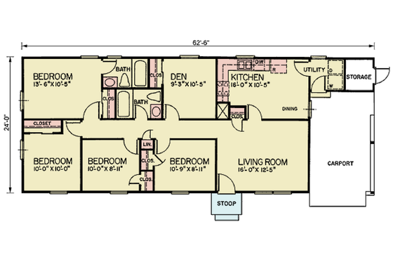
Bungalow House Plan 54-604 1266 Sq Ft, 4 Bed, 2 Bath, 1 Floor, 1 Garage

3D icon
Get Personalized Help
Key Specs
  • 4
    Beds
  • 2
    Baths
  • 1
    Floors
  • 1
    Garages
  • 1266
    Square Feet
This 1,266 sq ft single-story home offers a functional and flexible design perfect for families, downsizers, or anyone seeking efficient living. With four bedrooms and two full bathrooms, it comfortably accommodates a variety of lifestyles. The layout includes a cozy den for relaxing or gathering, a private first-floor main suite, and a utility room for added convenience. At just 13'7" in height, this home maintains a low profile while offering essential features within a compact 63' x 28' footprint. Outside, a 257 sq ft front-load carport provides covered parking, and a small stoop offers a simple yet welcoming entry. Built with 2x4 framing, stick-framed roof construction, and a gentle 5:12 pitch, the home is practical and cost-effective. Thoughtful touches like dedicated storage space and an efficient layout make this home a great fit for those who value simplicity without sacrificing comfort.

Questions on this plan?

New to the process and looking for some help to kick things off? Let us know a bit about your plans and we’ll be happy to help.

Budget & Customization Tools

Modify icon
Customize this Plan
Tell us about your desired changes and we can prepare an estimate.
Cost to Build icon
Cost to Build Report
A personalized estimate based on your location, plan, & materials.
Cost to Build icon
Residential Construction Guide
This downloadable, 26-page guide is full of diagrams and details about plumbing, electrical, and more.

Full specs & Features

Basic Features

Bedrooms: 4
Baths: 2
Stories: 1
Garages: 1

Dimension

Depth: 28'
Height: 14'
Width: 63'

Area

Total: 1266 sq/ft
Garage: 257 sq/ft
Main Floor: 1266 sq/ft
Porch: 21 sq/ft
* Total Square Footage typically only includes conditioned space and does not include garages, porches, bonus rooms, or decks.

Ceiling

Main Ceiling: 8'

Roof

Primary Pitch: 5:12
Roof Framing: Stick

Exterior Wall Framing

Exterior Wall Finish: Siding
Framing: 2x4
Insulation: PER IRC REQUIREMENTS

Bedroom Features

Main Floor Master Bedroom
Walk In Closet

Kitchen Features

Walk In Pantry Cabinet Pantry

Additional Room Features

Den Office Study Computer
Family Room Keeping Room
Storage Area

Garage Features

Carport Porte Cochere
Front Entry Garage

Outdoor Spaces

Covered Front Porch

More

Economical To Build

Energy Efficient Features

Energy Efficient Design

What's Included

All plans are drawn at ¼” scale or larger and include :
  • Foundation Plan: Drawn to 1/4" scale, this page shows all necessary notations and dimensions including support columns, walls and excavated and unexcavated areas.
  • Exterior Elevations: A blueprint picture of all four sides showing exterior materials and measurements.
  • Floor Plan(s): Detailed plans, drawn to 1/4" scale for each level showing room dimensions, wall partitions, windows, etc. as well as the location of electrical outlets and switches.
  • Cross Section: A vertical cutaway view of the house from roof to foundation showing details of framing, construction, flooring and roofing.
  • Interior Elevations: Detailed drawings of kitchen cabinet elevations and other elements as required.

FAQs

Are designs on Houseplans ready to submit to my building department for permitting?

It depends on where you're building. Our plans contain enough information for a professional builder to construct your home, but your local government may require additional information before permitting. We strongly advise that you talk with your builder before you get started. If you are building for yourself, we recommend visiting your local building department to start your diligence. Read more here.

Can I make changes to a plan?

Absolutely! Our modification service allows you to customize almost anything - whether it's adding an extra garage bay, adjusting square footage, changing the roof pitch, or more, the plan modification service is a great value and can be completed quickly. Additionally, if you purchase an electronic plan set (PDF or CAD), you may have the option to make changes locally. CAD files offer the most flexibility for custom edits. Just let us know what you're thinking, and we’ll provide an estimate and timeframe to get started. Learn more here.

How much does a house cost to build?

Find out! Build costs vary based on the size of the home, materials used, and local rates for goods and labor. Our Cost to Build report is a great way to get some basic costs dialed in before you order your plans. Just plug in your postal code, select your desired construction quality, and we'll calculate for you.

Learn more about Cost to Build reports here.

Can I trust Houseplans?

Founded in 2004, Houseplans works with hundreds of architects and designers to offer their plans at a fraction of the price of custom design. Houseplans has an "Excellent" rating on TrustPilot.

Read more about us here.

Does Houseplans offer live support?

Yes, Houseplans has a dedicated team of house plan advisors with decades of experience between them. You can reach them by calling, emailing, filling out a form on the page of a plan that you like, or going to the Contact Us page. We're available to talk every day, even on weekends.

Builder Advantage Home

Builder Advantage Program

Are you a Pro Builder? Join the club, save 5% on your first order, get exclusive discounts, and more.

Learn More