Don't lose your saved plans! 
Create an account to access your saves whenever you want. See our Terms & Conditions and Privacy Policy.
OR

Cottage House Plan 118-103 1470 Sq Ft, 2 Bed, 2 Bath, 0 Floor, 0 Garage

Key Specs
  • 2
    Beds
  • 2
    Baths
  • 0
    Floors
  • 0
    Garages
  • 1470
    Square Feet
This cottage design floor plan is 1470 sq ft and has 2 bedrooms and 2 bathrooms.

Questions on this plan?

New to the process and looking for some help to kick things off? Let us know a bit about your plans and we’ll be happy to help.

Budget & Customization Tools

Modify icon
Customize this Plan
Tell us about your desired changes and we can prepare an estimate.
Cost to Build icon
Cost to Build Report
A personalized estimate based on your location, plan, & materials.
Cost to Build icon
Residential Construction Guide
This downloadable, 26-page guide is full of diagrams and details about plumbing, electrical, and more.

Full specs & Features

Basic Features

Bedrooms: 2
Baths: 2
Stories: 0
Garages: 0

Dimension

Depth: 28'
Height: 23'
Width: 51'

Area

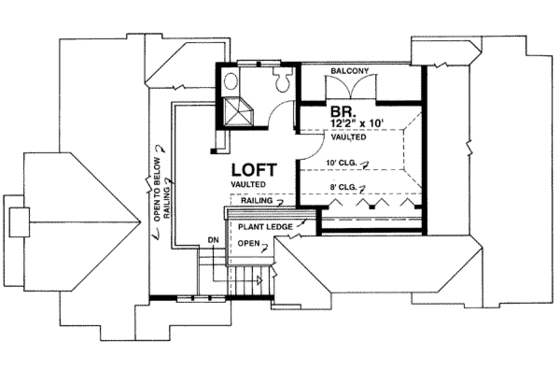
Total: 1470 sq/ft
Main Floor: 1130 sq/ft
Upper Floor: 340 sq/ft
* Total Square Footage typically only includes conditioned space and does not include garages, porches, bonus rooms, or decks.

Ceiling

Main Ceiling: 8'
Upper Ceiling Ft: 8'

Roof

Primary Pitch: 10:12

Exterior Wall Framing

Framing: 2"x6"

Bedroom Features

Main Floor Master Bedroom
Walk In Closet

Kitchen Features

Kitchen Island

Additional Room Features

Great Room Living Room
Loft

Lot Characteristics

Suited For View Lot

Outdoor Spaces

Balcony
Grill Deck Sundeck

More

Suited For Vacation Home

What's Included

Plans are typically drawn to ¼” scale and include:
  • Cover Sheet: Cover sheet with rendering and art floor plans
  • Foundation Plan(s): This page shows all necessary notations and dimensions including footings, support columns, walls, and excavated/unexcavated areas.
  • Floor Plan(s): Detailed plans for each level showing room dimensions, wall partitions, windows and doors, fixture locations, and ceiling treatments.
  • Exterior Elevations: Views of the home from all four sides showing exterior materials, roof slope, ridge heights, siding and trim notes.
  • Overhead Roof Plan(s): A view of the home from above showing roof pitch, peaks, valleys, and other details.
  • Cross Section(s): A slice of the home from roof to foundation, showing relationships between floors, roof, and foundation.
  • Electrical Plan(s): Electrical fixtures / switches / smoke alarms by location only on floor plans.
  • Detail Sheet(s): Details as required.
  • Construction Notes / Detail(s): Shows basic parts and assemblies recommended for the home so the builder can see how things come together.
  • Structural Information: Structural floor / roof information indicated either on the floor plans or separate framing plans for complicated designs. Important: design loads and weather conditions vary by region. As a result the size, spacing, and layout of all structural elements in this home design may need approval by a structural engineer or code official based on your specific site location.
  • Site Plan(s): Site plan at 1/8″=1′-0″ or 1/4″= 1′-0″
Other notes: Plans are engineered by a structural engineer, but not stamped or sealed; you may need to update for your location. Ground snow load 40 psf. (or composite roof live load 32 psf, dead load 10 psf for total roof design load 42 psf). Floor live load 40 psf. Assumed soil bearing capacity 1560 psf. Windows are called out as generic nominal sizes on floor plans, opening directions indicated on elevations.

FAQs

Are designs on Houseplans ready to submit to my building department for permitting?

It depends on where you're building. Our plans contain enough information for a professional builder to construct your home, but your local government may require additional information before permitting. We strongly advise that you talk with your builder before you get started. If you are building for yourself, we recommend visiting your local building department to start your diligence. Read more here.

Can I make changes to a plan?

Absolutely! Our modification service allows you to customize almost anything - whether it's adding an extra garage bay, adjusting square footage, changing the roof pitch, or more, the plan modification service is a great value and can be completed quickly. Additionally, if you purchase an electronic plan set (PDF or CAD), you may have the option to make changes locally. CAD files offer the most flexibility for custom edits. Just let us know what you're thinking, and we’ll provide an estimate and timeframe to get started. Learn more here.

How much does a house cost to build?

Find out! Build costs vary based on the size of the home, materials used, and local rates for goods and labor. Our Cost to Build report is a great way to get some basic costs dialed in before you order your plans. Just plug in your postal code, select your desired construction quality, and we'll calculate for you.

Learn more about Cost to Build reports here.

Can I trust Houseplans?

Founded in 2004, Houseplans works with hundreds of architects and designers to offer their plans at a fraction of the price of custom design. Houseplans has an "Excellent" rating on TrustPilot.

Read more about us here.

Does Houseplans offer live support?

Yes, Houseplans has a dedicated team of house plan advisors with decades of experience between them. You can reach them by calling, emailing, filling out a form on the page of a plan that you like, or going to the Contact Us page. We're available to talk every day, even on weekends.

Builder Advantage Home

Builder Advantage Program

Are you a Pro Builder? Join the club, save 5% on your first order, get exclusive discounts, and more.

Learn More

You may also like

Save Plan
Cottage

Plan 515-56

$650.00

beds2

bd

baths2

ba

stories1

story

square feet838

sq ft

View Related Collections
Shop All Styles

Recently viewed plans

Photo for Cottage House Plan #118-103 - 2 bed, 2 bath
Save Plan

Plan 118-103

$945.00

beds2

bd

baths2

ba

stories0

stories

square feet1470

sq ft

Exterior - Front Elevation for Bungalow House Plan #423-1 - 3 bed, 2.5 bath
Save Plan

Plan 423-1

$735.00

beds3

bd

baths2.5

ba

stories2

stories

square feet1669

sq ft

Exterior - Front Elevation for Traditional House Plan #78-102 - 4 bed, 2.5 bath
Save Plan

Plan 78-102

$675.00

beds4

bd

baths2.5

ba

stories2

stories

square feet2295

sq ft

Signature
Exterior - Front Elevation for Ranch House Plan #427-6 - 3 bed, 2 bath
Save Plan

Plan 427-6

$897.60

beds3

bd

baths2

ba

stories1

story

square feet1924

sq ft