Don't lose your saved plans! 
Create an account to access your saves whenever you want. See our Terms & Conditions and Privacy Policy.
OR

Traditional House Plan 30-361 1572 Sq Ft, 3 Bed, 2 Bath, 2 Floor, 2 Garage

Key Specs
  • 3
    Beds
  • 2
    Baths
  • 2
    Floors
  • 2
    Garages
  • 1572
    Square Feet
You'll be welcomed into this compact bungalow via the sheltered Portico, then into the cozy Foyer. The expansive spaciousness says, "Oooh, but me oh my!" The vaulted Living Room soars upward and leads everyone into the home where the warm hearth beacons hospitality to one and all. When invited beyond, to the Dining, hospitality is assured by the Kitchen, conveniently adjacent, where repast may be enjoyed with the ample light and views provided by the surrounding windows and bays. The Dining may have a high vaulted ceiling, or it may be capped with the ceiling of an optional Loft above (see plans for details). More privately, beyond the Kitchen, the Master Suite affords relaxation, and comfort without climbing stairs, yet close to the center of the home. Its Walk-in Closet offers ample storage. The full, en-suite Main Bath allows full utilization, while its dual access enables guest availability to the "Powder Room" functions without intruding into the owners' privacy. Heading up the stairs, there are two Bedrooms and a hall Bath. There is also an optional 203 square foot Loft. It may be left un-built, so that the Dining below is open to the high volume ceiling, or it may be framed as a Loft with a floor and a rail overlooking the Living Room below. It may be enclosed, as well, for an optional third Bedroom, although that will add 203 square feet to the overall size of the house. This is such a flexible design — wouldn't you love to build it for yourself?

Questions on this plan?

New to the process and looking for some help to kick things off? Let us know a bit about your plans and we’ll be happy to help.

Budget & Customization Tools

Modify icon
Customize this Plan
Tell us about your desired changes and we can prepare an estimate.
Cost to Build icon
Cost to Build Report
A personalized estimate based on your location, plan, & materials.
Cost to Build icon
Residential Construction Guide
This downloadable, 26-page guide is full of diagrams and details about plumbing, electrical, and more.

Full specs & Features

Basic Features

Bedrooms: 3
Baths: 2
Stories: 2
Garages: 2

Dimension

Depth: 44'
Width: 42'

Area

Total: 1572 sq/ft
Basement: 1096 sq/ft
Decks: 256 sq/ft
Garage: 400 sq/ft
Main Floor: 1096 sq/ft
Optional Bonus Room: 267 sq/ft
Porch: 120 sq/ft
Storage: 18 sq/ft
Upper Floor: 476 sq/ft
* Total Square Footage typically only includes conditioned space and does not include garages, porches, bonus rooms, or decks.

Ceiling

Ceiling Details: Vaulted ceiling Living, Vaulted ceiling in Dining unless Loft option is chosen
Main Ceiling: 8' 1"
Upper Ceiling Ft: 8' 1"

Roof

Primary Pitch: 9:12
Roof Framing: 2x
Roof Type: truss, stick

Exterior Wall Framing

Exterior Wall Finish: siding
Framing: 2x4
Insulation: batt

Bedroom Features

Main Floor Master Bedroom
Split Bedrooms
Upstairs Bedrooms
Walk In Closet

Kitchen Features

Eating Bar
Walk In Pantry Cabinet Pantry

Additional Room Features

Great Room Living Room
Loft
Main Floor Laundry
Storage Area
Unfinished Future Space

Garage Features

Front Entry Garage

Lot Characteristics

Suited For Corner Lot
Suited For Narrow Lot
Suited For Sloping Lot

Outdoor Spaces

Covered Front Porch

What's Included

All plans are drawn at ¼” scale or larger and include :

  • Foundation Plan: This page shows all necessary notations and dimensions including support columns, walls, and excavated/unexcavated areas.
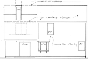
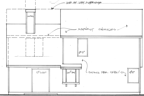
  • Exterior Elevations: Views of the home from all four sides showing exterior materials and measurements.
  • Floor Plan(s): Detailed plans for each level showing room dimensions, wall partitions, windows and doors, etc.
  • Cross Section: A slice of the home from roof to foundation, showing important details like stairs and wall construction.
  • Overhead Roof Plan(s): A view of the home from above showing roof pitch, peaks, valleys, and other details.
  • Construction Notes and Details: Shows the builder how things come together, like walls, the chimney, insulation, and more.

FAQs

Are designs on Houseplans ready to submit to my building department for permitting?

It depends on where you're building. Our plans contain enough information for a professional builder to construct your home, but your local government may require additional information before permitting. We strongly advise that you talk with your builder before you get started. If you are building for yourself, we recommend visiting your local building department to start your diligence. Read more here.

Can I make changes to a plan?

Absolutely! Our modification service allows you to customize almost anything - whether it's adding an extra garage bay, adjusting square footage, changing the roof pitch, or more, the plan modification service is a great value and can be completed quickly. Additionally, if you purchase an electronic plan set (PDF or CAD), you may have the option to make changes locally. CAD files offer the most flexibility for custom edits. Just let us know what you're thinking, and we’ll provide an estimate and timeframe to get started. Learn more here.

How much does a house cost to build?

Find out! Build costs vary based on the size of the home, materials used, and local rates for goods and labor. Our Cost to Build report is a great way to get some basic costs dialed in before you order your plans. Just plug in your postal code, select your desired construction quality, and we'll calculate for you.

Learn more about Cost to Build reports here.

Can I trust Houseplans?

Founded in 2004, Houseplans works with hundreds of architects and designers to offer their plans at a fraction of the price of custom design. Houseplans has an "Excellent" rating on TrustPilot.

Read more about us here.

Does Houseplans offer live support?

Yes, Houseplans has a dedicated team of house plan advisors with decades of experience between them. You can reach them by calling, emailing, filling out a form on the page of a plan that you like, or going to the Contact Us page. We're available to talk every day, even on weekends.

Builder Advantage Home

Builder Advantage Program

Are you a Pro Builder? Join the club, save 5% on your first order, get exclusive discounts, and more.

Learn More

You may also like

Save Plan
Traditional

Plan 20-2346

$1305.00

beds4

bd

baths2.5

ba

stories2

stories

square feet2257

sq ft

Save Plan
Craftsman

Plan 126-236

$1195.00

beds2

bd

baths2

ba

stories1

story

square feet988

sq ft

Save Plan
Country

Plan 427-1

$897.60

beds3

bd

baths2.5

ba

stories2

stories

square feet1908

sq ft

Recently viewed plans

Exterior - Front Elevation for Traditional House Plan #30-361 - 3 bed, 2 bath
Save Plan

Plan 30-361

$1150.00

beds3

bd

baths2

ba

stories2

stories

square feet1572

sq ft