Don't lose your saved plans! 
Create an account to access your saves whenever you want. See our Terms & Conditions and Privacy Policy.
OR

Contemporary House Plan 23-2040 1574 Sq Ft, 3 Bed, 2 Bath, 1 Floor, 0 Garage

Key Specs
  • 3
    Beds
  • 2
    Baths
  • 1
    Floors
  • 0
    Garages
  • 1574
    Square Feet
This contemporary design floor plan is 1574 sq ft and has 3 bedrooms and 2 bathrooms.

Questions on this plan?

New to the process and looking for some help to kick things off? Let us know a bit about your plans and we’ll be happy to help.

Budget & Customization Tools

Modify icon
Customize this Plan
Tell us about your desired changes and we can prepare an estimate.
Cost to Build icon
Cost to Build Report
A personalized estimate based on your location, plan, & materials.
Cost to Build icon
Residential Construction Guide
This downloadable, 26-page guide is full of diagrams and details about plumbing, electrical, and more.

Full specs & Features

Basic Features

Bedrooms: 3
Baths: 2
Stories: 1
Garages: 0

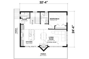
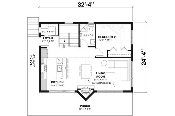
Dimension

Depth: 24' 4"
Height: 24'
Width: 32' 4"

Area

Total: 1574 sq/ft
Basement Living: 787 sq/ft
First Floor: 787 sq/ft height 8'
* Total Square Footage typically only includes conditioned space and does not include garages, porches, bonus rooms, or decks.

Ceiling

Ceiling Details: Cathedral ceiling
Main Ceiling: 8'
Upper Ceiling Ft: 8'

Roof

Primary Pitch: 7:12
Roof Framing: Truss

Exterior Wall Framing

Exterior Wall Finish: Siding
Framing: 2"x6"

Additional Room Features

Family Room Keeping Room
Great Room Living Room
Storage Area

Lot Characteristics

Suited For Narrow Lot
Suited For Sloping Lot
Suited For View Lot

Rooms

3rd BR Closet:

8 sq/ft width 4' x depth 2'

Bathroom 2:

77 sq/ft width 9' 8" x depth 8'

Bedroom 2:

126 sq/ft width 14' x depth 9'

Bedroom 2 Closet:

10 sq/ft width 5' x depth 2'

Bedroom 3:

113 sq/ft width 10' x depth 11' 4"

Bedroom 3 Closet:

10 sq/ft width 5' x depth 2'

Dining Room:

147 sq/ft width 13' x depth 11' 4"

Foyer:

28 sq/ft width 4' 8" x depth 6'

Hall:

18 sq/ft width 3' x depth 6'

Hall Closet:

14 sq/ft width 4' 8" x depth 3'

Living Room:

203 sq/ft width 18' x depth 11' 4"

Master Bathroom:

42 sq/ft width 7' x depth 6'

Master Bedroom:

113 sq/ft width 10' x depth 11' 4"

Master Closet:

12 sq/ft width 2' x depth 6'

Porch - Front:

217 sq/ft width 36' 4" x depth 6'

Storage:

86 sq/ft width 7' 8" x depth 11' 4"

Wash Room:

15 sq/ft width 3' x depth 5'

What's Included

Important This designer may need 5-7 business days to update the plan content when an order is placed. Please call to confirm your order details.


Plans are typically drawn to ¼” scale and include:
  • Foundation Plan(s): Foundation plans typically include: All exterior / interior dimensions, thickness of foundation walls (if variable), all structural details, location of stairwell, location and size of windows and location / dimensions of footings (where applicable and required)
  • Floor Plan(s): Floor plans typically include: All interior / exterior dimensions (included but not as a schedule), location and sizes of doors / windows, indication of the structure above (second floor or roof), indication that details are on other pages
  • Exterior Elevations: Front, rear, left & right sides) typically include: Floor/ceiling heights, dimensions of standard windows & roof overhangs, location of all needed flashings, height and location of foundation, type of finishing and textures, dimensions of chimney,
  • Overhead Roof Plan(s): Roof plans typically include: location of all the different trusses, general overcharge of the roof compared to the floor footprint.
  • Cross Section(s): A slice of the home from roof to foundation, showing relationships between floors, roof, and foundation.
  • Construction Notes / Detail(s): Details typically include: Roof sections, sections of concrete wall with wood connection, sections of walls with particular called out, section of concrete porch and connection with wood frame, foundation particulars, wall components.
  • Wall Section(s): Wall sections typically include: All the details and components needed in construction.
NOTE: This plan does not included HVAC, electrical and plumbing.

*** Please note that some plans from this designer may be delayed 5-7 days as they are updating plan content. ***

FAQs

Are designs on Houseplans ready to submit to my building department for permitting?

It depends on where you're building. Our plans contain enough information for a professional builder to construct your home, but your local government may require additional information before permitting. We strongly advise that you talk with your builder before you get started. If you are building for yourself, we recommend visiting your local building department to start your diligence. Read more here.

Can I make changes to a plan?

Absolutely! Our modification service allows you to customize almost anything - whether it's adding an extra garage bay, adjusting square footage, changing the roof pitch, or more, the plan modification service is a great value and can be completed quickly. Additionally, if you purchase an electronic plan set (PDF or CAD), you may have the option to make changes locally. CAD files offer the most flexibility for custom edits. Just let us know what you're thinking, and we’ll provide an estimate and timeframe to get started. Learn more here.

How much does a house cost to build?

Find out! Build costs vary based on the size of the home, materials used, and local rates for goods and labor. Our Cost to Build report is a great way to get some basic costs dialed in before you order your plans. Just plug in your postal code, select your desired construction quality, and we'll calculate for you.

Learn more about Cost to Build reports here.

Can I trust Houseplans?

Founded in 2004, Houseplans works with hundreds of architects and designers to offer their plans at a fraction of the price of custom design. Houseplans has an "Excellent" rating on TrustPilot.

Read more about us here.

Does Houseplans offer live support?

Yes, Houseplans has a dedicated team of house plan advisors with decades of experience between them. You can reach them by calling, emailing, filling out a form on the page of a plan that you like, or going to the Contact Us page. We're available to talk every day, even on weekends.

Builder Advantage Home

Builder Advantage Program

Are you a Pro Builder? Join the club, save 5% on your first order, get exclusive discounts, and more.

Learn More

You may also like

Save Plan
Contemporary

Plan 938-119

$2195.00

beds3

bd

baths3.5

ba

stories1

story

square feet3083

sq ft

Save Plan
Cabin

Plan 1108-9

$1300.00

beds3

bd

baths2.5

ba

stories3

stories

square feet1815

sq ft

Recently viewed plans

Exterior - Front Elevation for Contemporary House Plan #23-2040 - 3 bed, 2 bath
Save Plan

Plan 23-2040

$1555.00

beds3

bd

baths2

ba

stories1

story

square feet1574

sq ft