Country Style House Plan - 3 Beds 2.5 Baths 1772 Sq/Ft Plan #23-2670 - Houseplans.com
Search
REGISTER LOGIN SAVED No Saved Plans CART  Cart Empty
Don't lose your saved plans! Create an account to access your saves whenever you want. See our Terms & Conditions and Privacy Policy.
OR
15% OFF FOR THE FIRST 25 CUSTOMERS
Plan 23-2670
Photographs may show modified designs.
Home  >  Style  >  Country

Country House Plan 23-2670

Key Specs


Plan Sq Ft

1772
sq ft

Plan Bedrooms

3
Beds

Plan Bathrooms

2.5
Baths

Plan Floors

2
Floors

Plan Garages

0
Garages

Questions? Get Personalized Help
Select Plan Set Options
What's included?
$225.25
Additional Construction Sets$63.75/each

Additional hard copies of the plan (can be ordered at the time of purchase and within 90 days of the purchase date).

$140.25
$250.75
$33.15
$140.25
Subtotal
NOW $1428.00
You save $252.00
(15% savings)
Sale ends soon!
Best Price Guaranteed

Or order by phone: 1-800-913-2350
Questions? Get Personalized Help
 

 
Hours:
Ready for Your Call 7 Days a Week
Every Day 7 am - 8:30 pm Eastern

See Terms & Conditions and Privacy Policy.

Thanks for your question.

We will be in touch shortly.

Wow!
Cost to Build Reports
$1.99 with Code
CTB2026 (Limit 1)
Our Cost to Build Report gives you a personalized estimate for building your home, based on your location, plan, and materials.

Residential Construction Guide

Learn Building Basics

This downloadable, 26-page guide is full of diagrams and details about plumbing, electrical, and more.

Key Specs


Plan Sq Ft

1772
sq ft

Plan Bedrooms

3
Beds

Plan Bathrooms

2.5
Baths

Plan Floors

2
Floors

Plan Garages

0
Garages

Plan Description


This country design floor plan is 1772 sq ft and has 3 bedrooms and 2.5 bathrooms.

This plan can be customized!

Tell us about your desired changes so we can prepare an estimate for the design service. Click the button to submit your request for pricing, or call 1-800-913-2350.

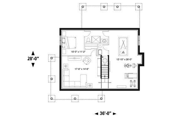
Floor Plans


Floor Plan - Main Floor

Reverse
houseplans LOGO

BUILDER Advantage Program

PRO BUILDERS

Join the club and save 5% on your first order.
PLUS download exclusive discounts and more.

LEARN MORE

Floor Plan - Upper Floor

Reverse

Floor Plan - Lower Floor

Reverse

Full Specs & Features


Basic Features

Bedrooms : 3
Baths : 2.5
Stories: 2
Garages: 0

Dimension

Depth : 28'
Height : 27' 4"
Width : 36'

Area

Total : 1772 sq/ft
Basement : 1020 sq/ft
Garage : 402 sq/ft
Main Floor : 1020 sq/ft
Upper Floor : 752 sq/ft
* Total Square Footage typically only includes conditioned space and does not include garages, porches, bonus rooms, or decks.

Ceiling

Main Ceiling : 8'
Upper Ceiling Ft : 8'

Roof

Primary Pitch : 12:12
Roof Framing : Truss
Roof Type : Metal
Secondary Pitch : 3:12 & 4:12

Exterior Wall Framing

Exterior Wall Finish : Siding
Framing : 2 x 6

Bedroom Features

Split Bedrooms
Upstairs Bedrooms
Upstairs Master Bedrooms
Walk In Closet

Kitchen Features

Eating Bar
Kitchen Island
Walk In Pantry Cabinet Pantry

Additional Room Features

Great Room Living Room
Main Floor Laundry

Lot Characteristics

Suited For Narrow Lot

Outdoor Spaces

Covered Front Porch
Covered Rear Porch

More

Economical To Build

What's included in this plan set


See a sample plan set
Important This designer may need 5-7 business days to update the plan content when an order is placed. Please call to confirm your order details.


Plans are typically drawn to ¼” scale and include:
  • Foundation Plan(s): Foundation plans typically include: All exterior / interior dimensions, thickness of foundation walls (if variable), all structural details, location of stairwell, location and size of windows and location / dimensions of footings (where applicable and required)
  • Floor Plan(s): Floor plans typically include: All interior / exterior dimensions (included but not as a schedule), location and sizes of doors / windows, indication of the structure above (second floor or roof), indication that details are on other pages
  • Exterior Elevations: Front, rear, left & right sides) typically include: Floor/ceiling heights, dimensions of standard windows & roof overhangs, location of all needed flashings, height and location of foundation, type of finishing and textures, dimensions of chimney,
  • Overhead Roof Plan(s): Roof plans typically include: location of all the different trusses, general overcharge of the roof compared to the floor footprint.
  • Cross Section(s): A slice of the home from roof to foundation, showing relationships between floors, roof, and foundation.
  • Construction Notes / Detail(s): Details typically include: Roof sections, sections of concrete wall with wood connection, sections of walls with particular called out, section of concrete porch and connection with wood frame, foundation particulars, wall components.
  • Wall Section(s): Wall sections typically include: All the details and components needed in construction.
NOTE: This plan does not included HVAC, electrical and plumbing.

*** Please note that some plans from this designer may be delayed 5-7 days as they are updating plan content. ***
* See important information before purchasing

Pricing


Plan Options

PDF Set

Best Value!
$1428.00
PDF plan sets are best for fast electronic delivery and inexpensive local printing.

Three Copy and PDF Set

$1547.00
3 printed plan sets mailed to you plus PDF plan sets are best for fast electronic delivery and inexpensive local printing.

CAD Set

$2278.00
For use by design professionals to make substantial changes to your house plan and inexpensive local printing.

Foundation Options

Basement

$0.00
Ideal for level lot, lower level of home partially or fully underground.

Crawlspace

$382.50
Ideal for semi-sloped or level lot, home can be built off of grade, typically 18” - 48”.

Floating Slab

$382.50
A concrete slab that covers the ground with no anchoring, it simply floats. Typical for garages and workshop plans.

Monolithic Slab

$382.50
A single concrete pour with thicker portions that replace footers under load bearing walls and all perimeter edges.

Slab

$382.50
Ideal for level lot, single layer concrete poured directly on grade.

*Options with a fee may take time to prepare. Please call to confirm.

Additional Options

Right-Reading Reverse

$225.25
Choose this option to reverse your plans and to have the text and dimensions readable.

Additional Construction Sets

$63.75
Additional hard copies of the plan (can be ordered at the time of purchase and within 90 days of the purchase date).

Audio Video Design

$140.25
Receive an overlay sheet with suggested placement of audio and video components.

Comprehensive Material List

$250.75
A complete list of building supplies needed to construct the infrastructure of your new house, plus an overlay of materials shown directly on your PDF (foundation to rooftop with interior and exterior materials), and a detailed, itemized door and window schedule showing all sizes and types. Please allow 5-7 Business Days for completion. Note, the Comprehensive list is only available with a PDF purchase. The Comprehensive list can be ordered no matter what additional plan options you have selected.

Construction Guide

$33.15
Educate yourself about basic building ideas with these four detailed diagrams that discuss electrical, plumbing, mechanical, and structural topics.

Lighting Design

$140.25
Receive an overlay sheet with suggested placement of lighting fixtures.

*Options with a fee may take time to prepare. Please call to confirm.

Unless you buy an “unlimited” plan set or a multi-use license you may only build one home from a set of plans. Please call to verify if you intend to build more than once. Plan licenses are non-transferable and cannot be resold.

Other Plans By This Designer

See all plans by
this designer

Need help? Let our friendly experts help you find the perfect plan!

Contact us now for a free consultation.