Modern Style House Plan - 3 Beds 3.5 Baths 1937 Sq/Ft Plan #542-11 - Houseplans.com
Search
REGISTER LOGIN SAVED No Saved Plans CART  Cart Empty
Don't lose your saved plans! Create an account to access your saves whenever you want. See our Terms & Conditions and Privacy Policy.
OR
15% OFF FOR THE FIRST 25 CUSTOMERS
Photographs may show modified designs.
Home  >  Style  >  Modern

Modern House Plan 542-11

Key Specs


Plan Sq Ft

1937
sq ft

Plan Bedrooms

3
Beds

Plan Bathrooms

3.5
Baths

Plan Floors

1
Floors

Plan Garages

0
Garages

Questions? Get Personalized Help
Select Plan Set Options
What's included?
Additional Construction Sets$33.15/each

Additional hard copies of the plan (can be ordered at the time of purchase and within 90 days of the purchase date).

$140.25
$33.15
$140.25
Subtotal
NOW $756.50
You save $133.50
(15% savings)
Sale ends soon!
Best Price Guaranteed

Or order by phone: 1-800-913-2350
Questions? Get Personalized Help
 

 
Hours:
Ready for Your Call 7 Days a Week
Every Day 7 am - 8:30 pm Eastern

See Terms & Conditions and Privacy Policy.

Thanks for your question.

We will be in touch shortly.

Wow!
Cost to Build Reports
$1.99 with Code
CTB2026 (Limit 1)
Our Cost to Build Report gives you a personalized estimate for building your home, based on your location, plan, and materials.

Residential Construction Guide

Learn Building Basics

This downloadable, 26-page guide is full of diagrams and details about plumbing, electrical, and more.

Key Specs


Plan Sq Ft

1937
sq ft

Plan Bedrooms

3
Beds

Plan Bathrooms

3.5
Baths

Plan Floors

1
Floors

Plan Garages

0
Garages

Plan Description


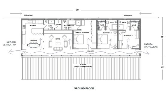
Whether you have an ocean view, a mountain view or a desert view, this economical 3 bedroom, 4 bath plan would be wonderful as a vacation home or a full time residence. With a single corridor open concept, all 3 bedrooms open directly to the living space eliminating the waste of a hallway. In addition to using sustainable and renewable building materials, there is a truly remarkable folding platform deck that extends the full width of the plan. When in the “down” position, it provides an immense outdoor living area, and when it has been retracted to the “up” position, it provides security and protects the glass front of the home from inclement weather.

This plan can be customized!

Tell us about your desired changes so we can prepare an estimate for the design service. Click the button to submit your request for pricing, or call 1-800-913-2350.

Floor Plans


Floor Plan - Main Floor

houseplans LOGO

BUILDER Advantage Program

PRO BUILDERS

Join the club and save 5% on your first order.
PLUS download exclusive discounts and more.

LEARN MORE

Floor Plan - Other Floor

Full Specs & Features


Basic Features

Bedrooms : 3
Baths : 3.5
Stories: 1
Garages: 0

Dimension

Depth : 25'
Height : 15'
Width : 79'

Area

Total : 1937 sq/ft
Decks : 1185 sq/ft
Main Floor : 1975 sq/ft
* Total Square Footage typically only includes conditioned space and does not include garages, porches, bonus rooms, or decks.

Ceiling

Ceiling Details : Vaults to 15'
Main Ceiling : 14' 6"

Exterior Wall Framing

Exterior Wall Finish : Wood, plaster and glass
Insulation : Eco-friendly mineral wood fibre panel

Bedroom Features

Main Floor Bedrooms
Main Floor Master Bedroom
Walk In Closet

Kitchen Features

Kitchen Island

Additional Room Features

Great Room Living Room

Lot Characteristics

Suited For View Lot

Outdoor Spaces

Grill Deck Sundeck

More

Suited For Vacation Home

What's included in this plan set


See a sample plan set

All plans are drawn at ¼” scale or larger and include :

  • Foundation Plan: This page shows all necessary notations and dimensions including support columns, walls, and excavated/unexcavated areas.
  • Exterior Elevations: Views of the home from all four sides showing exterior materials and measurements.
  • Floor Plan(s): Detailed plans for each level showing room dimensions, wall partitions, windows and doors, etc.
  • Cross Section: A slice of the home from roof to foundation, showing important details like stairs and wall construction.
  • Overhead Roof Plan(s): A view of the home from above showing roof pitch, peaks, valleys, and other details.
  • Construction Notes and Details: Shows the builder how things come together, like walls, the chimney, insulation, and more.
* See important information before purchasing

Pricing


Plan Options

PDF Set

Best Value!
$756.50
PDF plan sets are best for fast electronic delivery and inexpensive local printing.

5 Copy Set

$833.00
5 printed plan sets mailed to you.

8 Copy Set

$926.50
8 printed plan sets mailed to you.

Reproducible Set

$926.50
For inexpensive local printing / making minor adjustments by hand. 1 printed set, typically on Bond paper.

CAD Set

$1462.00
For use by design professionals to make substantial changes to your house plan and inexpensive local printing.

Single Set

$680.00
One printed set for bidding purposes only. Not a legal building set for construction.

Foundation Options

Slab

$0.00
Ideal for level lot, single layer concrete poured directly on grade.

*Options with a fee may take time to prepare. Please call to confirm.

Additional Options

Additional Construction Sets

$33.15
Additional hard copies of the plan (can be ordered at the time of purchase and within 90 days of the purchase date).

Audio Video Design

$140.25
Receive an overlay sheet with suggested placement of audio and video components.

Construction Guide

$33.15
Educate yourself about basic building ideas with these four detailed diagrams that discuss electrical, plumbing, mechanical, and structural topics.

Lighting Design

$140.25
Receive an overlay sheet with suggested placement of lighting fixtures.

*Options with a fee may take time to prepare. Please call to confirm.

Unless you buy an “unlimited” plan set or a multi-use license you may only build one home from a set of plans. Please call to verify if you intend to build more than once. Plan licenses are non-transferable and cannot be resold.

We offer a 90% credit when you upgrade from a set, that is not for construction, to a 5-Copy set (or greater).

Meet the Designer

Lucia Strona

Lucia Strona - Houseplans.com
The firm uses a conscious approach to minimize the impact of buildings in their environmental surroundings. We ensure that the use of available resources does not have detrimental effects on the well-being of our clients. Respect for the environments is also the notion that provides the availability of resources for future applications. The idea of sustainable, ecological architecture is thus a fundamental aspect of our process. Twenty years of consistent activity and publications in this field has developed our multi-disciplinary practice that includes a more holistic approach to architecture, ecological architecture, landscape architecture, monument repair/restoration, materials, furniture interior/exterior design services. We strive to satisfy the requests of our clients in functional and efficient manner also by meeting budget and schedule objectives. Our creations integrate the historical, geographical and architectural contexts of the designated project. Furthermore, we explore innovative ways of providing high quality, affordable and ready-made services to our clients.

Other Plans By This Designer

See all plans by
Lucia Strona

Need help? Let our friendly experts help you find the perfect plan!

Contact us now for a free consultation.