2000
sq ft
4
Beds
2.5
Baths
1
Floors
2
Garages
See Terms & Conditions and Privacy Policy.
Thanks for your question.
We will be in touch shortly.
Residential Construction Guide
Learn Building Basics
This downloadable, 26-page guide is full of diagrams and details about plumbing, electrical, and more.
2000
sq ft
4
Beds
2.5
Baths
1
Floors
2
Garages
BUILDER Advantage Program
PRO BUILDERS
Join the club and save 5% on your first order.
PLUS download exclusive discounts and more.
LEARN MORE
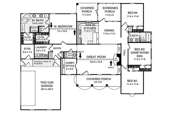
Bathroom 2:
58 sq/ft width 11' 8" x depth 5'
Bedroom 2:
130 sq/ft width 11' 4" x depth 11' 6"
Bedroom 2 Closet:
15 sq/ft width 5' 8" x depth 2' 8"
Bedroom 3:
134 sq/ft width 11' 8" x depth 11' 6"
Bedroom 3 Closet:
15 sq/ft width 5' 8" x depth 2' 8"
Bedroom 4:
130 sq/ft width 11' 4" x depth 11' 6"
Bedroom 4 Closet:
14 sq/ft width 5' 6" x depth 2' 8"
Dining Room:
132 sq/ft width 11' 6" x depth 11' 6"
Garage:
532 sq/ft width 20' 4" x depth 26' 2"
Garage Storage:
48 sq/ft width 6' 8" x depth 7' 4"
Gathering Room:
351 sq/ft width 22' 8" x depth 15' 6"
Hall Bathroom:
18 sq/ft width 6' 3" x depth 3'
Hall Closet:
3 sq/ft width 1' 3" x depth 3'
Home Office:
65 sq/ft width 8' x depth 8' 2"
Kitchen:
128 sq/ft width 11' 2" x depth 11' 6"
Laundry Room:
65 sq/ft width 9' 2" x depth 7' 2"
Linen Closet:
4 sq/ft width 1' 8" x depth 2' 8"
Master Bathroom:
136 sq/ft width 14' 4" x depth 9' 6"
Master Bedroom:
217 sq/ft width 14' x depth 15' 6"
Master Closet - Hers:
41 sq/ft width 7' 4" x depth 5' 8"
Master Closet - His:
37 sq/ft width 6' 8" x depth 5' 8"
Porch - Front:
138 sq/ft width 23' x depth 6'
Porch - Rear:
102 sq/ft width 11' x depth 9' 4"
Porch - Screened:
105 sq/ft width 11' 8" x depth 9'
*Options with a fee may take time to prepare. Please call to confirm.
*Options with a fee may take time to prepare. Please call to confirm.
Unless you buy an “unlimited” plan set or a multi-use license you may only build one home from a set of plans. Please call to verify if you intend to build more than once. Plan licenses are non-transferable and cannot be resold.
Need help? Let our friendly experts help you find the perfect plan!
Contact us now for a free consultation.
 
             
             
             
             
             
             
             
             
             
             
             
             
             
             
             
             
            