Traditional Style House Plan - 2 Beds 1 Baths 2024 Sq/Ft Plan #17-2433 - Houseplans.com
Search
REGISTER LOGIN SAVED No Saved Plans CART  Cart Empty
Don't lose your saved plans! Create an account to access your saves whenever you want. See our Terms & Conditions and Privacy Policy.
OR
Plan 17-2433
Photographs may show modified designs.
Home  >  Style  >  Traditional

Traditional House Plan 17-2433

Key Specs


Plan Sq Ft

2024
sq ft

Plan Bedrooms

2
Beds

Plan Bathrooms

1
Baths

Plan Floors

1
Floors

Plan Garages

1
Garages

Questions? Get Personalized Help
Select Plan Set Options
What's included?
$299.00
Additional Construction Sets$80.00/each

Additional hard copies of the plan (can be ordered at the time of purchase and within 90 days of the purchase date).

$165.00
$295.00
$39.00
$165.00
Subtotal
$1200.00
Best Price Guaranteed

Or order by phone: 1-800-913-2350
Questions? Get Personalized Help
 

 
Hours:
Ready for Your Call 7 Days a Week
Every Day 7 am - 8:30 pm Eastern

See Terms & Conditions and Privacy Policy.

Thanks for your question.

We will be in touch shortly.

Wow!
Cost to Build Reports
$1.99 with Code
CTBFALL (Limit 1)
Our Cost to Build Report gives you a personalized estimate for building your home, based on your location, plan, and materials.

Residential Construction Guide

Learn Building Basics

This downloadable, 26-page guide is full of diagrams and details about plumbing, electrical, and more.

Key Specs


Plan Sq Ft

2024
sq ft

Plan Bedrooms

2
Beds

Plan Bathrooms

1
Baths

Plan Floors

1
Floors

Plan Garages

1
Garages

Plan Description


Total heated area for both units is 2024 sq ft.

This plan can be customized!

Tell us about your desired changes so we can prepare an estimate for the design service. Click the button to submit your request for pricing, or call 1-800-913-2350.

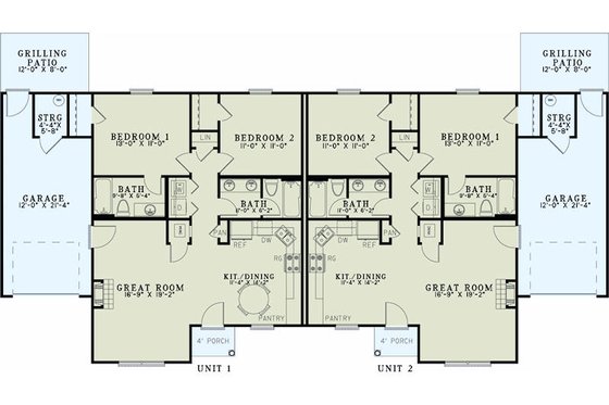
Floor Plans


Floor Plan - Main Floor

Reverse
houseplans LOGO

BUILDER Advantage Program

PRO BUILDERS

Join the club and save 5% on your first order.
PLUS download exclusive discounts and more.

LEARN MORE

Full Specs & Features


Basic Features

Bedrooms : 2
Baths : 1
Stories: 1
Garages: 1

Dimension

Depth : 37'
Height : 19'
Width : 83'

Area

Total : 2024 sq/ft
Garage : 324 sq/ft
Main Floor : 1012 sq/ft
Porch : 24 sq/ft
* Total Square Footage typically only includes conditioned space and does not include garages, porches, bonus rooms, or decks.

Ceiling

Main Ceiling : 9'

Roof

Primary Pitch : 7:12
Roof Framing : stick
Roof Load : 45

Exterior Wall Framing

Framing : 2"x4"
Insulation : R13

Bedroom Features

Walk In Closet

Additional Room Features

Great Room Living Room
Storage Area

Outdoor Spaces

Grill Deck Sundeck

What's included in this plan set


See a sample plan set


Plans are typically drawn to ¼” scale and include:
  • Foundation Plan(s): Most plans are available with a slab or crawlspace foundation. Optional walkout style basement (three walls masonry with a wood framed rear wall with notes for the builder to locate the windows and doors) and optional full basement foundation available if the plan allows, at an additional cost. (Walk out is not shown on elevations unless finished walk out.)
  • Floor Plan(s): Each home plan includes the floor plan showing the dimensioned locations of walls, doors, and windows as well as a schematic electrical layout.
  • Exterior Elevations: All plans include the exterior elevations (front, rear, right and left) that show and describe the finished materials of the house.
  • Overhead Roof Plan(s): This is a “bird’s eye” view showing the roof slopes, ridges, valleys and any saddles.
  • Cross Section(s): **Cross section views available for an additional fee. ** (cut throughs where applicable)
  • Building Section(s): The building sections are vertical cuts through the house and the stairs showing floor, ceiling and roof height information. **Cross section views available for an additional fee. ** (cut throughs where applicable)
  • Construction Notes / Detail(s): Shows basic parts and assemblies recommended for the home so the builder can see how things come together.
  • Other Note(s): These are included for many interior and exterior conditions that require more specific information for their construction.
* See important information before purchasing

Pricing


Plan Options

PDF Set

Best Value!
$1200.00
PDF plan sets are best for fast electronic delivery and inexpensive local printing.

5 Copy Set

$1300.00
5 printed plan sets mailed to you.

5 Copy and PDF Set

$1550.00
5 printed plan sets mailed to you plus PDF plan sets are best for fast electronic delivery and inexpensive local printing.

PDF Unlimited Build

$1900.00
PDF plan sets are best for fast electronic delivery and inexpensive local printing.

CAD Set

$2400.00
For use by design professionals to make substantial changes to your house plan and inexpensive local printing.

CAD Unlimited Build

$3100.00
For use by design professionals to make substantial changes to your house plan and inexpensive local printing.

Foundation Options

Crawlspace

$0.00
Ideal for semi-sloped or level lot, home can be built off of grade, typically 18” - 48”.

Slab

$0.00
Ideal for level lot, single layer concrete poured directly on grade.

Basement

$299.00
Ideal for level lot, lower level of home partially or fully underground.

Daylight Basement

$299.00
Ideal for sloping lot, lower level of home partially underground.

*Options with a fee may take time to prepare. Please call to confirm.

Framing Options

Wood 2x4

$0.00
Wood 2x4 Exterior Walls

Wood 2x6

$299.00
Wood 2x6 Exterior Walls

*Options with a fee may take time to prepare. Please call to confirm.

Additional Options

Right-Reading Reverse

$299.00
Choose this option to reverse your plans and to have the text and dimensions readable.

Additional Construction Sets

$80.00
Additional hard copies of the plan (can be ordered at the time of purchase and within 90 days of the purchase date).

Audio Video Design

$165.00
Receive an overlay sheet with suggested placement of audio and video components.

Comprehensive Material List

$295.00
A complete list of building supplies needed to construct the infrastructure of your new house, plus an overlay of materials shown directly on your PDF (foundation to rooftop with interior and exterior materials), and a detailed, itemized door and window schedule showing all sizes and types. Please allow 5-7 Business Days for completion. Note, the Comprehensive list is only available with a PDF purchase. The Comprehensive list can be ordered no matter what additional plan options you have selected.

Construction Guide

$39.00
Educate yourself about basic building ideas with these four detailed diagrams that discuss electrical, plumbing, mechanical, and structural topics.

Lighting Design

$165.00
Receive an overlay sheet with suggested placement of lighting fixtures.

*Options with a fee may take time to prepare. Please call to confirm.

Unless you buy an “unlimited” plan set or a multi-use license you may only build one home from a set of plans. Please call to verify if you intend to build more than once. Plan licenses are non-transferable and cannot be resold.

Browse Similar Plans

Need help? Let our friendly experts help you find the perfect plan!

Contact us now for a free consultation.