Farmhouse Style House Plan - 2 Beds 1 Baths 2060 Sq/Ft Plan #889-2 - Houseplans.com
Search
REGISTER LOGIN SAVED No Saved Plans CART  Cart Empty
Don't lose your saved plans! Create an account to access your saves whenever you want. See our Terms & Conditions and Privacy Policy.
OR
1 MORE DAY: 15% OFF ENDS TONIGHT
Home  >  Style  >  Farmhouse

Farmhouse House Plan 889-2

Key Specs


Plan Sq Ft

2060
sq ft

Plan Bedrooms

2
Beds

Plan Bathrooms

1
Baths

Plan Floors

2
Floors

Plan Garages

0
Garages

Questions? Get Personalized Help
Select Plan Set Options
What's included?
$85.00
$33.15
$85.00
Subtotal
NOW $701.25
You save $123.75
(15% savings)
Sale ends soon!
Best Price Guaranteed

Or order by phone: 1-800-913-2350
Questions? Get Personalized Help
 

 
Hours:
Ready for Your Call 7 Days a Week
Every Day 7 am - 8:30 pm Eastern

See Terms & Conditions and Privacy Policy.

Thanks for your question.

We will be in touch shortly.

Wow!
Cost to Build Reports
$1.99 with Code
CTB2026 (Limit 1)
Our Cost to Build Report gives you a personalized estimate for building your home, based on your location, plan, and materials.

Residential Construction Guide

Learn Building Basics

This downloadable, 26-page guide is full of diagrams and details about plumbing, electrical, and more.

Key Specs


Plan Sq Ft

2060
sq ft

Plan Bedrooms

2
Beds

Plan Bathrooms

1
Baths

Plan Floors

2
Floors

Plan Garages

0
Garages

Plan Description


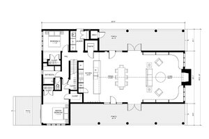
A T-shaped, barn-inspired farmhouse where everything centers on the big room containing the kitchen and living/dining area oriented toward the fireplace and opening to generous porches at the sides.

This plan can be customized!

Tell us about your desired changes so we can prepare an estimate for the design service. Click the button to submit your request for pricing, or call 1-800-913-2350.

Floor Plans


Floor Plan - Main Floor

houseplans LOGO

BUILDER Advantage Program

PRO BUILDERS

Join the club and save 5% on your first order.
PLUS download exclusive discounts and more.

LEARN MORE

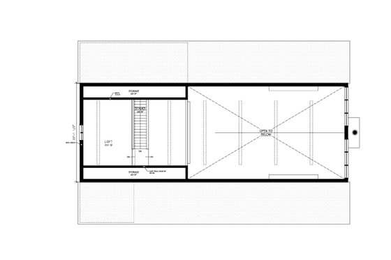
Floor Plan - Upper Floor

Full Specs & Features


Basic Features

Bedrooms : 2
Baths : 1
Stories: 2
Garages: 0

Dimension

Depth : 60'
Height : 24'
Width : 40'

Area

Total : 2060 sq/ft
Main Floor : 1750 sq/ft
Porch : 910 sq/ft
Storage : 120 sq/ft
Upper Floor : 310 sq/ft
* Total Square Footage typically only includes conditioned space and does not include garages, porches, bonus rooms, or decks.

Ceiling

Main Ceiling : 10'
Upper Ceiling Ft : 7'

Roof

Primary Pitch : 12:12
Secondary Pitch : 4:12

Exterior Wall Framing

Framing : 2x6

Bedroom Features

Main Floor Bedrooms
Main Floor Master Bedroom
Split Bedrooms
Walk In Closet

Kitchen Features

Breakfast Nook
Eating Bar
Kitchen Island
Walk In Pantry Cabinet Pantry

Additional Room Features

Great Room Living Room
Main Floor Laundry
Storage Area

Garage Features

Detached Garage

Lot Characteristics

Suited For View Lot

Outdoor Spaces

Covered Front Porch
Covered Rear Porch
Grill Deck Sundeck

Energy Efficient Features

Energy Efficient Design

What's included in this plan set


See a sample plan set

All plans are drawn at ¼” scale or larger and include :

  • Foundation Plan: This page shows all necessary notations and dimensions including support columns, walls, and excavated/unexcavated areas.
  • Exterior Elevations: Views of the home from all four sides showing exterior materials and measurements.
  • Floor Plan(s): Detailed plans for each level showing room dimensions, wall partitions, windows and doors, etc.
  • Cross Section: A slice of the home from roof to foundation, showing important details like stairs and wall construction.
  • Overhead Roof Plan(s): A view of the home from above showing roof pitch, peaks, valleys, and other details.
  • Construction Notes and Details: Shows the builder how things come together, like walls, the chimney, insulation, and more.
* See important information before purchasing

Pricing


Plan Options

PDF Set

Best Value!
$701.25
PDF plan sets are best for fast electronic delivery and inexpensive local printing.

5 Copy Set

$786.25
5 printed plan sets mailed to you.

8 Copy Set

$786.25
8 printed plan sets mailed to you.

Reproducible Set

$913.75
For inexpensive local printing / making minor adjustments by hand. 1 printed set, typically on Bond paper.

CAD Set

$1126.25
For use by design professionals to make substantial changes to your house plan and inexpensive local printing.

Foundation Options

Slab

$0.00
Ideal for level lot, single layer concrete poured directly on grade.

*Options with a fee may take time to prepare. Please call to confirm.

Additional Options

Audio Video Design

$85.00
Receive an overlay sheet with suggested placement of audio and video components.

Construction Guide

$33.15
Educate yourself about basic building ideas with these four detailed diagrams that discuss electrical, plumbing, mechanical, and structural topics.

Lighting Design

$85.00
Receive an overlay sheet with suggested placement of lighting fixtures.

*Options with a fee may take time to prepare. Please call to confirm.

Unless you buy an “unlimited” plan set or a multi-use license you may only build one home from a set of plans. Please call to verify if you intend to build more than once. Plan licenses are non-transferable and cannot be resold.

Meet the Designer

Richardson Architects

Richardson Architects - Houseplans.com
In his book Coast of Dreams: A History of Contemporary California (2005) cultural historian Kevin Starr calls Heidi Richardson “especially adept in using architecture to tell one or another story on behalf of her northern California clients. Richardson’s patrons can pick and chose from dozens of metaphors -- Greek or Roman classical, Japanese, Cape Cod, the South of France, each of them fitting so easily into the eclectic northern California mix -- as a way of telling themselves who they were or who they want to be.” EDUCATION: Wellesley College, 1968-1970; Massachusetts Institute of Technology, 1970-1971; B. A., University of California, Berkeley, 1974; Masters of Architecture, University of California, Berkeley, 1977; Registered Architect, California, 1980. Heidi Richardson established the firm in 1984 after a seven year association with William Turnbull Associates of San Francisco, where she was involved in project design and management of both commercial and residential projects. In her own firm, projects have varied from modest residential remodels to large-scale commercial projects. Her work has been published widely in Architectural Record, Architecture, House and Garden, Home, and Sunset magazines. Heidi is involved in every phase of work at Richardson Architects, giving consistency and personal attention to every detail. The product of this attitude has been numerous awards in historic preservation, interiors, seismic renovations, and the role of Project Architect for several associations with internationally known architects. Ms. Richardson has served as juror for numerous magazine design awards, and as visiting critic and lecturer at the University of California, the University of Sydney, and the San Francisco Center for Architecture and Urban Studies. Heidi has also served as a planning commissioner in the City of Mill Valley.

Need help? Let our friendly experts help you find the perfect plan!

Contact us now for a free consultation.

$1.99 Build Cost Reports!