Cabin Style House Plan - 3 Beds 2 Baths 2197 Sq/Ft Plan #497-47 - Houseplans.com
Search
REGISTER LOGIN SAVED No Saved Plans CART  Cart Empty
Don't lose your saved plans! Create an account to access your saves whenever you want. See our Terms & Conditions and Privacy Policy.
OR
15% OFF THIS PLAN TODAY
Photographs may show modified designs.
Home  >  Style  >  Cabin

Cabin House Plan 497-47

Key Specs


Plan Sq Ft

2197
sq ft

Plan Bedrooms

3
Beds

Plan Bathrooms

2
Baths

Plan Floors

2
Floors

Plan Garages

2
Garages

Questions? Get Personalized Help
Select Plan Set Options
What's included?
$175.50
Additional Construction Sets$45.00/each

Additional hard copies of the plan (can be ordered at the time of purchase and within 90 days of the purchase date).

$445.50
$135.00
$265.50
$35.10
$135.00
Mirror Reversed Sets$0.00

Printed sets showing plan in reverse, text and dimensions will be backwards.

$895.50
Subtotal
NOW $1021.68
You save $113.52
(10% savings)
Sale ends soon!
Best Price Guaranteed

Or order by phone: 1-800-913-2350
Questions? Get Personalized Help
 

 
Hours:
Ready for Your Call 7 Days a Week
Every Day 7 am - 8:30 pm Eastern

See Terms & Conditions and Privacy Policy.

Thanks for your question.

We will be in touch shortly.

Wow!
Cost to Build Reports
$1.99 with Code
CTB2026 (Limit 1)
Our Cost to Build Report gives you a personalized estimate for building your home, based on your location, plan, and materials.

Residential Construction Guide

Learn Building Basics

This downloadable, 26-page guide is full of diagrams and details about plumbing, electrical, and more.

Key Specs


Plan Sq Ft

2197
sq ft

Plan Bedrooms

3
Beds

Plan Bathrooms

2
Baths

Plan Floors

2
Floors

Plan Garages

2
Garages

Plan Description


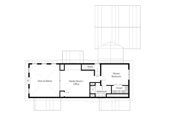
This layout epitomizes a casual rural lifestyle. The floor plan was designed around a central kitchen that acts as a social hub for the rest of the spaces, while wide open living and dining area provides maximum flexibility. Grand cathedral ceilings give the space a sense of drama. This design utilizes R-Control structural insulated panels to create a super insulated building envelope ideal for cold northern climates. The front entry features 2 coat closets, a nook, and a small bench for removing boots. A large mudroom/laundry room has room for lockers and shelving which makes this a great place to keep cold weather clutter from invading the rest of the house. The second floor features a generous master suite as well as a media room that overlooks the main living space. An entertainment center can be discreetly tucked into one wall while a dormer on the other sides is a great place for a desk or home office space. This design started with a simple no nonsense rectangular form. Double French doors create a dramatic light filled living area that flows out onto the patio. A gabled dormer creates a nice place for a bathtub on the second floor and a bump out on the first gives the downstairs bedrooms a more generous proportions. Vertical real wood siding gives this design a rustic aesthetic that is complimented by cultured stone trim. A metal roof shed away snow and is a great surface for mounting solar panels if desired. A large kitchen island is a great place to gather around for communal food preparation or to just to grab a quick breakfast in the morning. 2 large casement windows bring in plenty of light and air. A built in microwave doubles as a hood vent. In the living room, dark wood cabinets and trim help define this large double height space. Built in bookshelves integrate well with the double guard rail on the upper level. Optional ceiling beams are a great way to support lighting fixtures. Locating the media room upstairs minimizes clutter in the main living area.

This plan can be customized!

Tell us about your desired changes so we can prepare an estimate for the design service. Click the button to submit your request for pricing, or call 1-800-913-2350.

Floor Plans


Floor Plan - Main Floor

Reverse
houseplans LOGO

BUILDER Advantage Program

PRO BUILDERS

Join the club and save 5% on your first order.
PLUS download exclusive discounts and more.

LEARN MORE

Floor Plan - Upper Floor

Reverse

Full Specs & Features


Basic Features

Bedrooms : 3
Baths : 2
Stories: 2
Garages: 2

Dimension

Depth : 58'
Height : 26'
Width : 62' 3"

Area

Total : 2197 sq/ft
Decks : 464 sq/ft
Main Floor : 1380 sq/ft
Upper Floor : 817 sq/ft
* Total Square Footage typically only includes conditioned space and does not include garages, porches, bonus rooms, or decks.

Ceiling

Main Ceiling : 8'
Upper Ceiling Ft : 11'

Roof

Primary Pitch : 9:12
Roof Framing : Stick
Roof Type : Gable

Exterior Wall Framing

Exterior Wall Finish : Cedar Board and Batten
Framing : 2"x6"

Bedroom Features

Upstairs Master Bedrooms
Walk In Closet

Kitchen Features

Kitchen Island

Additional Room Features

Great Room Living Room
Mud Room

More

Economical To Build

Energy Efficient Features

Energy Efficient Design

What's included in this plan set


See a sample plan set
House plans created for Green Living give our customers design options that meet or exceed existing energy standards, while giving options in the realm of cost, style, and environmental commitment. As an example, all Green Living homes are designed to perform 30% to 50% better than prescriptive building code energy performance. The level of home performance depends on the products that you choose.

Each Green Living house plan includes:

Plans are typically drawn to ¼” scale and include:
  • Foundation Plan(s): This page shows all necessary notations and dimensions including footings, support columns, walls, and excavated/unexcavated areas.
  • Floor Plan(s): Detailed plans showing room dimensions, wall partitions, windows, etc. as well as the location of electrical outlets and switches.
  • Exterior Elevations: A blueprint picture of all four sides showing exterior materials and measurements.
  • Interior Elevations: Detailed drawings of kitchen cabinet elevations and other elements as required.
  • Overhead Roof Plan(s): A view of the home from above showing roof pitch, peaks, valleys, and other details.
  • Cross Section(s): A vertical cutaway view of the house from roof to foundation showing details of framing, construction, flooring and roofing.
  • Electrical Plan(s): In general, each house plan set includes an electrical plan which will show the locations of lights, receptacles, switches, etc. Note: Most Green Living plans have an electrical plan, however some do not. Please contact us to verify. Window shading details: External window shading devices are an effective method for reducing heat gains through windows during Summer. In fact, external shading devices can reduce heat gains by up to 80% if sized and built properly. With this in mind, the founders of Green Living, formerly Free Green, created this page to assist home builders in constructing effective window shading devices. The information we provide includes a zoning map of the United States, zoning charts for proper sizing of shading devices and a variety of shading device styles and materials to suite different tastes and different home designs.
  • Construction Notes and Detail(s): Shows basic parts and assemblies recommended for the home so the builder can see how things come together.
  • Framing Detail(s): The framing layout is intended to be a suggested layout only. Design loads & weather conditions vary by region. As a result the size, spacing & layout of all structural elements in this home design must be approved by a structural engineer and code official based on your specific site location prior to construction.
  • Wall Section(s): Detailed drawings showing wall connections, from foundation to the roof. wall connections to foundation, window installation, siding installation, stair details, and more.
LEED for Homes Rating System
Guidelines to meet LEED for Homes certification levels of: Certified, Silver, Gold, and Platinum. LEED for Homes is a national, voluntary certification system, developed by national experts and experienced builders, that promotes the design and construction of high-performance green homes and encourages the adoption of sustainable practices by the homebuilding industry. The LEED for Homes Rating System is part of the suite of nationally recognized LEED Green Building Rating Systems administered by USGBC. Like all LEED Rating Systems, it is the market's leadership system, targeting the top 25% of home building practices in terms of environmental responsibility. LEED provides industry resources and tools on how to "green" any new home. With LEED, homebuilders can differentiate their structures as meeting the highest performance measures, and homebuyers can readily identify high quality green homes. LEED provides national consistency in defining the features of a green home, enables builders anywhere in the country to obtain a green rating on their homes, and assures homebuyers of the quality of their purchases, all based on a recognized national brand.
* See important information before purchasing

Pricing


Plan Options

PDF Set

Best Value!
$1021.68
PDF plan sets are best for fast electronic delivery and inexpensive local printing.

5 Copy Set

$1140.48
5 printed plan sets mailed to you.

CAD Set

$2043.36
For use by design professionals to make substantial changes to your house plan and inexpensive local printing.

Study Set

$902.88
One electronic set for bidding purposes only. Not a legal building set for construction.

Foundation Options

Crawlspace

$0.00
Ideal for semi-sloped or level lot, home can be built off of grade, typically 18” - 48”.

Slab

$315.00
Ideal for level lot, single layer concrete poured directly on grade.

*Options with a fee may take time to prepare. Please call to confirm.

Additional Options

Right-Reading Reverse

$175.50
Choose this option to reverse your plans and to have the text and dimensions readable.

Additional Construction Sets

$45.00
Additional hard copies of the plan (can be ordered at the time of purchase and within 90 days of the purchase date).

Additional Use License

$445.50
Allows you to build one more home for each additional license purchased.

Audio Video Design

$135.00
Receive an overlay sheet with suggested placement of audio and video components.

Comprehensive Material List

$265.50
A complete list of building supplies needed to construct the infrastructure of your new house, plus an overlay of materials shown directly on your PDF (foundation to rooftop with interior and exterior materials), and a detailed, itemized door and window schedule showing all sizes and types. Please allow 5-7 Business Days for completion. Note, the Comprehensive list is only available with a PDF purchase. The Comprehensive list can be ordered no matter what additional plan options you have selected.

Construction Guide

$35.10
Educate yourself about basic building ideas with these four detailed diagrams that discuss electrical, plumbing, mechanical, and structural topics.

Lighting Design

$135.00
Receive an overlay sheet with suggested placement of lighting fixtures.

Mirror Reversed Sets

$0.00
A mirror-reversed set is a printed copy of your house, resulting in the same image you would see if you held the drawing up to a mirror. Everything, including the text, is backward in relation to the original design. These kinds of drawing are typically used to reorient an original plan more advantageously on a site, either because the homeowner prefers it that way or because of limitations of the site itself. Note: Mirror reverse sets are only available with a 5 copy or 8 copy set. With a Reproducible, PDF, or CAD set, you can print mirrored copies locally. In addition: 5 Copy set selected, should only allow 4 mirrored sets to be selected. 8 Copy set selected, should only allow 7 mirrored sets to be selected.

Unlimited Use License

$895.50
Allows you to build this home as many times as you want.

*Options with a fee may take time to prepare. Please call to confirm.

Unless you buy an “unlimited” plan set or a multi-use license you may only build one home from a set of plans. Please call to verify if you intend to build more than once. Plan licenses are non-transferable and cannot be resold.

We offer a 90% credit when you upgrade from a set, that is not for construction, to a 5-Copy set (or greater).

Meet the Designer

Green Living

Green Living - Houseplans.com
Our Plans are designed for energy efficiency. The idea is to broaden access to green design. Houseplans.com is excited to welcome the Green Living collection of innovative plans by FreeGreen founders David Wax and Ben Uyeda. These designs range from Contemporary to Country and Farmhouse styles. All incorporate green building materials and techniques. David and Ben are experts in the field of green design and also co-founded ZeroEnergy Design, an architecture and energy consulting firm specializing in new construction and major renovations. They got their start leading Cornell University's 2005 Solar Decathlon team, which won the second place award. The competition, sponsored by the US Department of Energy, challenges universities from across the US and beyond to research, design and build an 800 square-foot off-grid solar home. David holds a Bachelor of Science in Finance and a Master of Business Administration from the Johnson School at Cornell University and is an IT consultant for the securities and capital markets. He says: "FreeGreen was able to integrate architecture and engineering software for custom home design, which meant that we could produce green design fast." Ben holds a Bachelor and Master of Architecture from Cornell University School of Architecture. He has been a visiting lecturer at Cornell, where he developed an original curriculum to teach the principles of sustainable design, and lectures on sustainable design at Northeastern University. His new venture is Home Made Modern: "smart, affordable DIY design ideas for cool people who like modern home furnishings." You can follow Ben's diverse design interests on Pinterest.

Other Plans By This Designer

See all plans by
Green Living

Browse Similar Plans

Need help? Let our friendly experts help you find the perfect plan!

Contact us now for a free consultation.

Coupon Codes