Don't lose your saved plans! 
Create an account to access your saves whenever you want. See our Terms & Conditions and Privacy Policy.
OR

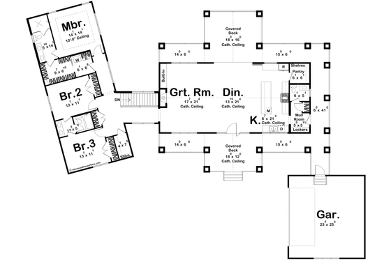
Modern House Plan 455-391 2204 Sq Ft, 3 Bed, 2.5 Bath, 1 Floor, 2 Garage

Key Specs
  • 3
    Beds
  • 2.5
    Baths
  • 1
    Floors
  • 2
    Garages
  • 2204
    Square Feet
Optional Finished Basement = 2,048 Square Feet Imagine waking up every morning to the serene view of a tranquil lake, right from the comfort of your modern farmhouse. This stunning one-story home offers the perfect blend of rustic charm and contemporary elegance, designed to bring you closer to nature while providing all the modern comforts you desire. With three spacious bedrooms and three beautifully appointed bathrooms, there's plenty of room for family and guests. The open-concept main area, bathed in natural light, creates a warm and inviting atmosphere that's perfect for both everyday living and entertaining. The heart of this home is the expansive great room, where the kitchen, dining, and living areas flow seamlessly together. High ceilings and large windows bring the outside in, offering breathtaking views of the lake from every angle. The kitchen is a chef's dream, with ample counter space and a large island that doubles as a gathering spot for family and friends. Whether you're hosting a dinner party or enjoying a quiet night in, this space is designed for comfort and connection. Step outside onto the large covered deck that wraps around the home, providing the perfect space for outdoor living. Imagine sipping your morning coffee while watching the sunrise over the lake, or winding down in the evening with a glass of wine as you listen to the gentle sounds of nature. The walkout basement offers additional living space, perfect for a rec room, home office, exercise space, and/or guest suite. Completing this dream home is a detached two-car garage, offering both convenience and style. With plenty of space for vehicles, tools, and storage, it’s the perfect addition to this thoughtfully designed property. Whether you're seeking a peaceful retreat, a place to entertain, or a forever home by the water, this modern farmhouse plan has it all. Embrace the beauty of lakefront living in a home that’s as functional as it is beautiful.

Questions on this plan?

New to the process and looking for some help to kick things off? Let us know a bit about your plans and we’ll be happy to help.

Budget & Customization Tools

Modify icon
Customize this Plan
Tell us about your desired changes and we can prepare an estimate.
Cost to Build icon
Cost to Build Report
A personalized estimate based on your location, plan, & materials.
Cost to Build icon
Residential Construction Guide
This downloadable, 26-page guide is full of diagrams and details about plumbing, electrical, and more.

Full specs & Features

Basic Features

Bedrooms: 3
Baths: 2.5
Stories: 1
Garages: 2

Dimension

Depth: 80' 1"
Height: 23'
Width: 105' 2"

Area

Total: 2204 sq/ft
Decks: 1098 sq/ft
Garage: 624 sq/ft
Lower Floor: 2048 sq/ft
Main Floor: 2204 sq/ft
* Total Square Footage typically only includes conditioned space and does not include garages, porches, bonus rooms, or decks.

Ceiling

Ceiling Details: The covered deck, kitchen, great room, and dining room all have cathedral ceilings. The master bedroom features a 10 foot tall ceiling.
Main Ceiling: 9'

Roof

Primary Pitch: 12/12
Secondary Pitch: 4/12

Exterior Wall Framing

Framing: 2x4

Bedroom Features

Main Floor Bedrooms
Main Floor Master Bedroom
Walk In Closet

Kitchen Features

Kitchen Island
Walk In Pantry Cabinet Pantry

Additional Room Features

Great Room Living Room

Garage Features

Side Entry Garage

Lot Characteristics

Suited For Corner Lot

Outdoor Spaces

Grill Deck Sundeck

More

Jack & Jill Bath

What's Included

All plans are drawn at ¼” scale or larger and include :

  • Foundation Plan: This page shows all necessary notations and dimensions including support columns, walls, and excavated/unexcavated areas.
  • Exterior Elevations: Views of the home from all four sides showing exterior materials and measurements.
  • Floor Plan(s): Detailed plans for each level showing room dimensions, wall partitions, windows and doors, etc.
  • Cross Section: A slice of the home from roof to foundation, showing important details like stairs and wall construction.
  • Overhead Roof Plan(s): A view of the home from above showing roof pitch, peaks, valleys, and other details.
  • Construction Notes and Details: Shows the builder how things come together, like walls, the chimney, insulation, and more.

FAQs

Are designs on Houseplans ready to submit to my building department for permitting?

It depends on where you're building. Our plans contain enough information for a professional builder to construct your home, but your local government may require additional information before permitting. We strongly advise that you talk with your builder before you get started. If you are building for yourself, we recommend visiting your local building department to start your diligence. Read more here.

Can I make changes to a plan?

Absolutely! Our modification service allows you to customize almost anything - whether it's adding an extra garage bay, adjusting square footage, changing the roof pitch, or more, the plan modification service is a great value and can be completed quickly. Additionally, if you purchase an electronic plan set (PDF or CAD), you may have the option to make changes locally. CAD files offer the most flexibility for custom edits. Just let us know what you're thinking, and we’ll provide an estimate and timeframe to get started. Learn more here.

How much does a house cost to build?

Find out! Build costs vary based on the size of the home, materials used, and local rates for goods and labor. Our Cost to Build report is a great way to get some basic costs dialed in before you order your plans. Just plug in your postal code, select your desired construction quality, and we'll calculate for you.

Learn more about Cost to Build reports here.

Can I trust Houseplans?

Founded in 2004, Houseplans works with hundreds of architects and designers to offer their plans at a fraction of the price of custom design. Houseplans has an "Excellent" rating on TrustPilot.

Read more about us here.

Does Houseplans offer live support?

Yes, Houseplans has a dedicated team of house plan advisors with decades of experience between them. You can reach them by calling, emailing, filling out a form on the page of a plan that you like, or going to the Contact Us page. We're available to talk every day, even on weekends.

Builder Advantage Home

Builder Advantage Program

Are you a Pro Builder? Join the club, save 5% on your first order, get exclusive discounts, and more.

Learn More

You may also like

Save Plan
Modern

Plan 892-47

$2095.00

beds3

bd

baths3.5

ba

stories1

story

square feet3355

sq ft

Save Plan
Farmhouse

Plan 126-236

$1195.00

beds2

bd

baths2

ba

stories1

story

square feet988

sq ft

Save Plan
Country

Plan 427-1

$897.60

beds3

bd

baths2.5

ba

stories2

stories

square feet1908

sq ft

Recently viewed plans

Modern Exterior - Front Elevation Plan #455-391
Save Plan

Plan 455-391

$1599.00

beds3

bd

baths2.5

ba

stories1

story

square feet2204

sq ft

Signature
Traditional Exterior - Front Elevation Plan #47-467
Save Plan

Plan 47-467

$1056.00

beds3

bd

baths2.5

ba

stories3

stories

square feet1530

sq ft