Don't lose your saved plans! 
Create an account to access your saves whenever you want. See our Terms & Conditions and Privacy Policy.
OR

Traditional House Plan 1042-10 2250 Sq Ft, 3 Bed, 2.5 Bath, 2 Floor, 0 Garage

Key Specs
  • 3
    Beds
  • 2.5
    Baths
  • 2
    Floors
  • 0
    Garages
  • 2250
    Square Feet
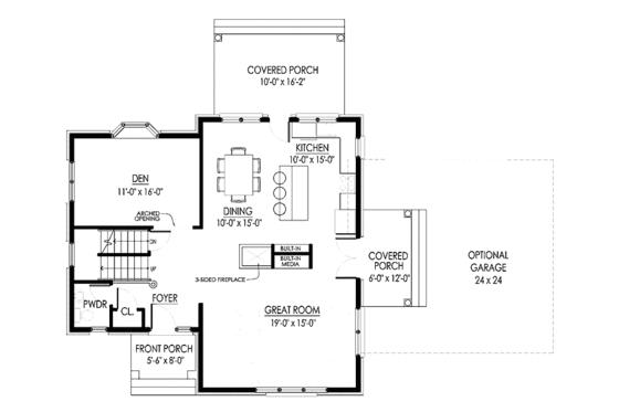
This compact and dignified home has simple, graceful lines and is economical to build. The entry is highlighted by an arched porch. The center of the house is defined by a coffered ceiling and dramatic 3-sided fireplace. The kitchen, dining and Great rooms flow into each other for carefree entertaining. The 9 foot ceilings, big windows and hardwood floors create a spacious, sunny feel. Covered porches create opportunities for outdoor living. The den is perfect for a variety of uses including a formal living or dining room, home-office, study or Rec room. Upstairs the efficient floor plan makes use of every square foot. The master bedroom features a romantic Juliet balcony and a 5 piece deluxe bathroom. Bedroom 2 has a window seat and built-in bookshelves, with an option for a large back porch.

Questions on this plan?

New to the process and looking for some help to kick things off? Let us know a bit about your plans and we’ll be happy to help.

Budget & Customization Tools

Modify icon
Customize this Plan
Tell us about your desired changes and we can prepare an estimate.
Cost to Build icon
Cost to Build Report
A personalized estimate based on your location, plan, & materials.
Cost to Build icon
Residential Construction Guide
This downloadable, 26-page guide is full of diagrams and details about plumbing, electrical, and more.

Full specs & Features

Basic Features

Bedrooms: 3
Baths: 2.5
Stories: 2
Garages: 0

Dimension

Depth: 34'
Height: 28'
Width: 36'

Area

Total: 2250 sq/ft
First Floor: 1125 sq/ft
Second Floor: 1125 sq/ft
* Total Square Footage typically only includes conditioned space and does not include garages, porches, bonus rooms, or decks.

Roof

Primary Pitch: 12:12
Roof Framing: Truss
Roof Type: Shingle

Exterior Wall Framing

Exterior Wall Finish: Brick/Stone
Framing: Wood - 2x6

Bedroom Features

Fireplace
Upstairs Master Bedrooms
Walk In Closet

Kitchen Features

Kitchen Island
Kitchenette Wet Bar

Additional Room Features

Den Office Study Computer
Great Room Living Room
Loft
Open Floor Plan
Unfinished Future Space
Upstairs Laundry

Outdoor Spaces

Balcony
Covered Rear Porch
Deck

Rooms

Bathroom 2:

40 sq/ft width 8' x depth 5'

Bathroom 3:

90 sq/ft width 7' 10" x depth 11' 7"

Bedroom 1:

148 sq/ft width 11' x depth 13' 6"

Bedroom 1 Closet:

20 sq/ft width 4' 2" x depth 5'

Bedroom 2:

221 sq/ft width 13' x depth 17'

Bedroom 2 Closet:

12 sq/ft width 6' x depth 2' 1"

Coat Closet:

10 sq/ft width 5' x depth 2' 1"

Covered Porch:

161 sq/ft width 10' x depth 16' 2"

Den:

176 sq/ft width 11' x depth 16'

Dining Room:

150 sq/ft width 10' x depth 15'

Foyer:

61 sq/ft width 7' x depth 8' 10"

Great Room:

285 sq/ft width 19' x depth 15'

Kitchen:

150 sq/ft width 10' x depth 15'

Master Bedroom:

221 sq/ft width 13' x depth 17'

Pantry:

12 sq/ft width 6' x depth 2' 1"

Porch - Front:

44 sq/ft width 5' 6" x depth 8'

Porch - Right:

72 sq/ft width 6' x depth 12'

Powder Room:

35 sq/ft width 7' 2" x depth 5'

What's Included

All plans are drawn at ¼” scale or larger and include :

  • Foundation Plan: This page shows all necessary notations and dimensions including support columns, walls, and excavated/unexcavated areas.
  • Exterior Elevations: Views of the home from all four sides showing exterior materials and measurements.
  • Floor Plan(s): Detailed plans for each level showing room dimensions, wall partitions, windows and doors, etc.
  • Cross Section: A slice of the home from roof to foundation, showing important details like stairs and wall construction.
  • Overhead Roof Plan(s): A view of the home from above showing roof pitch, peaks, valleys, and other details.
  • Construction Notes and Details: Shows the builder how things come together, like walls, the chimney, insulation, and more.

FAQs

Are designs on Houseplans ready to submit to my building department for permitting?

It depends on where you're building. Our plans contain enough information for a professional builder to construct your home, but your local government may require additional information before permitting. We strongly advise that you talk with your builder before you get started. If you are building for yourself, we recommend visiting your local building department to start your diligence. Read more here.

Can I make changes to a plan?

Absolutely! Our modification service allows you to customize almost anything - whether it's adding an extra garage bay, adjusting square footage, changing the roof pitch, or more, the plan modification service is a great value and can be completed quickly. Additionally, if you purchase an electronic plan set (PDF or CAD), you may have the option to make changes locally. CAD files offer the most flexibility for custom edits. Just let us know what you're thinking, and we’ll provide an estimate and timeframe to get started. Learn more here.

How much does a house cost to build?

Find out! Build costs vary based on the size of the home, materials used, and local rates for goods and labor. Our Cost to Build report is a great way to get some basic costs dialed in before you order your plans. Just plug in your postal code, select your desired construction quality, and we'll calculate for you.

Learn more about Cost to Build reports here.

Can I trust Houseplans?

Founded in 2004, Houseplans works with hundreds of architects and designers to offer their plans at a fraction of the price of custom design. Houseplans has an "Excellent" rating on TrustPilot.

Read more about us here.

Does Houseplans offer live support?

Yes, Houseplans has a dedicated team of house plan advisors with decades of experience between them. You can reach them by calling, emailing, filling out a form on the page of a plan that you like, or going to the Contact Us page. We're available to talk every day, even on weekends.

Builder Advantage Home

Builder Advantage Program

Are you a Pro Builder? Join the club, save 5% on your first order, get exclusive discounts, and more.

Learn More

You may also like

Save Plan
Traditional

Plan 20-2346

$1305.00

beds4

bd

baths2.5

ba

stories2

stories

square feet2257

sq ft

Save Plan
Tudor

Plan 901-99

$2600.00

beds4

bd

baths3.5

ba

stories2

stories

square feet3498

sq ft

Save Plan
European

Plan 453-56

$1550.00

beds3

bd

baths4

ba

stories2

stories

square feet3359

sq ft

Recently viewed plans

Exterior - Front Elevation for Traditional House Plan #1042-10 - 3 bed, 2.5 bath
Save Plan

Plan 1042-10

$1100.00

beds3

bd

baths2.5

ba

stories2

stories

square feet2250

sq ft