Log Style House Plan - 3 Beds 2 Baths 2328 Sq/Ft Plan #117-118 - Houseplans.com
Search
REGISTER LOGIN SAVED No Saved Plans CART  Cart Empty
Don't lose your saved plans! Create an account to access your saves whenever you want. See our Terms & Conditions and Privacy Policy.
OR
15% OFF THIS PLAN TODAY
Plan 117-118
Photographs may show modified designs.
Home  >  Style  >  Log

Log House Plan 117-118

Key Specs


Plan Sq Ft

2328
sq ft

Plan Bedrooms

3
Beds

Plan Bathrooms

2
Baths

Plan Floors

2
Floors

Plan Garages

0
Garages

Questions? Get Personalized Help
Select Plan Set Options
What's included?
$165.75
$140.25
$250.75
$33.15
$140.25
Subtotal
NOW $1211.25
You save $213.75
(15% savings)
Sale ends soon!
Best Price Guaranteed

Or order by phone: 1-800-913-2350
Questions? Get Personalized Help
 

 
Hours:
Ready for Your Call 7 Days a Week
Every Day 7 am - 8:30 pm Eastern

See Terms & Conditions and Privacy Policy.

Thanks for your question.

We will be in touch shortly.

Wow!
Cost to Build Reports
$1.99 with Code
CTB2026 (Limit 1)
Our Cost to Build Report gives you a personalized estimate for building your home, based on your location, plan, and materials.

Residential Construction Guide

Learn Building Basics

This downloadable, 26-page guide is full of diagrams and details about plumbing, electrical, and more.

Key Specs


Plan Sq Ft

2328
sq ft

Plan Bedrooms

3
Beds

Plan Bathrooms

2
Baths

Plan Floors

2
Floors

Plan Garages

0
Garages

Plan Description


This log design floor plan is 2328 sq ft and has 3 bedrooms and 2 bathrooms.

This plan can be customized!

Tell us about your desired changes so we can prepare an estimate for the design service. Click the button to submit your request for pricing, or call 1-800-913-2350.

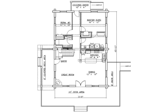
Floor Plans


Floor Plan - Main Floor

Reverse
houseplans LOGO

BUILDER Advantage Program

PRO BUILDERS

Join the club and save 5% on your first order.
PLUS download exclusive discounts and more.

LEARN MORE

Floor Plan - Upper Floor

Reverse

Full Specs & Features


Basic Features

Bedrooms : 3
Baths : 2
Stories: 2
Garages: 0

Dimension

Depth : 58' 10"
Height : 29' 2"
Width : 55' 4"

Area

Total : 2328 sq/ft
First Floor: 1451 sq/ft height 9'
Second Floor: 877 sq/ft height 7'
* Total Square Footage typically only includes conditioned space and does not include garages, porches, bonus rooms, or decks.

Roof

Primary Pitch : 12:12
Roof Framing : Conventional

Exterior Wall Framing

Exterior Wall Finish : Log
Framing : Log

Bedroom Features

Main Floor Bedrooms
Main Floor Master Bedroom
Walk In Closet

Kitchen Features

Kitchen Island

Additional Room Features

Great Room Living Room
Hobby Rec Room Game Room
Loft

Lot Characteristics

Suited For View Lot

Outdoor Spaces

Balcony
Covered Front Porch

More

Suited For Vacation Home

Rooms

Balcony:

75 sq/ft width 12' x depth 6' 3"

Bedroom 2:

140 sq/ft width 10' x depth 14'

Bedroom 3:

168 sq/ft width 12' x depth 14'

Dining Room:

156 sq/ft width 12' x depth 13'

Kitchen:

119 sq/ft width 14' 4" x depth 8' 4"

Master Suite:

180 sq/ft width 15' x depth 12'

Recreation Room:

428 sq/ft width 18' 10" x depth 22' 9"

What's included in this plan set


See a sample plan set
  • Foundation Plan(s): Footing locations, foundation details, etc.
  • Floor Plan(s): Layout of floor plan, window/door schedule, interior and exterior dimensions
  • Exterior Elevations: Exterior on all four sides, siding notes, roof pitches, garage door heights, etc.
  • Overhead Roof Plan(s): A view of the home from above showing roof pitch, peaks, valleys, and other details.
  • Cross Section(s): Cut-through view of home. Shows foundation, insulation, wall construction, ceiling heights, etc.
  • Electrical Plan(s): Lighting, switches, electrical outlet placement throughout home.
  • Detail Sheet(s): Additional structural details included in most log and ICF plans. Important: design loads and weather conditions vary by region. As a result the size, spacing, and layout of all structural elements in this home design may need approval by a structural engineer or code official based on your specific site location.
  • Construction Notes / Detail(s): Referencing the entirety of the project.
  • Framing Detail(s): Location of supporting walls and beams. Location/spacing of floor joists, floor framing details. Layout of roof, roof framing details, truss/rafter locations, connection details etc. If included, the framing layout is intended to be a suggested layout only. Design loads and weather conditions vary by region. As a result the size, spacing, and layout of all structural elements in this home design may need approval by a structural engineer or code official based on your specific site location.
* See important information before purchasing

Pricing


Plan Options

CAD and PDF Set

$1211.25
For use by design professionals to make substantial changes to your house plan and inexpensive local printing plus PDF plan sets are best for fast electronic delivery and inexpensive local printing.

CAD Set

$1211.25
For use by design professionals to make substantial changes to your house plan and inexpensive local printing.

CAD Single Build

$1211.25
For use by design professionals to make substantial changes to your house plan and inexpensive local printing.

PDF Set

Best Value!
$1211.25
PDF plan sets are best for fast electronic delivery and inexpensive local printing.

CAD Unlimited Build

$1865.75
For use by design professionals to make substantial changes to your house plan and inexpensive local printing.

Foundation Options

Crawlspace

$0.00
Ideal for semi-sloped or level lot, home can be built off of grade, typically 18” - 48”.

*Options with a fee may take time to prepare. Please call to confirm.

Additional Options

Right-Reading Reverse

$165.75
Choose this option to reverse your plans and to have the text and dimensions readable.

Audio Video Design

$140.25
Receive an overlay sheet with suggested placement of audio and video components.

Comprehensive Material List

$250.75
A complete list of building supplies needed to construct the infrastructure of your new house, plus an overlay of materials shown directly on your PDF (foundation to rooftop with interior and exterior materials), and a detailed, itemized door and window schedule showing all sizes and types. Please allow 5-7 Business Days for completion. Note, the Comprehensive list is only available with a PDF purchase. The Comprehensive list can be ordered no matter what additional plan options you have selected.

Construction Guide

$33.15
Educate yourself about basic building ideas with these four detailed diagrams that discuss electrical, plumbing, mechanical, and structural topics.

Lighting Design

$140.25
Receive an overlay sheet with suggested placement of lighting fixtures.

*Options with a fee may take time to prepare. Please call to confirm.

Unless you buy an “unlimited” plan set or a multi-use license you may only build one home from a set of plans. Please call to verify if you intend to build more than once. Plan licenses are non-transferable and cannot be resold.

Other Plans By This Designer

See all plans by
this designer

Need help? Let our friendly experts help you find the perfect plan!

Contact us now for a free consultation.