Don't lose your saved plans! 
Create an account to access your saves whenever you want. See our Terms & Conditions and Privacy Policy.
OR

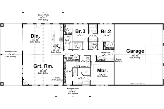
Modern House Plan 455-527 2722 Sq Ft, 3 Bed, 2.5 Bath, 1 Floor, 3 Garage

Key Specs
  • 3
    Beds
  • 2.5
    Baths
  • 1
    Floors
  • 3
    Garages
  • 2722
    Square Feet
Introducing the Barndominium Style House Plan: Limestone. This single-story modern house plan is a harmonious blend of rustic charm and contemporary elegance. Its exterior showcases a dark exterior with minimal wood accents creating a sleek facade. The focal point of this barndominium is its expansive three-car garage, providing ample space for vehicles, storage, and even a workshop. An open floor plan unfolds into a spacious living area where the boundaries between indoors and outdoors blur. Large windows and glass doors flood the interior with natural light, offering breathtaking views of the landscape. Step outside onto multiple covered patios, where the fusion of dark metal and warm wood continues. An outdoor living space, perfect for relaxation and entertainment, making it the perfect spot to enjoy the serene evenings. This modern barndominium is a testament to the marriage of contemporary design and rustic charm, providing a luxurious and comfortable retreat that embraces the beauty of its natural surroundings while offering the convenience of a three-car garage and an open, seamless living space.

Questions on this plan?

New to the process and looking for some help to kick things off? Let us know a bit about your plans and we’ll be happy to help.

Budget & Customization Tools

Modify icon
Customize this Plan
Tell us about your desired changes and we can prepare an estimate.
Cost to Build icon
Cost to Build Report
A personalized estimate based on your location, plan, & materials.
Cost to Build icon
Residential Construction Guide
This downloadable, 26-page guide is full of diagrams and details about plumbing, electrical, and more.

Full specs & Features

Basic Features

Bedrooms: 3
Baths: 2.5
Stories: 1
Garages: 3

Dimension

Depth: 59'
Height: 24' 6"
Width: 113'

Area

Total: 2722 sq/ft
Garage: 1462 sq/ft
Main Floor: 2722 sq/ft
Patios: 1077 sq/ft
* Total Square Footage typically only includes conditioned space and does not include garages, porches, bonus rooms, or decks.

Ceiling

Ceiling Details: The great room, dining room, kitchen, entry, side covered patio and garage have cathedral ceilings. The front and rear covered patios have 9 foot tall ceilings. The master bedroom features a 13 foot tall ceiling.
Main Ceiling: 12'

Roof

Primary Pitch: 6/12
Roof Framing: Trusses
Secondary Pitch: Flat

Exterior Wall Framing

Framing: 2x6

Bedroom Features

Main Floor Bedrooms
Main Floor Master Bedroom
Walk In Closet

Kitchen Features

Kitchen Island
Walk In Pantry Cabinet Pantry

Additional Room Features

Great Room Living Room
Main Floor Laundry
Mud Room

Garage Features

Side Entry Garage

Lot Characteristics

Suited For Corner Lot

Outdoor Spaces

Covered Front Porch
Covered Rear Porch

What's Included

All plans are drawn at ¼” scale or larger and include :

  • Foundation Plan: This page shows all necessary notations and dimensions including support columns, walls, and excavated/unexcavated areas.
  • Exterior Elevations: Views of the home from all four sides showing exterior materials and measurements.
  • Floor Plan(s): Detailed plans for each level showing room dimensions, wall partitions, windows and doors, etc.
  • Cross Section: A slice of the home from roof to foundation, showing important details like stairs and wall construction.
  • Overhead Roof Plan(s): A view of the home from above showing roof pitch, peaks, valleys, and other details.
  • Construction Notes and Details: Shows the builder how things come together, like walls, the chimney, insulation, and more.

FAQs

Are designs on Houseplans ready to submit to my building department for permitting?

It depends on where you're building. Our plans contain enough information for a professional builder to construct your home, but your local government may require additional information before permitting. We strongly advise that you talk with your builder before you get started. If you are building for yourself, we recommend visiting your local building department to start your diligence. Read more here.

Can I make changes to a plan?

Absolutely! Our modification service allows you to customize almost anything - whether it's adding an extra garage bay, adjusting square footage, changing the roof pitch, or more, the plan modification service is a great value and can be completed quickly. Additionally, if you purchase an electronic plan set (PDF or CAD), you may have the option to make changes locally. CAD files offer the most flexibility for custom edits. Just let us know what you're thinking, and we’ll provide an estimate and timeframe to get started. Learn more here.

How much does a house cost to build?

Find out! Build costs vary based on the size of the home, materials used, and local rates for goods and labor. Our Cost to Build report is a great way to get some basic costs dialed in before you order your plans. Just plug in your postal code, select your desired construction quality, and we'll calculate for you.

Learn more about Cost to Build reports here.

Can I trust Houseplans?

Founded in 2004, Houseplans works with hundreds of architects and designers to offer their plans at a fraction of the price of custom design. Houseplans has an "Excellent" rating on TrustPilot.

Read more about us here.

Does Houseplans offer live support?

Yes, Houseplans has a dedicated team of house plan advisors with decades of experience between them. You can reach them by calling, emailing, filling out a form on the page of a plan that you like, or going to the Contact Us page. We're available to talk every day, even on weekends.

Builder Advantage Home

Builder Advantage Program

Are you a Pro Builder? Join the club, save 5% on your first order, get exclusive discounts, and more.

Learn More

You may also like

Save Plan
Modern

Plan 892-47

$2095.00

beds3

bd

baths3.5

ba

stories1

story

square feet3355

sq ft

Save Plan
Ranch

Plan 44-274

$1120.00

beds3

bd

baths2

ba

stories1

story

square feet1500

sq ft

Save Plan
Country

Plan 427-1

$897.60

beds3

bd

baths2.5

ba

stories2

stories

square feet1908

sq ft

Recently viewed plans

Exterior - Front Elevation for Modern House Plan #455-527 - 3 bed, 2.5 bath
Save Plan

Plan 455-527

$1799.00

beds3

bd

baths2.5

ba

stories1

story

square feet2722

sq ft