Don't lose your saved plans! 
Create an account to access your saves whenever you want. See our Terms & Conditions and Privacy Policy.
OR

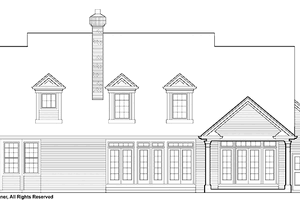
Country House Plan 48-778 2923 Sq Ft, 4 Bed, 2.5 Bath, 2 Floor, 3 Garage

3D icon
Get Personalized Help
Key Specs
  • 4
    Beds
  • 2.5
    Baths
  • 2
    Floors
  • 3
    Garages
  • 2923
    Square Feet
Five wondowed dormers perch atop a steep gabled roof, bringing charm and character to this country home. A compact footprint belies the true capacity of open and private spaces that unfold from the foyer. A generous great room is set off by two sets of French doors and an inviting fireplace. The open layout of the island kitchen offers surprising functionality when paired with the breakfast area and rear porch. Seclusion and thoughtful touches like the large bow window, highlight the master suite. Extra space is not a problem on the second floor. Enjoy the expanded options of a bonus room and attic near the three family bedrooms.

Questions on this plan?

New to the process and looking for some help to kick things off? Let us know a bit about your plans and we’ll be happy to help.

Budget & Customization Tools

Modify icon
Customize this Plan
Tell us about your desired changes and we can prepare an estimate.
Cost to Build icon
Cost to Build Report
A personalized estimate based on your location, plan, & materials. / FAQ
Cost to Build icon
Residential Construction Guide
This downloadable, 26-page guide is full of diagrams and details about plumbing, electrical, and more.

Full specs & Features

Basic Features

Bedrooms: 4
Baths: 2.5
Stories: 2
Garages: 3

Dimension

Depth: 85'
Height: 29'
Width: 66'

Area

Total: 2923 sq/ft
Bonus: 308 sq/ft
First Floor: 2049 sq/ft height 9'
Second Floor: 874 sq/ft height 8'
* Total Square Footage typically only includes conditioned space and does not include garages, porches, bonus rooms, or decks.

Roof

Primary Pitch: 10:12
Roof Framing: Conventional
Roof Type: Shingle

Exterior Wall Framing

Exterior Wall Finish: Brick/Siding
Framing: Wood - 2x6

Bedroom Features

Fireplace
Formal Dining Room
Main Floor Master Bedroom
Walk In Closet

Kitchen Features

Breakfast Nook
Kitchen Island
Kitchenette Wet Bar
Walk In Pantry Cabinet Pantry

Additional Room Features

Den Office Study Computer
Great Room Living Room
Master Sitting Area
Open Floor Plan
Storage Area
Unfinished Future Space
Workshop

Garage Features

Side Entry Garage

Outdoor Spaces

Covered Front Porch
Covered Rear Porch

Rooms

Bedroom 2:

126 sq/ft width 11' 10" x depth 10' 8"

Bedroom 3:

148 sq/ft width 12' 2" x depth 12' 2"

Bedroom 4:

148 sq/ft width 12' 2" x depth 12' 2"

Bonus Room - Finished:

268 sq/ft width 18' 4" x depth 14' 8"

Breakfast Room:

152 sq/ft width 10' 2" x depth 15'

Garage:

690 sq/ft width 30' x depth 23'

Hall Bathroom:

93 sq/ft width 12' 2" x depth 7' 8"

Master Bedroom:

208 sq/ft width 16' x depth 13'

Master Closet:

48 sq/ft width 12' x depth 4'

Master Closet Two:

19 sq/ft width 5' 8" x depth 3' 6"

Study:

150 sq/ft width 12' 2" x depth 12' 4"

What's Included

Plans are typically drawn to ¼” scale and include:
  • Foundation Plan(s): The foundation page dimensions, concrete walls, footings, pads, posts, beams, bearing walls, and any stepped foundation information along with any retaining wall info (schematic only). A typical wall section for the home is also usually included on this page (if not, it is elsewhere in your plan set, as space allows). If your plan features a poured concrete slab rather than a basement or crawlspace, the foundation page shows footings and details for the slab, and includes plumbing locations. If you choose the optional Slab foundation, the slab foundation will not be reflected in the plan sections.
  • Floor Plan(s): Exterior and interior wall framing, and windows/doors are dimensioned. Room sizes are indicated and any beams, posts and structural bearing points are called out. The floorplans include an electrical legend, and electrical fittings, lights and outlets are shown.
  • Exterior Elevations: In addition to the front exterior, your drawing set will include drawings of the rear and sides of your house as well. These drawings give notes on exterior materials and finishes. Particular attention is given to cornice detail, brick and stone accents, or other finish items that make your home unique.
  • Overhead Roof Plan(s): Roof framing or truss directions are shown, slope directions are indicated and structural members are sized and called out if applicable. The gravity loads used to calculate the rafters, beams and posts are indicated , and we also show gutters, downspouts, and any roof venting required for your home.
  • Cross Section(s): A slice of the home from roof to foundation, showing relationships between floors, roof, and foundation.
  • Building Section(s): Building sections show changes in floor, ceiling, or roof height, and the relationship of one level to another. Our section pages also show how the stairs are calculated (if there are some!) and depict roof and foundation members. We try and draw sections to show the most useful information — choosing locations where there are elements you or your contractor might need clarification on.
  • Construction Notes and Detail(s): Your home comes detailed to meet the requirements of the latest adopted version of the ‘International Residential Code’, and our notes and details pages outline all the elements applicable to the design of your home. Compliance with further standards may need to be incorporated into your plan set, depending the requirements of your building department — these are usually done locally.
  • Framing Detail(s): Exterior and interior wall framing, and windows/doors are dimensioned. Room sizes are indicated and any beams, posts and structural bearing points are called out. The floorplans include an electrical legend, and electrical fittings, lights and outlets are shown. Floor Plans will also indicate crossection details (provided on the sections page) and show any special framing details applicable to the design. Cabinet elevations are included for kitchen and bathrooms; some designs feature cabinet elevations for design–related built–ins too.

FAQs

Are designs on Houseplans ready to submit to my building department for permitting?

It depends on where you're building. Our plans contain enough information for a professional builder to construct your home, but your local government may require additional information before permitting. We strongly advise that you talk with your builder before you get started. If you are building for yourself, we recommend visiting your local building department to start your diligence. Read more here.

Can I make changes to a plan?

Absolutely! Our modification service allows you to customize almost anything - whether it's adding an extra garage bay, adjusting square footage, changing the roof pitch, or more, the plan modification service is a great value and can be completed quickly. Additionally, if you purchase an electronic plan set (PDF or CAD), you may have the option to make changes locally. CAD files offer the most flexibility for custom edits. Just let us know what you're thinking, and we’ll provide an estimate and timeframe to get started. Learn more here.

How much does a house cost to build?

Find out! Build costs vary based on the size of the home, materials used, and local rates for goods and labor. Our Cost to Build report is a great way to get some basic costs dialed in before you order your plans. Just plug in your postal code, select your desired construction quality, and we'll calculate for you.

Learn more about Cost to Build reports here.

Can I trust Houseplans?

Founded in 2004, Houseplans works with hundreds of architects and designers to offer their plans at a fraction of the price of custom design. Houseplans has an "Excellent" rating on TrustPilot.

Read more about us here.

Does Houseplans offer live support?

Yes, Houseplans has a dedicated team of house plan advisors with decades of experience between them. You can reach them by calling, emailing, filling out a form on the page of a plan that you like, or going to the Contact Us page. We're available to talk every day, even on weekends.

Builder Advantage Home

Builder Advantage Program

Are you a Pro Builder? Join the club, save 5% on your first order, get exclusive discounts, and more.

Learn More